Bildegalleri

Houssam Ben Zrelli v/EIE eiendomsmegling har gleden av å presentere Linderudsletta 1 - et attraktivt valg for deg som ser etter din første bolig, en praktisk leilighet, eller et godt egnet utleieobjekt.
Solgt
Linderud
Pen og romslig 2-R selveier | Balkong på 4m² | V.vann og fyring inkl. | Heis | Nær buss & Linderud Senter
Prisantydning3 500 000 kr
Nøkkelinfo
- Boligtype
- Leilighet
- Eieform
- Eier (Selveier)
- Soverom
- 1
- Internt bruksareal
- 53 m² (BRA-i)
- Bruksareal
- 58 m²
- Eksternt bruksareal
- 5 m² (BRA-e)
- Balkong/Terrasse
- 4 m² (TBA)
- Etasje
- 4
- Byggeår
- 1957
- Energimerking
- F - Mørkegrønn
- Rom
- 2
- Tomteareal
- 55 830 m² (eiet)
Fasiliteter
Barnevennlig
Balkong/Terrasse
Garasje/P-plass
Kabel-TV
Heis
Offentlig vann/kloakk
Turterreng
Vaktmester-/vektertjeneste
Fellesvaskeri
Sentralt
Bredbåndstilknytning
Bademulighet
Lademulighet
Om boligen
Houssam Ben Zrelli v/EIE eiendomsmegling har gleden av å presentere Linderudsletta 1 - en attraktiv bolig for deg som ser etter ditt første hjem, en praktisk leilighet, eller et godt egnet utleieobjekt. Her bor du sentralt med kort vei til både handel, kollektivtransport og fine turområder - perfekt for en enkel og komfortabel hverdag.
Kvaliteter:
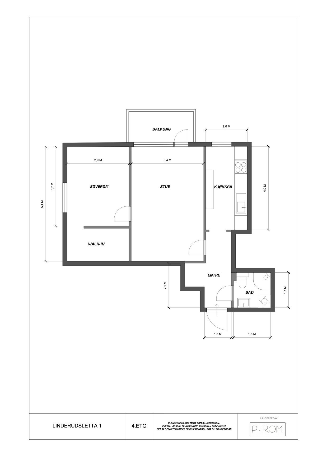
- Lys og romslig 2-roms med god planløsning
- 4. etg med heis og trappefri adkomst
- Romslig stue med naturlige møbleringssoner og utgang til balkong
- Separat kjøkken m. rikelig benkeplass og hvitevarer
- Bad fra ca. 2015 m. opplegg for vaskemaskin
- Stort soverom med praktisk walk-in
- V.vann/fyring/kabel-TV/internett inkl.
- 2 eksterne boder
- God utleiemulighet
- Sentralt på Linderud - kort vei til Linderud senter, T-bane, buss og marka
Velkommen til visning!
Kvaliteter:
- Lys og romslig 2-roms med god planløsning
- 4. etg med heis og trappefri adkomst
- Romslig stue med naturlige møbleringssoner og utgang til balkong
- Separat kjøkken m. rikelig benkeplass og hvitevarer
- Bad fra ca. 2015 m. opplegg for vaskemaskin
- Stort soverom med praktisk walk-in
- V.vann/fyring/kabel-TV/internett inkl.
- 2 eksterne boder
- God utleiemulighet
- Sentralt på Linderud - kort vei til Linderud senter, T-bane, buss og marka
Velkommen til visning!
NB: Knappen for å vise hele beskrivelsen har kun en visuell effekt.
NB: Knappen for å vise hele beskrivelsen har kun en visuell effekt.
Salgsoppgaven beskriver vesentlig og lovpålagt informasjon om eiendommen
Se komplett salgsoppgaveNyttige lenker
Nærområdet
EIE eiendomsmegling Stovner
Annonseinformasjon
| FINN-kode | 416117293 |
|---|---|
| Sist endret | 15. sep. 2025 11:44 |
| Referanse | 75250116 |
Annonsene kan være mangelfulle i forhold til lovpålagt opplysningsplikt. Før bindende avtale inngås oppfordres interessenter til å innhente komplett informasjon fra meglerforetaket, selger eller utleier.





























