Bildegalleri

Velkommen til Hellandsveien 210! Foto: Hanna Kristensen
Drag
NY PRIS - Enebolig med garasje og stor tomt - Flott utsikt og solrik beliggenhet
Prisantydning2 550 000 kr
Nøkkelinfo
- Boligtype
- Enebolig
- Eieform
- Eier (Selveier)
- Soverom
- 3
- Internt bruksareal
- 113 m² (BRA-i)
- Bruksareal
- 144 m²
- Eksternt bruksareal
- 31 m² (BRA-e)
- Balkong/Terrasse
- 17 m² (TBA)
- Etasje
- 2
- Byggeår
- 1977
- Energimerking
- E - Gul
- Rom
- 4
- Tomteareal
- 3 123 m² (eiet)
Fasiliteter
Balkong/Terrasse
Barnevennlig
Garasje/P-plass
Hage
Peis/Ildsted
Rolig
Utsikt
Turterreng
Lademulighet
Visning
Alle våre visninger har påmelding. Dette gjør vi for å planlegge visningene best mulig, og ha god tid til de som kommer. Visninger uten påmeldte deltakere vil bli avlyst.
VisningspåmeldingOm boligen
Eiendomsmegler Ingve Hilstad hos Jenssen & Bolle Eiendomsmegling har gleden av å presentere denne boligen:
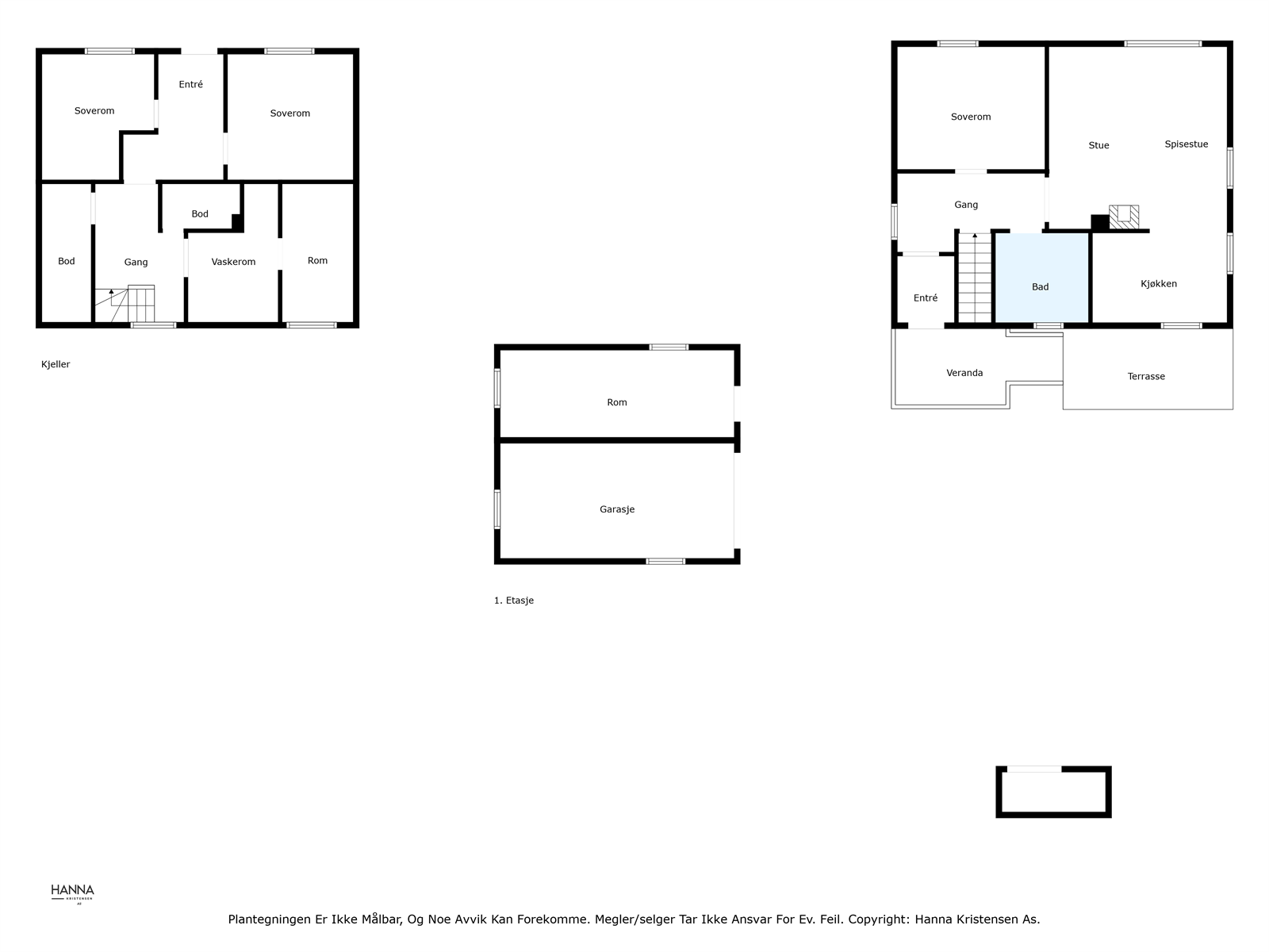
Denne koselige eneboligen i Hellandsveien 210 byr på en landlig og rolig beliggenhet med flott utsyn mot fjord og fjell.
Boligen har 3 soverom, bad og ei badstue i kjeller.
Tomten er solrik og måler ca. 3 100 m², opparbeidet med hage, gruset adkomst og biloppstillingsplass.
I tillegg finnes garasje, uthus og drivhus.
Eiendommen er løpende vedlikeholdt og delvis oppgradert.
Kort kjøreavstand til sentrum av Drag med skole, barnehage, butikker og øvrige servicetilbud.
Rike turmuligheter i umiddelbar nærhet!
Ta kontakt med megler for å avtale visning!
Denne koselige eneboligen i Hellandsveien 210 byr på en landlig og rolig beliggenhet med flott utsyn mot fjord og fjell.
Boligen har 3 soverom, bad og ei badstue i kjeller.
Tomten er solrik og måler ca. 3 100 m², opparbeidet med hage, gruset adkomst og biloppstillingsplass.
I tillegg finnes garasje, uthus og drivhus.
Eiendommen er løpende vedlikeholdt og delvis oppgradert.
Kort kjøreavstand til sentrum av Drag med skole, barnehage, butikker og øvrige servicetilbud.
Rike turmuligheter i umiddelbar nærhet!
Ta kontakt med megler for å avtale visning!
NB: Knappen for å vise hele beskrivelsen har kun en visuell effekt.
NB: Knappen for å vise hele beskrivelsen har kun en visuell effekt.
Salgsoppgaven beskriver vesentlig og lovpålagt informasjon om eiendommen
Se komplett salgsoppgaveNyttige lenker
Nærområdet
JENSSEN & BOLLE EIENDOMSMEGLING AS
Jenssen & Bolle Eiendomsmegling
Annonseinformasjon
| FINN-kode | 416060899 |
|---|---|
| Sist endret | 17. des. 2025 12:52 |
| Referanse | JOB1.25103 |
Annonsene kan være mangelfulle i forhold til lovpålagt opplysningsplikt. Før bindende avtale inngås oppfordres interessenter til å innhente komplett informasjon fra meglerforetaket, selger eller utleier.








































