Bildegalleri

Solgt
Kvelde - Fin enebolig i attraktivt område med gode solforhold - stor tomt - utleiedel
Prisantydning3 790 000 kr
Nøkkelinfo
- Boligtype
- Enebolig
- Eieform
- Selveier
- Soverom
- 4
- Internt bruksareal
- 186 m² (BRA-i)
- Bruksareal
- 186 m²
- Balkong/Terrasse
- 68 m² (TBA)
- Byggeår
- 1971
- Energimerking
- F - Gul
- Tomteareal
- 1 012 m² (eiet)
Fasiliteter
Barnevennlig
Balkong/Terrasse
Garasje/P-plass
Kabel-TV
Fiskemulighet
Offentlig vann/kloakk
Ingen gjenboere
Parkett
Peis/Ildsted
Turterreng
Utsikt
Aircondition
Sentralt
Bredbåndstilknytning
Moderne
Rolig
Bademulighet
Om boligen
Velkommen til Vestbyåsen 8 - en velholdt enebolig beliggende i et attraktivt og sentralt boligfelt i Kvelde!
Her bor du i et barnevennlig nabolag med kort og trygg gangavstand til både barnehager, skole, dagligvare og et flott idrettsanlegg.
Boligen har fått betydelige oppgraderinger i nyere tid, med bl.a. oppussing av underetasjen/utleiedelen, ny drenering og nye terrasser. Selv om boligen holder gjennomgående normalt god standard, må det likevel påregnes løpende vedlikehold/oppgraderinger.
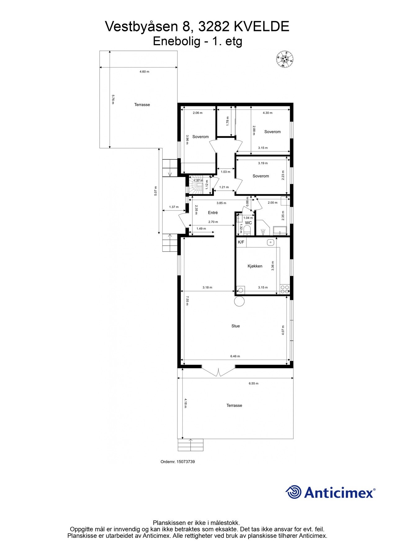
Hovedetasjen inneholder 3 soverom, kjøkken, stor og luftig stue med utgang til terrasse, samt bad og separat toalettrom. Utleiedelen i underetasjen inneholder ett soverom, åpen stue- og kjøkkenløsning, bad, teknisk rom og bod.
Pent opparbeidede uteområder.
Området byr ellers på flotte turløyper i lysløype med preparerte skiløyper om vinteren og en nyetablert 18-hulls diskgolfbane i variert terreng. Dette er en perfekt kombinasjon av rolig bomiljø og nærhet til aktiviteter for både store og små.
Her bor du i et barnevennlig nabolag med kort og trygg gangavstand til både barnehager, skole, dagligvare og et flott idrettsanlegg.
Boligen har fått betydelige oppgraderinger i nyere tid, med bl.a. oppussing av underetasjen/utleiedelen, ny drenering og nye terrasser. Selv om boligen holder gjennomgående normalt god standard, må det likevel påregnes løpende vedlikehold/oppgraderinger.
Hovedetasjen inneholder 3 soverom, kjøkken, stor og luftig stue med utgang til terrasse, samt bad og separat toalettrom. Utleiedelen i underetasjen inneholder ett soverom, åpen stue- og kjøkkenløsning, bad, teknisk rom og bod.
Pent opparbeidede uteområder.
Området byr ellers på flotte turløyper i lysløype med preparerte skiløyper om vinteren og en nyetablert 18-hulls diskgolfbane i variert terreng. Dette er en perfekt kombinasjon av rolig bomiljø og nærhet til aktiviteter for både store og små.
NB: Knappen for å vise hele beskrivelsen har kun en visuell effekt.
NB: Knappen for å vise hele beskrivelsen har kun en visuell effekt.
Salgsoppgaven beskriver vesentlig og lovpålagt informasjon om eiendommen
Se komplett salgsoppgaveNyttige lenker
Nærområdet
EIE eiendomsmegling Larvik & Lågendalen
Annonseinformasjon
| FINN-kode | 415548964 |
|---|---|
| Sist endret | 20. aug. 2025 10:25 |
| Referanse | 69250117 |
Annonsene kan være mangelfulle i forhold til lovpålagt opplysningsplikt. Før bindende avtale inngås oppfordres interessenter til å innhente komplett informasjon fra meglerforetaket, selger eller utleier.


































