Bildegalleri

Velholdt enebolig over to plan | Leieinntekter fra utleid del i sokkel | Vesentlig oppgradert siste 11 år | Garasje
Nøkkelinfo
- Boligtype
- Enebolig
- Eieform
- Eier (Selveier)
- Internt bruksareal
- 137 m² (BRA-i)
- Bruksareal
- 196 m²
- Eksternt bruksareal
- 59 m² (BRA-e)
- Balkong/Terrasse
- 40 m² (TBA)
- Byggeår
- 1976
- Energimerking
- E - Oransje
- Tomteareal
- 639 m² (eiet)
- Boligselgerforsikring
- Ja
Visning
Om boligen
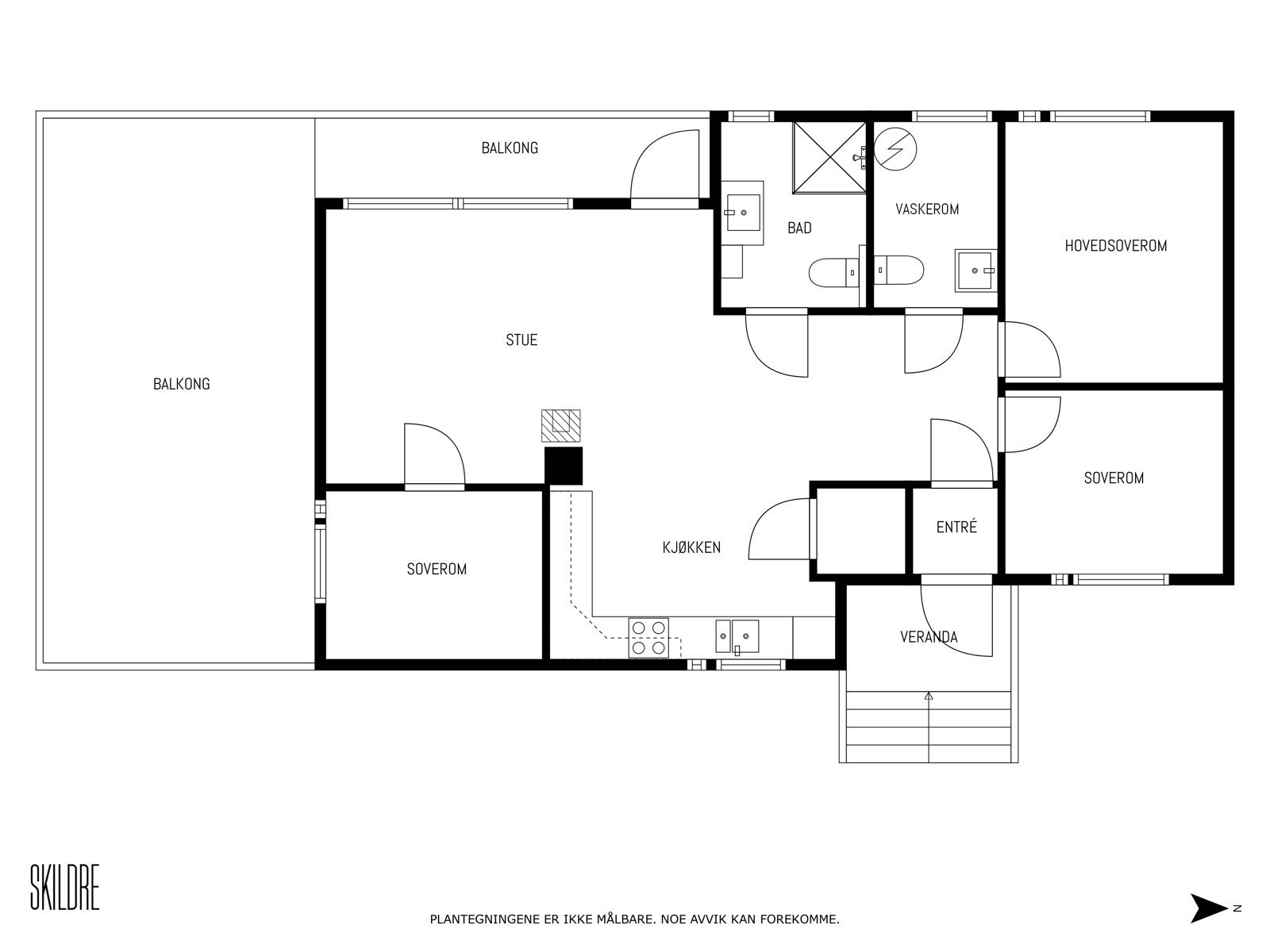
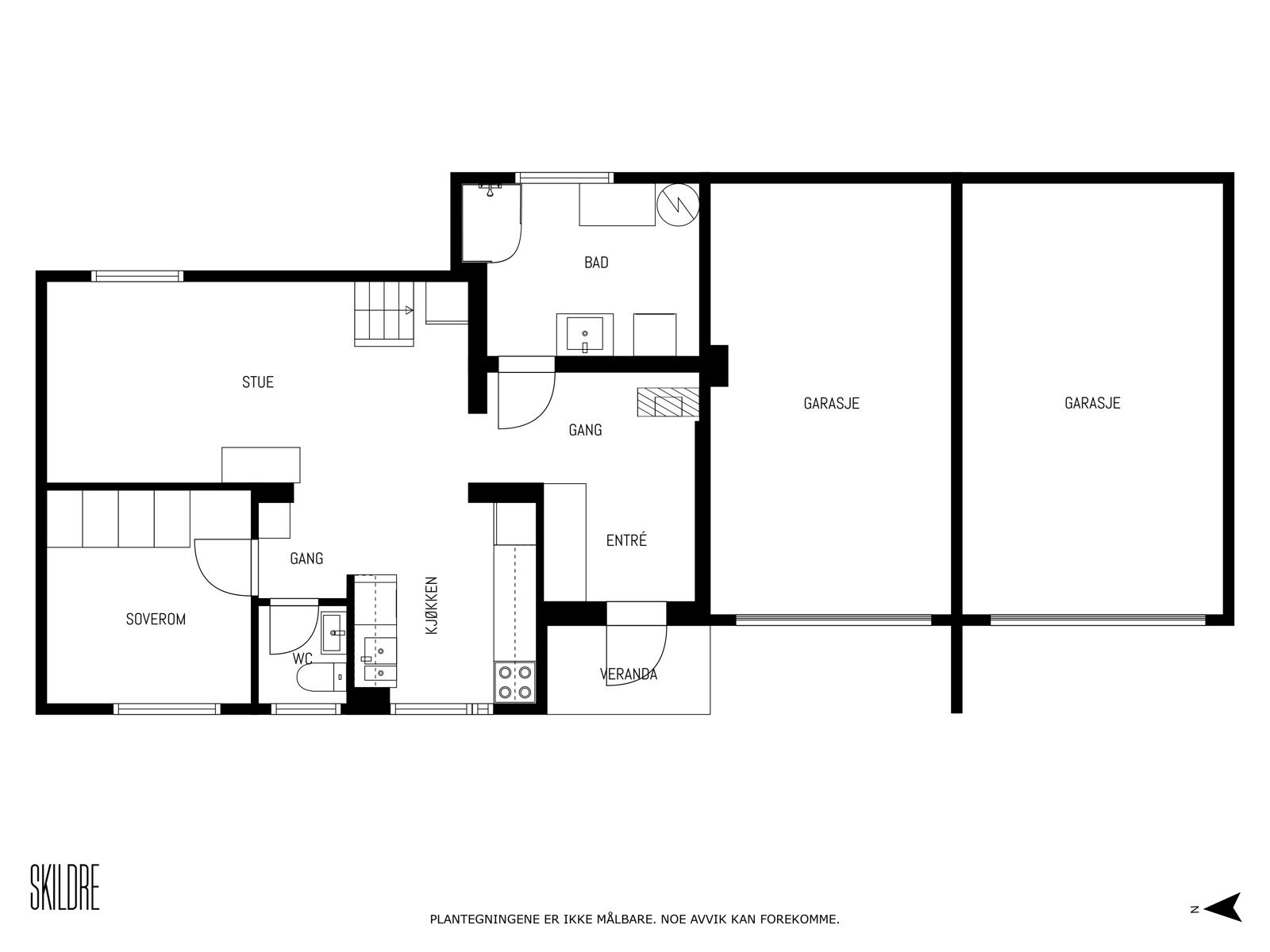
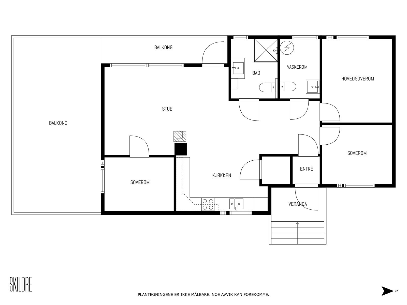
Velholdt enebolig over to plan med sentral beliggenhet i Løten. Boligen ble oppført i 1976 over to plan. Her bor du med en familievennlig planløsning i 1. etg med gang, stue, kjøkken, bad, vaskrom og tre soverom. Sokkeletg passer ypperlig for utleie, men kan og tas i bruk av storfamilen dersom det er et behov. Til sokkeletasjen er det egen bi-inngang, stue/kjøkken, bad og toalett.
Boligen er betydelig oppgradert de siste 11 årene med bl. a nytt kjøkken(2021), bad i 1. etasje(2021), nyere el-anelgg samt mye nytt på VVS-anlegget. I første etasje er det fine overflater som gir en tidsriktig standard.
Nevneverdig:
- Leieavt. sokkel: Kr 8.186,- per mnd
- Nytt bad og kjøkken (2021)
- Ny drenering på vest- og nordvegg i 2014
- Laget radonavsug i 2024
- 2 integrerte garasjer og 1 frittstående garasje
Salgsoppgaven beskriver vesentlig og lovpålagt informasjon om eiendommen
Se komplett salgsoppgaveNyttige lenker
Nærområdet
PrivatMegleren Hamar
Annonseinformasjon
| FINN-kode | 415509502 |
|---|---|
| Sist endret | 30. jan. 2026 03:18 |
| Referanse | 320250008 |
Annonsene kan være mangelfulle i forhold til lovpålagt opplysningsplikt. Før bindende avtale inngås oppfordres interessenter til å innhente komplett informasjon fra meglerforetaket, selger eller utleier.















































