Bildegalleri

Krogsveen Sunnmøre v/Eiendomsmegler Christian Nogva Aarseth har gleden av å presentere Fredsbergvegen 27
Solgt
Larsgården
2-roms andelsleilighet med balkong og flott sjøutsikt | P-plass i garasjeanlegg | Pent opparbeidet fellesareal
Prisantydning2 350 000 kr
Nøkkelinfo
- Boligtype
- Leilighet
- Eieform
- Andel
- Soverom
- 1
- Internt bruksareal
- 63 m² (BRA-i)
- Bruksareal
- 69 m²
- Eksternt bruksareal
- 6 m² (BRA-e)
- Balkong/Terrasse
- 6 m² (TBA)
- Etasje
- 2
- Byggeår
- 1980
- Energimerking
- E - Rød
- Rom
- 2
- Tomteareal
- 48 775 m² (eiet)
Fasiliteter
Balkong/Terrasse
Barnevennlig
Bredbåndstilknytning
Garasje/P-plass
Hage
Ingen gjenboere
Kabel-TV
Offentlig vann/kloakk
Rolig
Sentralt
Utsikt
Vaktmester-/vektertjeneste
Bademulighet
Fiskemulighet
Turterreng
Lademulighet
Om boligen
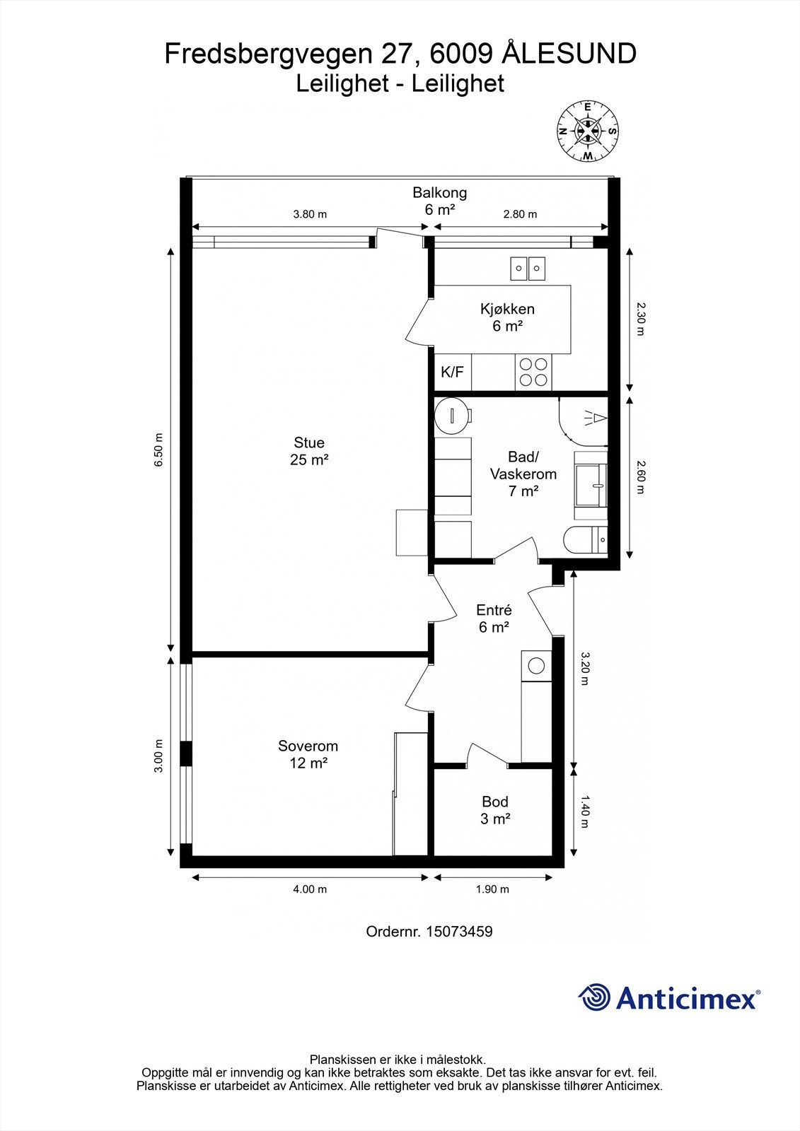
Krogsveen Sunnmøre v/Eiendomsmegler Christian Nogva Aarseth har gleden av å presentere en koselig andelsleilighet i et godt drevet borettslag med flotte fellesarealer med parkmessig opparbeidelse, garasjeanlegg (mulighet for ladepunkt) og gapahuk til fri benyttelse av beboerne!. Leiligheten ligger i 2. etasje helt øst i borettslaget og inneholder: Entre, stue, kjøkken, bad, soverom og bod. Utgang til sydøstvendt balkong med flott utsikt.. I tillegg disponerer leiligheten ekstern bod på samme etasje. Leiligheten disponerer parkeringsplass i felles garasjeanlegg. I tilknytning til eiendommen er det opparbeidet en liten småbåthavn, med mulighet for leie av båtplass.
Nærmeste dagligvare ca. 500 m vest for leiligheten. Til bysentrum ca. 5 km og til Moa ca 7,5 km.
Nærmeste dagligvare ca. 500 m vest for leiligheten. Til bysentrum ca. 5 km og til Moa ca 7,5 km.
NB: Knappen for å vise hele beskrivelsen har kun en visuell effekt.
NB: Knappen for å vise hele beskrivelsen har kun en visuell effekt.
Salgsoppgaven beskriver vesentlig og lovpålagt informasjon om eiendommen
Se komplett salgsoppgaveNyttige lenker
Nærområdet
Krogsveen Ålesund
Verdien av en god megler.
Annonseinformasjon
| FINN-kode | 414888623 |
|---|---|
| Sist endret | 11. juli 2025 10:54 |
| Referanse | KR76.25165 |
Annonsene kan være mangelfulle i forhold til lovpålagt opplysningsplikt. Før bindende avtale inngås oppfordres interessenter til å innhente komplett informasjon fra meglerforetaket, selger eller utleier.
































