Bildegalleri

Krogsveen v/Sander Stølan presenterer Østmo 9C! Foto: Danny Twang
Skien - Kjørbekk
3-roms leilighet i 1.etg med gjennomgående god standard. Attraktiv og sentral beliggenhet. Romslig innglasset balkong.
Prisantydning2 050 000 kr
Nøkkelinfo
- Boligtype
- Leilighet
- Eieform
- Andel
- Soverom
- 2
- Internt bruksareal
- 70 m² (BRA-i)
- Bruksareal
- 80 m²
- Innglasset balkong
- 10 m² (BRA-b)
- Etasje
- 1
- Byggeår
- 1963
- Energimerking
- G - Rød
- Rom
- 3
- Tomteareal
- 10 620 m² (eiet)
Fasiliteter
Balkong/Terrasse
Barnevennlig
Bredbåndstilknytning
Garasje/P-plass
Kabel-TV
Offentlig vann/kloakk
Peis/Ildsted
Rolig
Sentralt
Lademulighet
Visning
Ta kontakt med megler for avtale om privatvisning.
Ønsker du kun å bli holdt orientert, kan du fra eiendommens hjemmeside få varsel om solgtpris, eller kontakte megler.
VisningspåmeldingOm boligen
Leiligheten ligger i et attraktivt, veletablert og barnevennlig område på Kjørbekk. Det er gangavstand til både barnehage og Kjørbekkhøgda barneskole. I tillegg har man flere dagligvareforretninger, gode bussforbindelser til Skien og Porsgrunn m.m. Man har også Sagasenteret med matbutikk, apotek, frisør og flere butikker i nærhet, Skien fritidspark med idrettshaller, badeland, skøytebane, tennis, padel, fotball, klatrepark og mye mer!
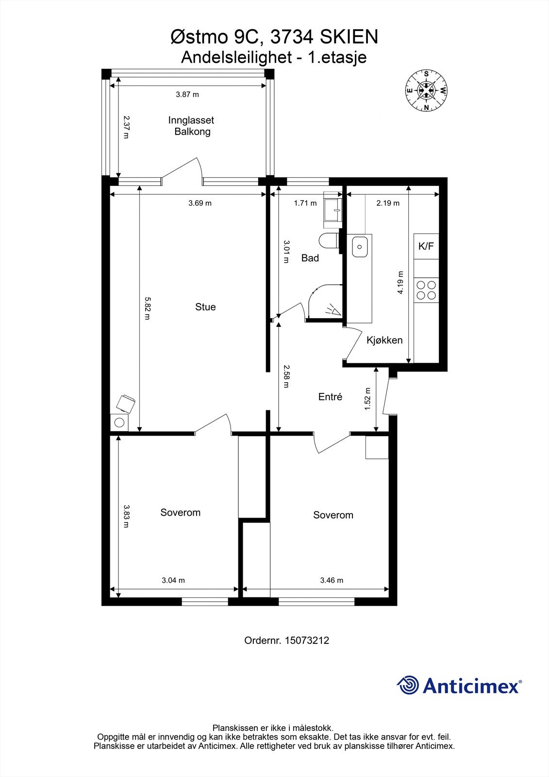
Inneholder: Entré, stue, kjøkken og to soverom.
I tillegg disponerer leiligheten 2 boder og parkeringsplass utenfor leiligheten.
Inneholder: Entré, stue, kjøkken og to soverom.
I tillegg disponerer leiligheten 2 boder og parkeringsplass utenfor leiligheten.
NB: Knappen for å vise hele beskrivelsen har kun en visuell effekt.
NB: Knappen for å vise hele beskrivelsen har kun en visuell effekt.
Salgsoppgaven beskriver vesentlig og lovpålagt informasjon om eiendommen
Se komplett salgsoppgaveNyttige lenker
Nærområdet
Krogsveen Skien
Verdien av en god megler.
Annonseinformasjon
| FINN-kode | 414887778 |
|---|---|
| Sist endret | 03. feb. 2026 13:33 |
| Referanse | KR26.2537 |
Annonsene kan være mangelfulle i forhold til lovpålagt opplysningsplikt. Før bindende avtale inngås oppfordres interessenter til å innhente komplett informasjon fra meglerforetaket, selger eller utleier.



















