Bildegalleri

Adnan Nabi (47 26 74 86) ved Privatmegleren har gleden av å presentere denne flotte leiligheten over 2 plan
Solgt
Høyt og luftig på Rødtvet
Stor 4-roms | Bad & kjøkken renovert i 2022 | o/2 plan | Heis | Innglasset balkong | Utsikt | Barnevennlig | Nær marka
Prisantydning5 500 000 kr
Nøkkelinfo
- Boligtype
- Leilighet
- Eieform
- Andel
- Soverom
- 3
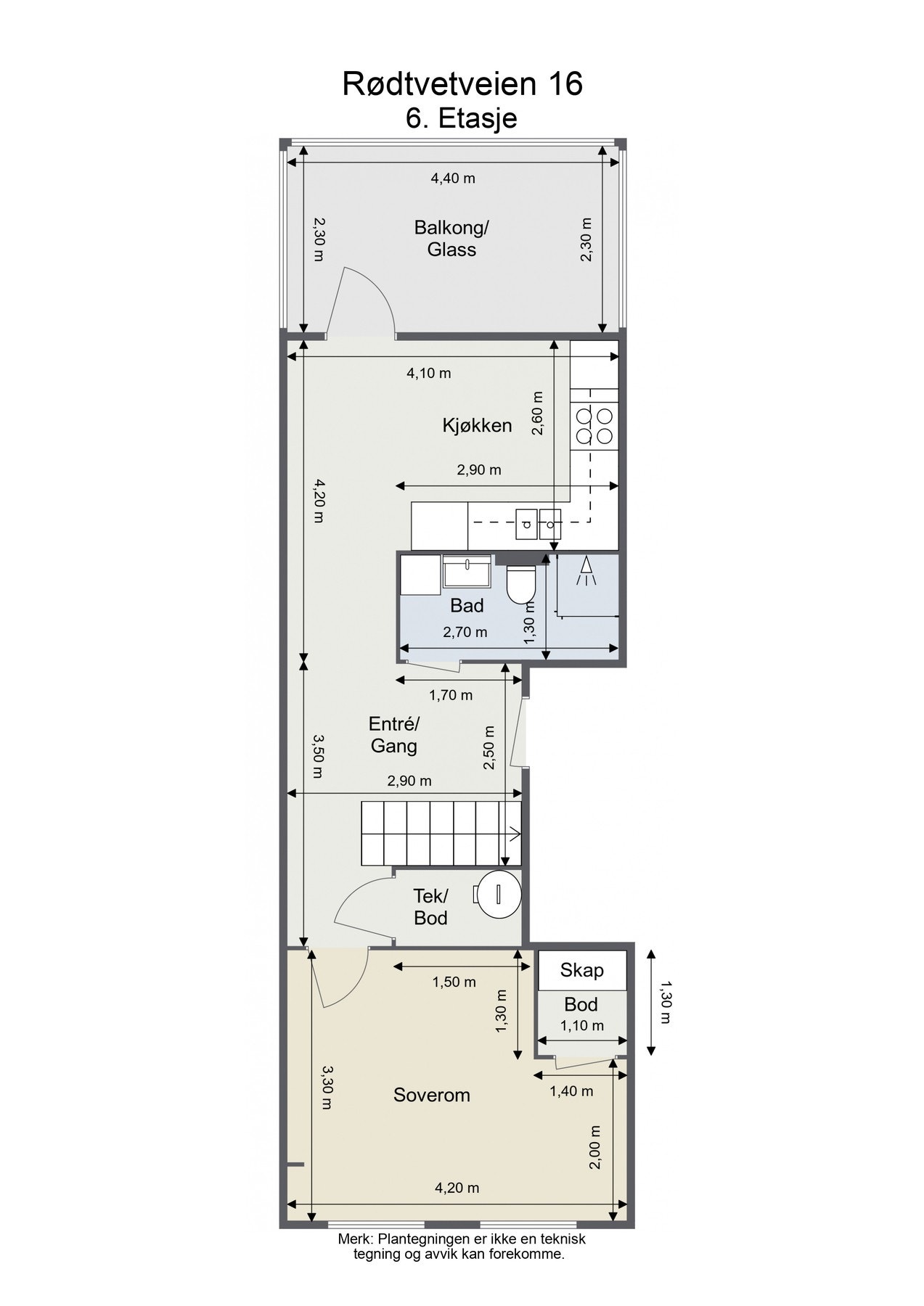
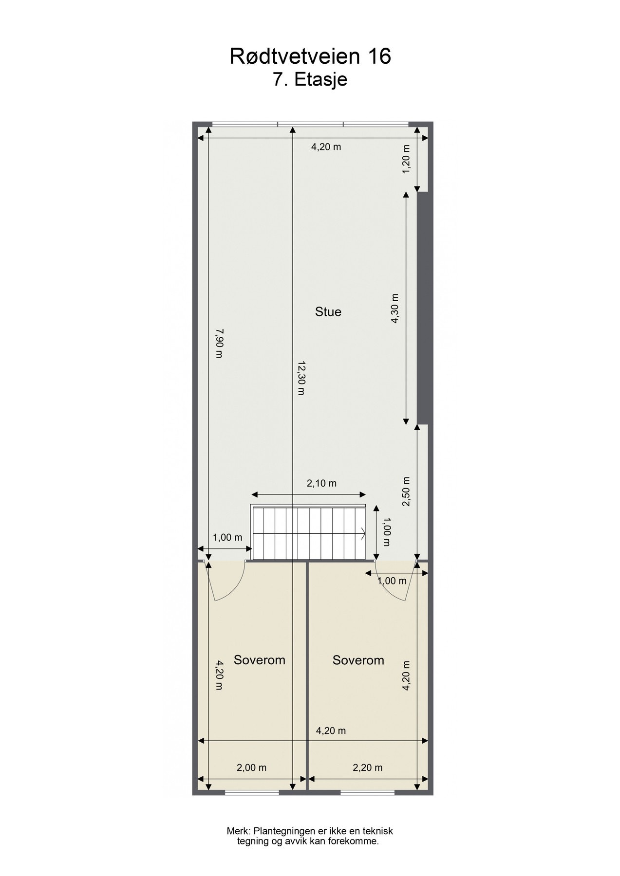
- Internt bruksareal
- 93 m² (BRA-i)
- Bruksareal
- 105 m²
- Eksternt bruksareal
- 2 m² (BRA-e)
- Innglasset balkong
- 10 m² (BRA-b)
- Etasje
- 6
- Byggeår
- 1962
- Energimerking
- G - Rød
- Rom
- 4
- Tomteareal
- 16 610 m²
Fasiliteter
Barnevennlig
Balkong/Terrasse
Kabel-TV
Alarm
Heis
Offentlig vann/kloakk
Ingen gjenboere
Turterreng
Utsikt
Vaktmester-/vektertjeneste
Sentralt
Bredbåndstilknytning
Moderne
Rolig
Om boligen
Velkommen til en leilighet over 2 plan. Her flytter du rett inn!
Smakfullt 4-roms i områdets mest populære borettslag, rett ved marka. Stedet har alt man trenger i det daglige og er perfekt for småbarnsfamilier. Leiligheten ligger i hhv. 6. og 7. etasje med nydelig utsikt, og har en innglasset vestvendt balkong med ettermiddag og kveldssol.
Høydepunkter:
- Mulighet for å leie parkeringsplass
- Leiligheten fikk nye vinduer i 2015
- Ingen forkjøpsrett
- Familievennlig område
- Rolig og attraktiv beliggenhet
- Vestvendt balkong med sol og utsikt
- Bod i leiligheten og i kjelleren
- Gode kollektivmuligheter
Smakfullt 4-roms i områdets mest populære borettslag, rett ved marka. Stedet har alt man trenger i det daglige og er perfekt for småbarnsfamilier. Leiligheten ligger i hhv. 6. og 7. etasje med nydelig utsikt, og har en innglasset vestvendt balkong med ettermiddag og kveldssol.
Høydepunkter:
- Mulighet for å leie parkeringsplass
- Leiligheten fikk nye vinduer i 2015
- Ingen forkjøpsrett
- Familievennlig område
- Rolig og attraktiv beliggenhet
- Vestvendt balkong med sol og utsikt
- Bod i leiligheten og i kjelleren
- Gode kollektivmuligheter
NB: Knappen for å vise hele beskrivelsen har kun en visuell effekt.
NB: Knappen for å vise hele beskrivelsen har kun en visuell effekt.
Salgsoppgaven beskriver vesentlig og lovpålagt informasjon om eiendommen
Se komplett salgsoppgaveNyttige lenker
Nærområdet

PrivatMegleren Panorama
Kun det beste på dine vegne
Annonseinformasjon
| FINN-kode | 414484523 |
|---|---|
| Sist endret | 21. aug. 2025 09:49 |
| Referanse | 38251113 |
Annonsene kan være mangelfulle i forhold til lovpålagt opplysningsplikt. Før bindende avtale inngås oppfordres interessenter til å innhente komplett informasjon fra meglerforetaket, selger eller utleier.
















































