Bildegalleri

Flott 3-roms leilighet i byggets øverste etasje med kvaliteter som innglasset altan og utvidet baderom
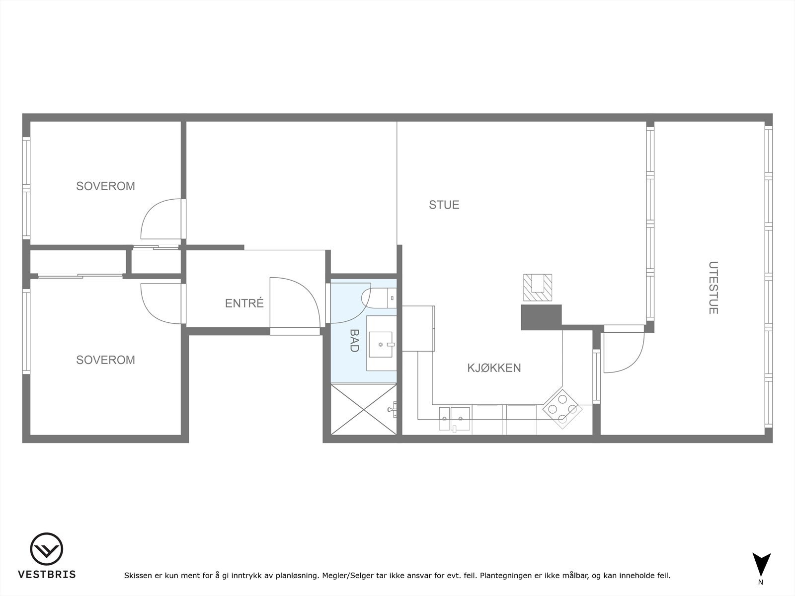
Flott 3-roms i byggets øverste etasje med kvaliteter som innglasset altan og utvidet baderom
Nøkkelinfo
- Boligtype
- Leilighet
- Eieform
- Andel
- Soverom
- 2
- Primærrom
- 70 m²
- Bruksareal
- 85 m²
- Etasje
- 4
- Byggeår
- 1962
- Rom
- 3
- Tomt
- Eiet
Om boligen
Ny varmepumpe installert i 2025.
Det medfølger boder kjeller og det er opparbeidet felles parkeringsplass.
Beliggenheten er helt ypperlig for deg som ønsker å bo med nærhet til alt man behøver i det daglige. Her er det kort vei til det meste av skoler, servicetilbud og turmuligheter.
Salgsoppgaven beskriver vesentlig og lovpålagt informasjon om eiendommen
Se komplett salgsoppgaveNyttige lenker
Nærområdet
EiendomsMegler 1 Haugesund
Prisstatistikk
Frøyas veg 6B
på annonsen
prisantydning per kvadratmeter
Prisfordeling
Pris per m² ligger 926 kr under snittet for leiligheter i Haugesund.
Grafen viser antall leiligheter solgt i Haugesund siste året fordelt på pris per m² - totalt 527 leiligheter
Antall boliger
Kvadratmeterpris tilsvarer prisantydning pluss fellesgjeld per kvadratmeter (p-rom eller BRA-i). Prisene i grafen er avrundet til nærmeste 1000 kr.
Annonseinformasjon
| FINN-kode | 414451629 |
|---|---|
| Sist endret | 22. aug. 2025 10:19 |
| Referanse | 2501250169 |
Annonsene kan være mangelfulle i forhold til lovpålagt opplysningsplikt. Før bindende avtale inngås oppfordres interessenter til å innhente komplett informasjon fra meglerforetaket, selger eller utleier.
































