Bildegalleri

Privatmegleren v/ Julius Bach Akerholt ønsker velkommen til Hotvedtveien 20/20B!
Klinestad
Bør sees! Idyllisk, innflytningsklart og velholdt gårdstun på ca. 3,8 mål | 2 boliger | Lagerbygg | Uthus | Solrikt!
Prisantydning7 990 000 kr
Nøkkelinfo
- Boligtype
- Enebolig
- Eieform
- Eier (Selveier)
- Soverom
- 5
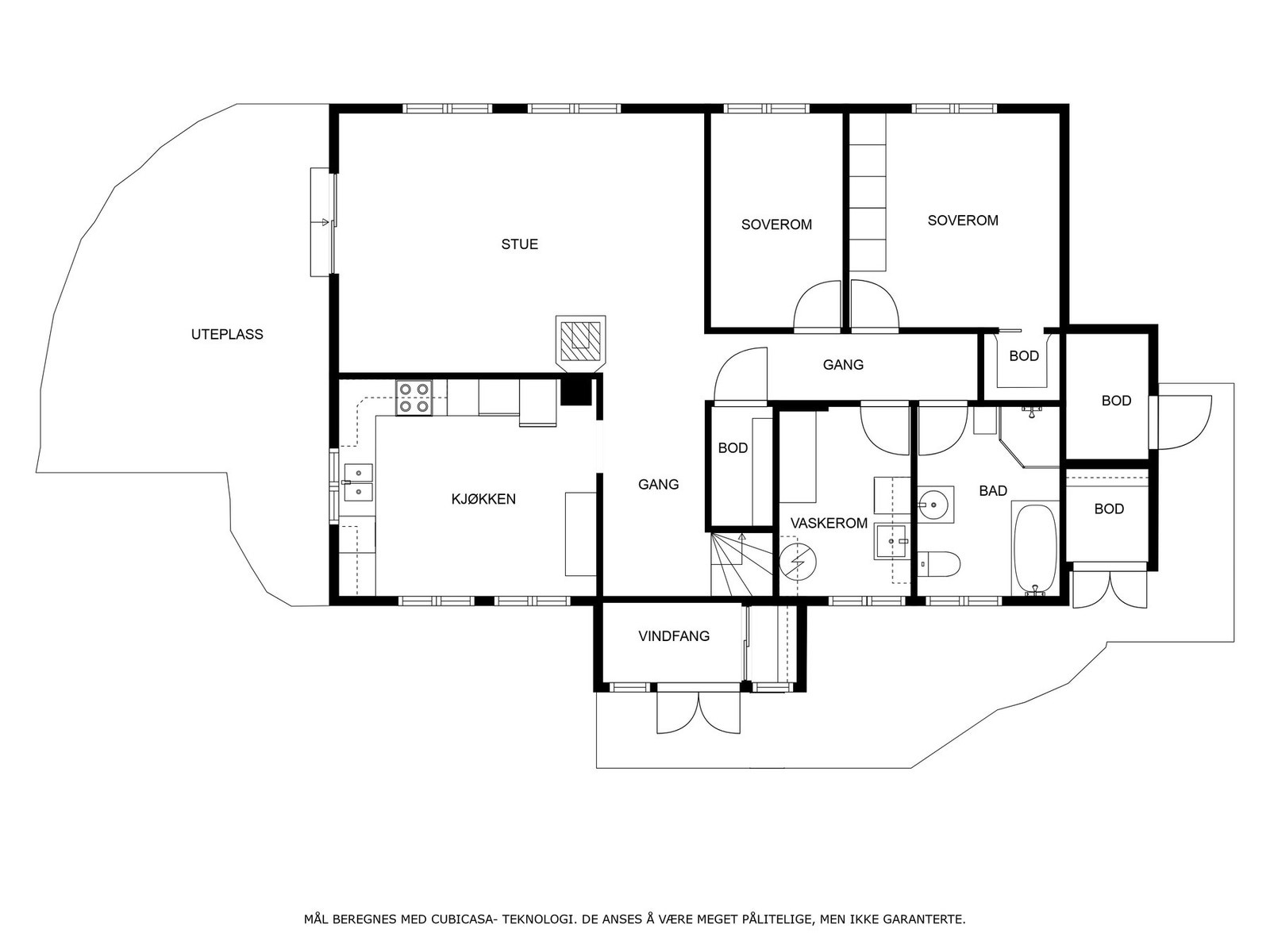
- Internt bruksareal
- 304 m² (BRA-i)
- Bruksareal
- 620 m²
- Eksternt bruksareal
- 316 m² (BRA-e)
- Balkong/Terrasse
- 24 m² (TBA)
- Byggeår
- 2003
- Energimerking
- D - Oransje
- Tomt
- Eiet
Fasiliteter
Barnevennlig
Balkong/Terrasse
Parkett
Peis/Ildsted
Turterreng
Utsikt
Sentralt
Rolig
Om boligen
Velkommen til Hotvedtveien 20/20B! Dette er et meget idyllisk gårdstun med tomt på ca. 3,8 mål. Her bor du i landlige omgivelser, med bare en kort kjøretur inn til byen.
Tomten kan skilte med 2 velholdte boliger fra 2003 og 1750, samt lagerbygg og uthus/låve. I tillegg har du flotte uteområder med god utsikt, fine solforhold og lite innsyn!
Velkommen til en hyggelig visning!
Tomten kan skilte med 2 velholdte boliger fra 2003 og 1750, samt lagerbygg og uthus/låve. I tillegg har du flotte uteområder med god utsikt, fine solforhold og lite innsyn!
Velkommen til en hyggelig visning!
NB: Knappen for å vise hele beskrivelsen har kun en visuell effekt.
NB: Knappen for å vise hele beskrivelsen har kun en visuell effekt.
Salgsoppgaven beskriver vesentlig og lovpålagt informasjon om eiendommen
Se komplett salgsoppgaveNyttige lenker
Nærområdet
PrivatMegleren Sandefjord
Kun det beste på dine vegne
Annonseinformasjon
| FINN-kode | 414448600 |
|---|---|
| Sist endret | 16. des. 2025 13:05 |
| Referanse | 33250054 |
Annonsene kan være mangelfulle i forhold til lovpålagt opplysningsplikt. Før bindende avtale inngås oppfordres interessenter til å innhente komplett informasjon fra meglerforetaket, selger eller utleier.


























































