Bildegalleri

Storgata-20-15
Fredrikstad sentrum
Sentral og arealeffektiv 2-roms med stor takhøyde, midt i byen og lave felleskostnader
Prisantydning3 200 000 kr
Nøkkelinfo
- Boligtype
- Leilighet
- Eieform
- Eier (Selveier)
- Soverom
- 1
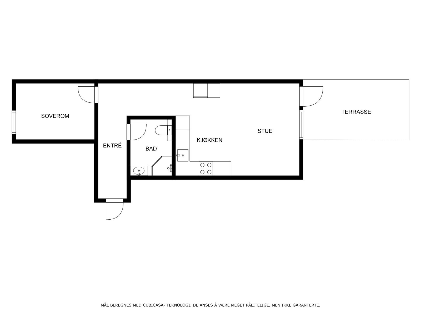
- Internt bruksareal
- 43 m² (BRA-i)
- Bruksareal
- 43 m²
- Etasje
- 3
- Byggeår
- 1890
- Rom
- 2
- Tomteareal
- 650 m²
Visning
For at vår megler og selger skal kunne gi deg den beste oppfølgingen og kjøpsopplevelsen er det obligatorisk påmelding til alle våre visninger. Dersom ditt reserverte tidspunkt likevel ikke kan benyttes trenger vi beskjed så tidlig som mulig sånn at vi kan finne en alternativ løsning. Vi har alltid tid til deg. Visninger uten påmeldte deltagere avlyses.
VisningspåmeldingOm boligen
Velkommen til Hollendergata 3!
Leiligheten ligger rett ved bryggepromenaden, kun én gate unna restauranter, uteliv og byens pulserende liv. Med kort vei til byfergen og gangbroen til høyskolen, ligger alt til rette for både egen bruk og utleie.
Velpassende som utleieobjekt eller studentbolig - kort gangavstand til Høyskolen på Værste
Sentralt
Vannbåren oppvarming inkludert i felleskostnader
Tilgang til felles vaskerom
Leiligheten ligger rett ved bryggepromenaden, kun én gate unna restauranter, uteliv og byens pulserende liv. Med kort vei til byfergen og gangbroen til høyskolen, ligger alt til rette for både egen bruk og utleie.
Velpassende som utleieobjekt eller studentbolig - kort gangavstand til Høyskolen på Værste
Sentralt
Vannbåren oppvarming inkludert i felleskostnader
Tilgang til felles vaskerom
NB: Knappen for å vise hele beskrivelsen har kun en visuell effekt.
NB: Knappen for å vise hele beskrivelsen har kun en visuell effekt.
Salgsoppgaven beskriver vesentlig og lovpålagt informasjon om eiendommen
Se komplett salgsoppgaveNyttige lenker
Nærområdet
Proaktiv Eiendomsmegling Sarpsborg
Alltid tid til deg
Annonseinformasjon
| FINN-kode | 414346243 |
|---|---|
| Sist endret | 09. feb. 2026 15:25 |
| Referanse | 1700260021 |
Annonsene kan være mangelfulle i forhold til lovpålagt opplysningsplikt. Før bindende avtale inngås oppfordres interessenter til å innhente komplett informasjon fra meglerforetaket, selger eller utleier.

















