Bildegalleri

Waldemar Aunes veg 6D presenteres av EIE eiendomsmegling ved Amrinder Singh.
Solgt
Hallset
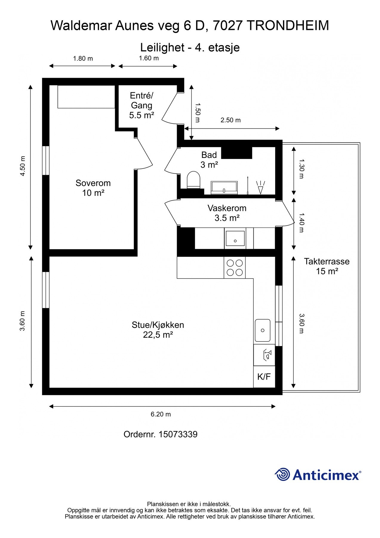
Totalrenovert 2-roms leilighet i 2021. Gulvvarme. Vaskerom. Takterrasse på 15m² m/ flott utsikt. Nært marka. Parkering.
Prisantydning2 850 000 kr
Nøkkelinfo
- Boligtype
- Leilighet
- Eieform
- Andel
- Soverom
- 1
- Internt bruksareal
- 48 m² (BRA-i)
- Bruksareal
- 54 m²
- Eksternt bruksareal
- 6 m² (BRA-e)
- Balkong/Terrasse
- 15 m² (TBA)
- Etasje
- 4
- Byggeår
- 1966
- Energimerking
- G - Rød
- Rom
- 2
- Tomt
- Eiet
Fasiliteter
Barnevennlig
Balkong/Terrasse
Garasje/P-plass
Kabel-TV
Offentlig vann/kloakk
Turterreng
Utsikt
Vaktmester-/vektertjeneste
Sentralt
Bredbåndstilknytning
Moderne
Rolig
Lademulighet
Om boligen
EIE eiendomsmegling v/ Amrinder Singh har gleden av å presentere Waldemar Aunes veg 6D - en flott 2-roms toppleilighet med gjennomtenkt planløsning, nydelig utsikt og gode solforhold. Leiligheten ble totalrenovert i 2021 av fagfolk, og holder høy standard.
Kvaliteter verdt å merke seg:
- Toppetasje med god takhøyde og rikelig lysinnslipp
- Moderne bad og kjøkken fra 2021
- Nytt elektrisk anlegg fra 2021
- Eget vaskerom
- Stilfulle downlights som gir behagelig belysning
- Gulvvarme i alle rom for jevn og effektiv oppvarming
- Flott utsikt fra leiligheten
- Bod i kjeller
- Takterrasse på 15 m²
- 90 % av bygningsdelene i solid teknisk stand (TG1)
- Kabel-TV/bredbånd, kommunale avgifter og vaktmestertjenester inkludert i felleskostnader
- Nærhet til flotte turområder i Bymarka
- Kort vei til treningssenter og gode kollektivtilbud
- Mulighet for leie av parkeringsplass med elbillader
- Rørfornying i blokka gjennomført i 2024
Velkommen til visning!
Kvaliteter verdt å merke seg:
- Toppetasje med god takhøyde og rikelig lysinnslipp
- Moderne bad og kjøkken fra 2021
- Nytt elektrisk anlegg fra 2021
- Eget vaskerom
- Stilfulle downlights som gir behagelig belysning
- Gulvvarme i alle rom for jevn og effektiv oppvarming
- Flott utsikt fra leiligheten
- Bod i kjeller
- Takterrasse på 15 m²
- 90 % av bygningsdelene i solid teknisk stand (TG1)
- Kabel-TV/bredbånd, kommunale avgifter og vaktmestertjenester inkludert i felleskostnader
- Nærhet til flotte turområder i Bymarka
- Kort vei til treningssenter og gode kollektivtilbud
- Mulighet for leie av parkeringsplass med elbillader
- Rørfornying i blokka gjennomført i 2024
Velkommen til visning!
NB: Knappen for å vise hele beskrivelsen har kun en visuell effekt.
NB: Knappen for å vise hele beskrivelsen har kun en visuell effekt.
Salgsoppgaven beskriver vesentlig og lovpålagt informasjon om eiendommen
Se komplett salgsoppgaveNyttige lenker
Nærområdet
EIE eiendomsmegling Heimdal
Annonseinformasjon
| FINN-kode | 414223531 |
|---|---|
| Sist endret | 25. aug. 2025 11:28 |
| Referanse | 97251085 |
Annonsene kan være mangelfulle i forhold til lovpålagt opplysningsplikt. Før bindende avtale inngås oppfordres interessenter til å innhente komplett informasjon fra meglerforetaket, selger eller utleier.

























