Bildegalleri

Megler Fabian Robertino (92117474) presenterer Dr. Gregertsens vei 13!
Fredrikstad Øst
Stor enebolig o/2 plan i barnevennlig område m/ potensiale | 2 Kjøkken & 2 bad | Stor & høytliggende tomt m/ eplehage
Prisantydning3 250 000 kr
Nøkkelinfo
- Boligtype
- Enebolig
- Eieform
- Eier (Selveier)
- Soverom
- 3
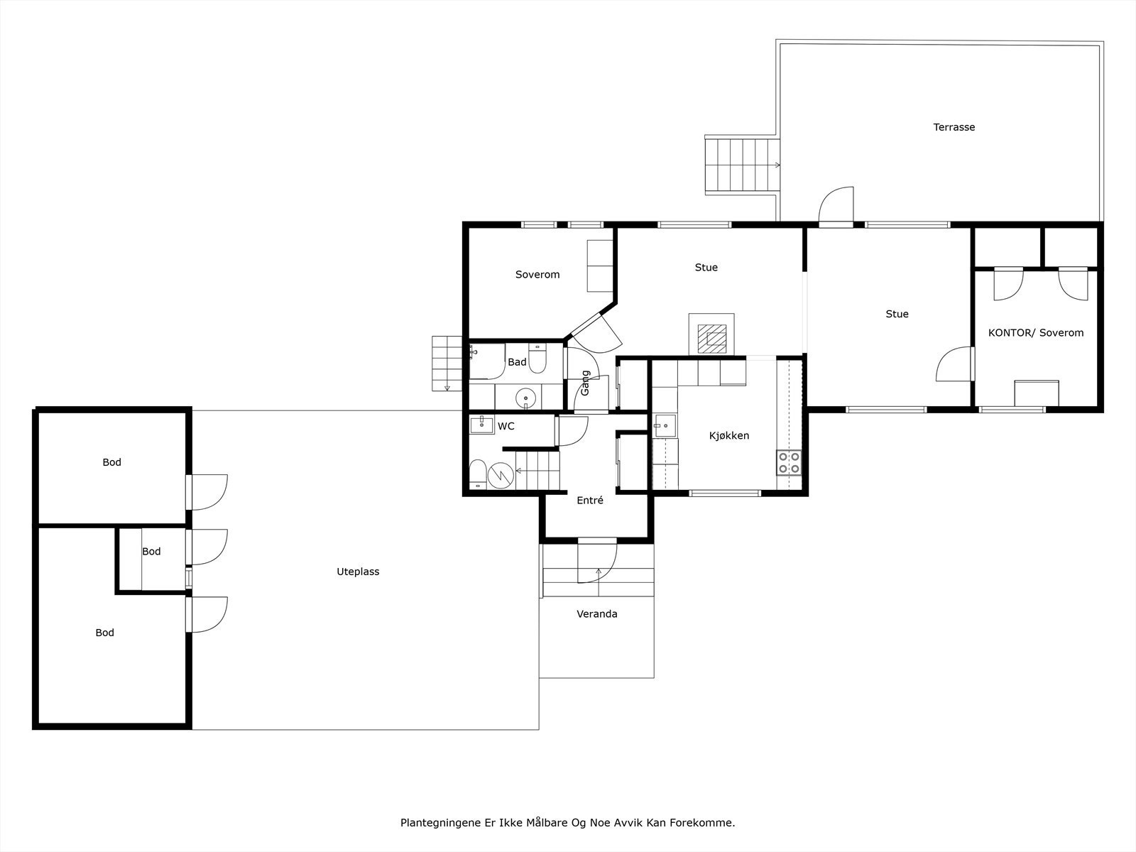
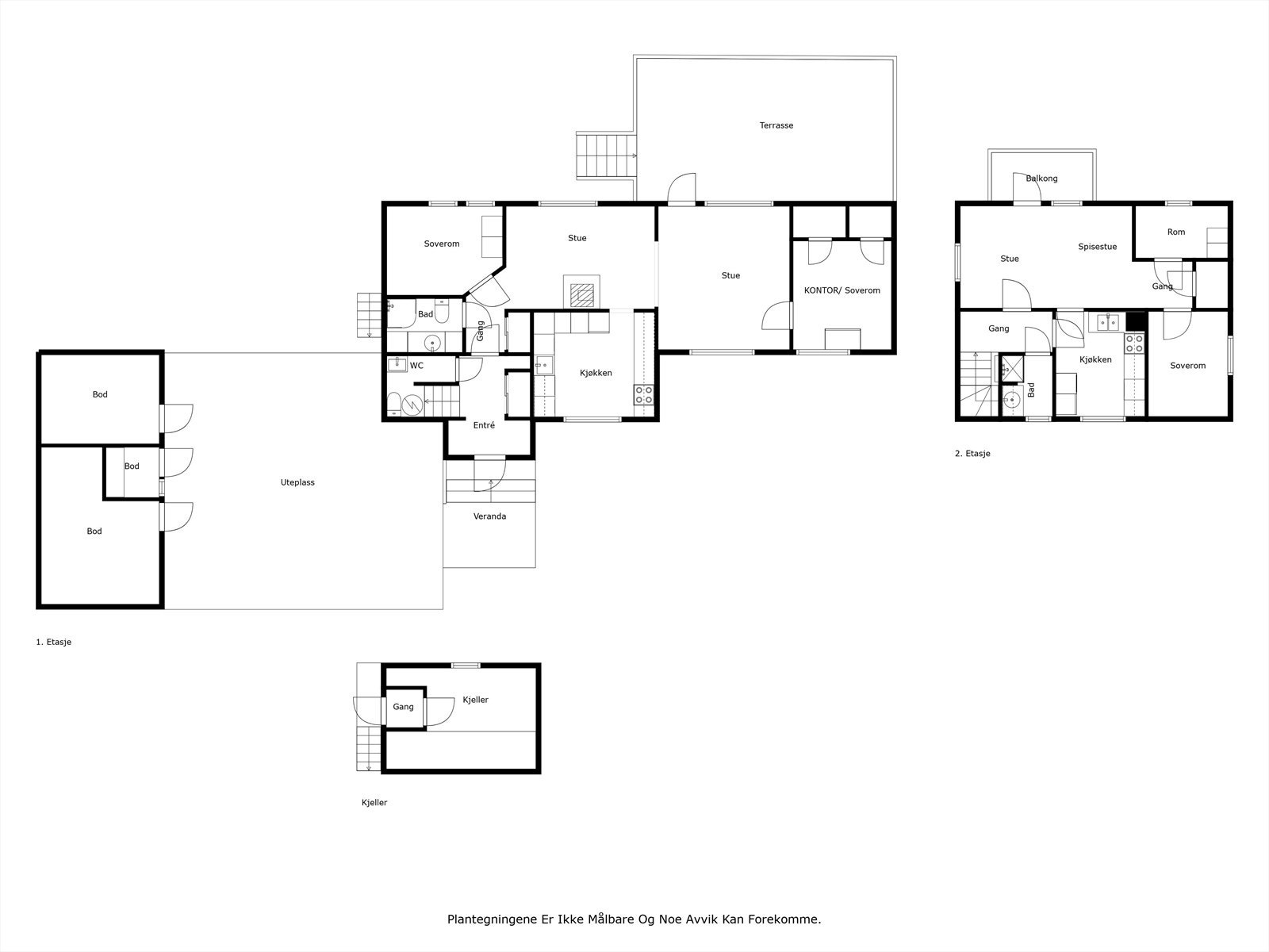
- Internt bruksareal
- 124 m² (BRA-i)
- Bruksareal
- 148 m²
- Eksternt bruksareal
- 24 m² (BRA-e)
- Balkong/Terrasse
- 33 m² (TBA)
- Etasje
- 2
- Byggeår
- 1891
- Energimerking
- G - Oransje
- Tomteareal
- 469 m² (eiet)
Fasiliteter
Balkong/Terrasse
Barnevennlig
Bredbåndstilknytning
Garasje/P-plass
Hage
Offentlig vann/kloakk
Peis/Ildsted
Sentralt
Utsikt
Turterreng
Visning
Velkommen til visning! Meld deg på ved å trykke "visningspåmelding" i våre boligannonser. Ta gjerne kontakt med megler i forkant av visningen om du har spørsmål.
VisningspåmeldingOm boligen
Megler Fabian Robertino (92117474) presenterer en enebolig i etablert boligområde sentralt på Sellebakk. Her bor du med med nærhet til bl.a barnehager, skoler, samt en rekke butikker og servicefasiliteter. Flotte tur- og rekreasjonsmuligheter, bl.a. går Glommastien like på nedsiden av eiendommen. Boligen går over to plan og byr på bl.a. 2 stuer, 2 kjøkken, 2 bad og 3 soverom. Andre etasje er i dag utleid, uten at
- Eldre og etablert boligområde/li>
- Moderniseringsbehov
- Eiendommen byr på et gjennomført uteområde med gode solforhold
- Skjermet vestvendt terrasse med mye sol på 29 m²
- Gruset gårdsplass med gode parkeringsmuligheter
- Gode bussforbindelser til både Fredrikstad og Sarpsborg
- Tidligere tomannsbolig iflg selger
NB: Knappen for å vise hele beskrivelsen har kun en visuell effekt.
NB: Knappen for å vise hele beskrivelsen har kun en visuell effekt.
Salgsoppgaven beskriver vesentlig og lovpålagt informasjon om eiendommen
Se komplett salgsoppgaveNyttige lenker
Nærområdet
DNB Eiendom AS
Fra hjem til hjem
Annonseinformasjon
| FINN-kode | 413895315 |
|---|---|
| Sist endret | 28. nov. 2025 12:36 |
| Referanse | 217250098 |
Annonsene kan være mangelfulle i forhold til lovpålagt opplysningsplikt. Før bindende avtale inngås oppfordres interessenter til å innhente komplett informasjon fra meglerforetaket, selger eller utleier.









































