Bildegalleri

Nordvik v/Christoffer Kvalshaugen har gleden av å presentere denne lyse og romslige 5-roms leiligheten som går over to plan på Hårkollen!
Skallestad!
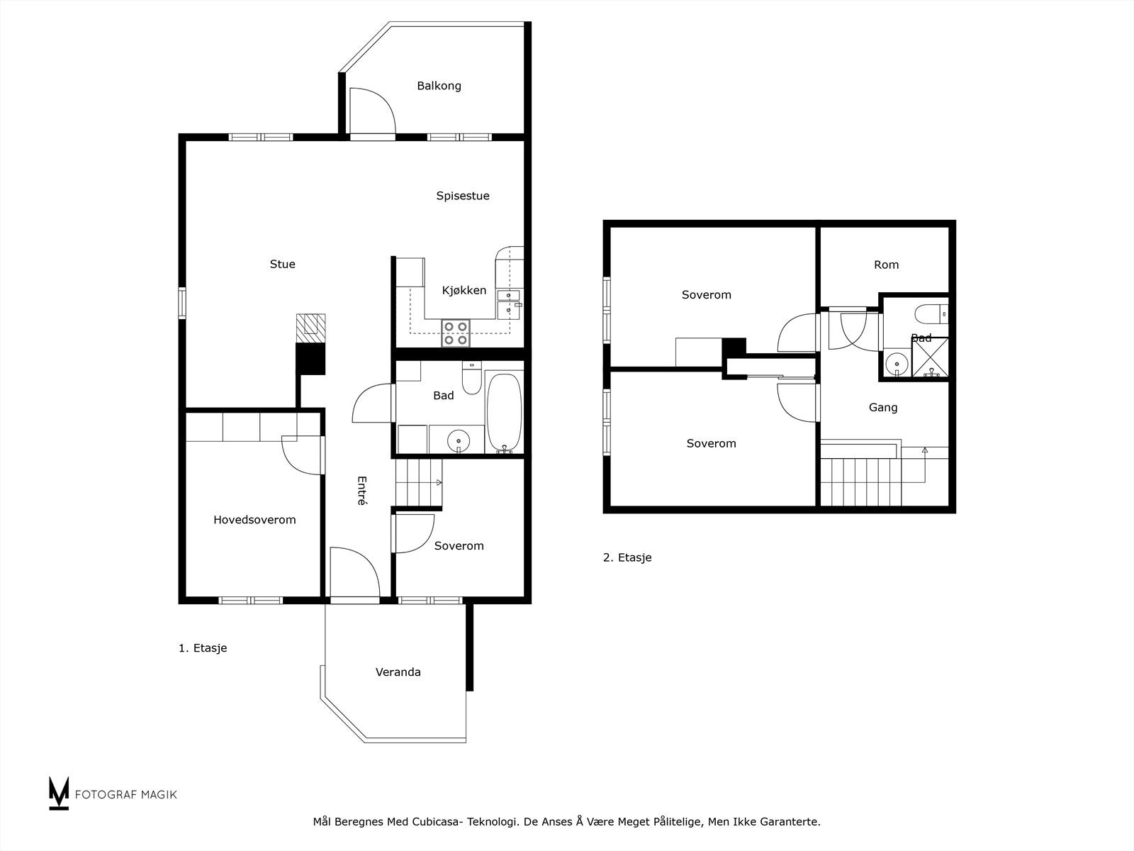
Lys og romslig 5-roms over to plan - solrik terrasse, 2 bad og flott beliggenhet nær sjø, natur og skole!
Prisantydning2 900 000 kr
Nøkkelinfo
- Boligtype
- Leilighet
- Eieform
- Andel
- Soverom
- 4
- Internt bruksareal
- 98 m² (BRA-i)
- Bruksareal
- 103 m²
- Eksternt bruksareal
- 5 m² (BRA-e)
- Balkong/Terrasse
- 8 m² (TBA)
- Etasje
- 2
- Byggeår
- 1993
- Energimerking
- G - Rød
- Rom
- 5
- Tomteareal
- 6 164 m² (eiet)
Fasiliteter
Balkong/Terrasse
Barnevennlig
Bredbåndstilknytning
Garasje/P-plass
Hage
Offentlig vann/kloakk
Rolig
Vaktmester-/vektertjeneste
Turterreng
Visning
onsdag, 04. februar
18:00 – 18:45
Alle våre visninger har påmelding. På denne måten sikrer vi at megler har god oversikt og tid til å imøtekomme alle interessenter. Meld deg på visning ved å trykke på lenken visningspåmelding.
VisningspåmeldingOm boligen
Velkommen til Skallestadveien 35C en romslig leilighet over to plan med solrik vestvendt terrasse og fire soverom. Boligen ligger flott til i et rolig og koselig nabolag på Hårkollen et ettertraktet område på Nøtterøy med kort vei til både skole, barnehage, dagligvare og naturskjønne turområder.
Her bor du tett på både skog og sjø, med flotte badeplasser og stier i nærområdet. Teie sentrum ligger kun noen minutter unna med et godt utvalg av butikker og service, og Tønsberg sentrum nås enkelt med bil eller buss. Dette er et perfekt sted for deg som ønsker en balansert livsstil med både stillhet og sentral beliggenhet.
Velkommen til visning!
Her bor du tett på både skog og sjø, med flotte badeplasser og stier i nærområdet. Teie sentrum ligger kun noen minutter unna med et godt utvalg av butikker og service, og Tønsberg sentrum nås enkelt med bil eller buss. Dette er et perfekt sted for deg som ønsker en balansert livsstil med både stillhet og sentral beliggenhet.
Velkommen til visning!
NB: Knappen for å vise hele beskrivelsen har kun en visuell effekt.
NB: Knappen for å vise hele beskrivelsen har kun en visuell effekt.
Salgsoppgaven beskriver vesentlig og lovpålagt informasjon om eiendommen
Se komplett salgsoppgaveNyttige lenker
Nærområdet
Nordvik Tønsberg
Annonseinformasjon
| FINN-kode | 413808956 |
|---|---|
| Sist endret | 27. jan. 2026 13:13 |
| Referanse | 25-0111/25 |
Annonsene kan være mangelfulle i forhold til lovpålagt opplysningsplikt. Før bindende avtale inngås oppfordres interessenter til å innhente komplett informasjon fra meglerforetaket, selger eller utleier.


































