Bildegalleri

Velkommen til Rinda 44 C v/ Andreas Anda Dalmar, Eiendomsmegler Norge.
Solgt
Sandved
Lys og moderne 3-roms leilighet med solrik balkong - Balkong på 12 kvm - Sentral og naturskjønn beliggenhet
Prisantydning3 490 000 kr
Nøkkelinfo
- Boligtype
- Leilighet
- Eieform
- Eier (Selveier)
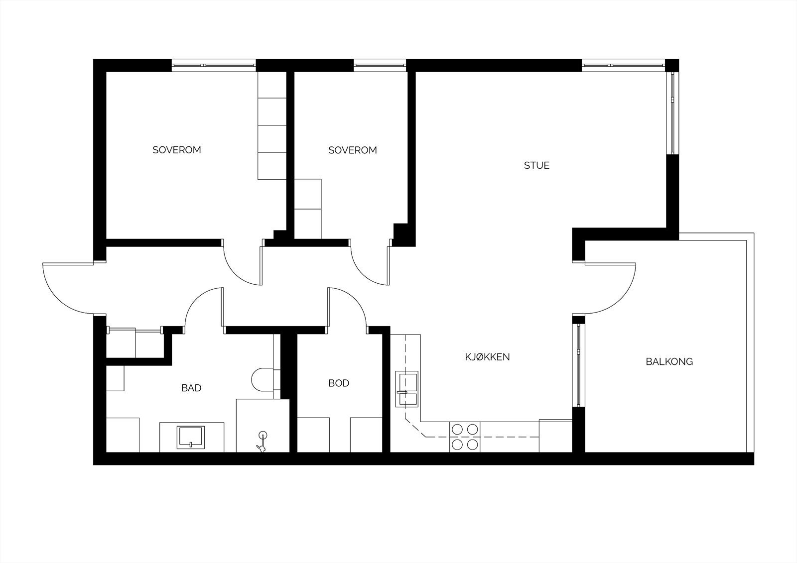
- Soverom
- 2
- Internt bruksareal
- 69 m² (BRA-i)
- Bruksareal
- 74 m²
- Eksternt bruksareal
- 5 m² (BRA-e)
- Balkong/Terrasse
- 12 m² (TBA)
- Etasje
- 2
- Byggeår
- 2014
- Energimerking
- C - Rød
- Rom
- 3
- Tomteareal
- 1 633 m² (eiet)
Fasiliteter
Balkong/Terrasse
Barnevennlig
Bredbåndstilknytning
Garasje/P-plass
Kabel-TV
Parkett
Rolig
Turterreng
Om boligen
Velkommen til en lys og moderne 3-roms leilighet fra 2014 på populære Åse/Sandved.
Leiligheten ligger i byggets 2. etasje og har en gjennomtenkt planløsning, store vindusflater og parkett på gulv. Åpen stue- og kjøkkenløsning med utgang til solrik balkong på ca. 12 kvm. Tidløst HTH-kjøkken med integrerte hvitevarer. To gode soverom og helfliset bad med opplegg for vaskemaskin.
Leiligheten har både innvendig og ekstern bod.
Kort vei til skole, barnehage, butikk, kollektiv og turområder.
Kort fortalt:
-Lys og pen 3-roms i 2. etasje
-Nymalte vegger (2025)
-Solrik balkong på ca. 12 kvm
-Tidløst HTH-kjøkken med integrerte hvitevarer
-To soverom
-Helfliset bad med varmekabler
-God lagring i to boder
-Barnevennlig og sentral beliggenhet
-Parkering på felles plass
Velkommen til visning!
Leiligheten ligger i byggets 2. etasje og har en gjennomtenkt planløsning, store vindusflater og parkett på gulv. Åpen stue- og kjøkkenløsning med utgang til solrik balkong på ca. 12 kvm. Tidløst HTH-kjøkken med integrerte hvitevarer. To gode soverom og helfliset bad med opplegg for vaskemaskin.
Leiligheten har både innvendig og ekstern bod.
Kort vei til skole, barnehage, butikk, kollektiv og turområder.
Kort fortalt:
-Lys og pen 3-roms i 2. etasje
-Nymalte vegger (2025)
-Solrik balkong på ca. 12 kvm
-Tidløst HTH-kjøkken med integrerte hvitevarer
-To soverom
-Helfliset bad med varmekabler
-God lagring i to boder
-Barnevennlig og sentral beliggenhet
-Parkering på felles plass
Velkommen til visning!
NB: Knappen for å vise hele beskrivelsen har kun en visuell effekt.
NB: Knappen for å vise hele beskrivelsen har kun en visuell effekt.
Salgsoppgaven beskriver vesentlig og lovpålagt informasjon om eiendommen
Se komplett salgsoppgaveNyttige lenker
Nærområdet
Eiendomsmegler Norge Stavanger
Best der du bor
Annonseinformasjon
| FINN-kode | 413454441 |
|---|---|
| Sist endret | 30. juni 2025 10:19 |
| Referanse | 20250060 |
Annonsene kan være mangelfulle i forhold til lovpålagt opplysningsplikt. Før bindende avtale inngås oppfordres interessenter til å innhente komplett informasjon fra meglerforetaket, selger eller utleier.






















