Bildegalleri

Velkommen til et helt nytt og moderne enderekkehus i familievennlige omgivelser ved foten av marka.
Moderne hjem for den aktive familien - trygg og solrik beliggenhet nær marka og idrettsanlegg. Garasje og flere boder.
Nøkkelinfo
- Boligtype
- Rekkehus
- Eieform
- Eier (Selveier)
- Soverom
- 3
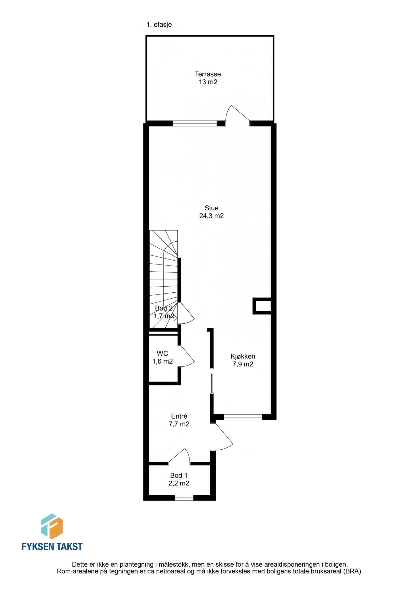
- Internt bruksareal
- 96 m² (BRA-i)
- Bruksareal
- 101 m²
- Eksternt bruksareal
- 5 m² (BRA-e)
- Balkong/Terrasse
- 13 m² (TBA)
- Byggeår
- 2024
- Energimerking
- B - Mørkegrønn
- Rom
- 4
- Tomteareal
- 3 679 m² (eiet)
Fasiliteter
Om boligen
Anna Haarsakers veg 16F er en moderne familiebolig med gjennomtenkte løsninger, hvor stil, komfort og funksjonalitet møtes i skjønn forening. Rekkehuset går over to plan og holder en gjennomgående strøken standard, med moderne materialvalg og smarte løsninger. Blant annet er det installert lysstyring med programmeringsmuligheter og sentralbrytere for lys av/på. I tillegg er det vannbåren gulvvarme og balansert ventilasjon.
Bosett deg ved foten av marka, i et svært rolig og familievennlig boligområde mellom Steinan og Utleira. Boligområdet er nytt og har fellesareal i parkmessig utførelse med lekeapparater, ballbaner og turløypene innover Estenstadmarka som nærmeste nabo.
Egen p-plass i oppvarmet garasjeanlegg med elbillader. Det er mulighet for kjøp av ekstra garasjeplass til rabattert pris.
Salgsoppgaven beskriver vesentlig og lovpålagt informasjon om eiendommen
Se komplett salgsoppgaveNyttige lenker
Nærområdet
Proaktiv Eiendomsmegling Trondheim Øst
Annonseinformasjon
| FINN-kode | 413440437 |
|---|---|
| Sist endret | 31. jan. 2026 10:09 |
| Referanse | 52250120 |
Annonsene kan være mangelfulle i forhold til lovpålagt opplysningsplikt. Før bindende avtale inngås oppfordres interessenter til å innhente komplett informasjon fra meglerforetaket, selger eller utleier.














































