Bildegalleri

EIE eiendomsmegling ved Yasin Unal har gleden av å presentere Kolstadflata 37E! Foto: Aleksander Jacobsen.
Solgt
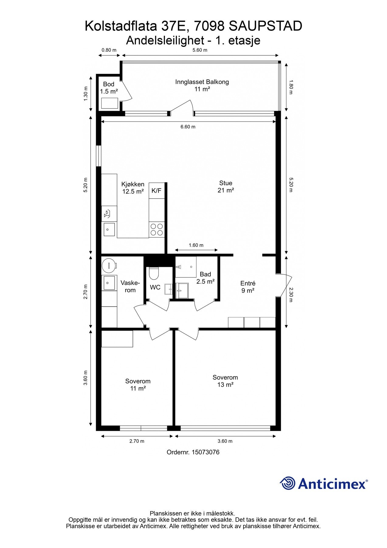
Romslig og innbydende 3-roms leilighet i 1.etg med innglasset balkong. Elbil mulighet - kort bussreise til sentrum.
Prisantydning2 590 000 kr
Nøkkelinfo
- Boligtype
- Leilighet
- Eieform
- Andel
- Soverom
- 2
- Internt bruksareal
- 79 m² (BRA-i)
- Bruksareal
- 111 m²
- Eksternt bruksareal
- 22 m² (BRA-e)
- Innglasset balkong
- 10 m² (BRA-b)
- Etasje
- 1
- Byggeår
- 1971
- Energimerking
- E - Rød
- Rom
- 3
- Tomt
- Eiet
Fasiliteter
Barnevennlig
Balkong/Terrasse
Kabel-TV
Offentlig vann/kloakk
Turterreng
Aircondition
Bredbåndstilknytning
Rolig
Lademulighet
Balansert ventilasjon
Om boligen
EIE eiendomsmegling ved Yasin Unal har gleden av å presentere Kolstadflata 37E - En tiltalende og romslig 3-roms leilighet med innglasset balkong. Rolig beliggenhet i et veldrevet borettslag på Kolstad.
Boligen ligger i 1. etasje med enkel adkomst, og passer perfekt for både familier, førstegangskjøpere og dem som ønsker en lettstelt og praktisk bolig i rolige omgivelser. Fra stuen er det utgang til en solrik, innglasset balkong med store vinduer som kan åpnes - en lun og fleksibel uteplass som kan benyttes hele året.
Merk deg dette:
- Mulighet for 3 soverom.
- Fint, velutstyrt kjøkken med god skapplass.
- Kabel-tv/internett inkl. i felleskostander.
- Eget vaskerom og toalettrom.
- IN-ordning for nedbetaling av fellesgjeld
- Innglasset balkong med gode solforhold - store vinduer som kan åpnes.
- Nært barnehage, barneskole og ungdomsskole.
- God parkeringskapasitet i borettslaget - mulighet for EL-bil lading.
- Kort avstand til buss og dagligvarebutikk.
Velkommen til visning!
Boligen ligger i 1. etasje med enkel adkomst, og passer perfekt for både familier, førstegangskjøpere og dem som ønsker en lettstelt og praktisk bolig i rolige omgivelser. Fra stuen er det utgang til en solrik, innglasset balkong med store vinduer som kan åpnes - en lun og fleksibel uteplass som kan benyttes hele året.
Merk deg dette:
- Mulighet for 3 soverom.
- Fint, velutstyrt kjøkken med god skapplass.
- Kabel-tv/internett inkl. i felleskostander.
- Eget vaskerom og toalettrom.
- IN-ordning for nedbetaling av fellesgjeld
- Innglasset balkong med gode solforhold - store vinduer som kan åpnes.
- Nært barnehage, barneskole og ungdomsskole.
- God parkeringskapasitet i borettslaget - mulighet for EL-bil lading.
- Kort avstand til buss og dagligvarebutikk.
Velkommen til visning!
NB: Knappen for å vise hele beskrivelsen har kun en visuell effekt.
NB: Knappen for å vise hele beskrivelsen har kun en visuell effekt.
Salgsoppgaven beskriver vesentlig og lovpålagt informasjon om eiendommen
Se komplett salgsoppgaveNyttige lenker
Nærområdet
EIE eiendomsmegling Heimdal
Annonseinformasjon
| FINN-kode | 413346427 |
|---|---|
| Sist endret | 19. des. 2025 15:14 |
| Referanse | 97251060 |
Annonsene kan være mangelfulle i forhold til lovpålagt opplysningsplikt. Før bindende avtale inngås oppfordres interessenter til å innhente komplett informasjon fra meglerforetaket, selger eller utleier.




























