Bildegalleri

Eiendommen har en stor flott hage og garasje under terrassen.
Haramsøy
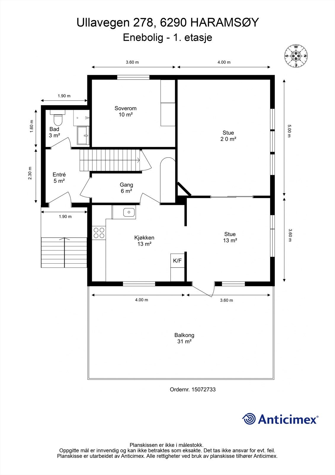
Frittliggende enebolig på utsiktstomt | 5 soverom | Garasje
Prisantydning1 800 000 kr
Nøkkelinfo
- Boligtype
- Enebolig
- Eieform
- Eier (Selveier)
- Soverom
- 5
- Internt bruksareal
- 209 m² (BRA-i)
- Bruksareal
- 229 m²
- Eksternt bruksareal
- 20 m² (BRA-e)
- Balkong/Terrasse
- 31 m² (TBA)
- Etasje
- 3
- Byggeår
- 1958
- Energimerking
- G - Oransje
- Rom
- 8
- Tomteareal
- 1 000 m² (eiet)
Fasiliteter
Balkong/Terrasse
Barnevennlig
Garasje/P-plass
Hage
Ingen gjenboere
Kabel-TV
Peis/Ildsted
Rolig
Sentralt
Utsikt
Bademulighet
Turterreng
Visning
For å delta på visning, ber vi om at du melder deg på. Da sikrer vi at du får nødvendig informasjon og at det er satt av tilstrekkelig med tid. Kontakt megler dersom annet tidspunkt ønskes. Husk å lese salgsoppgaven før visningen, så du stiller forberedt. NB. Visning utgår dersom det ikke er noen påmeldte.
Ønsker du kun å bli holdt orientert, kan du fra eiendommens hjemmeside få varsel om solgtpris, eller kontakte megler.
VisningspåmeldingOm boligen
Eiendomsmegler Christian Nogva Aarseth har gleden av å presentere Ullavegen 278. Boligen går over 3 plan med god takhøyde. God beliggenhet på Haramsøya i et rolig område. Flott utsikt. Boligen inneholder blant annet 5 luftige soverom og 2 stuer. Uinnredet kjeller. Tilbygget garasje. Stor solrik veranda med utg. fra stue og herlig sjøutsikt. Flott opparbeidet hage.
Eiendommen Solstad 2 km vest for Austnes i område med spredt bebyggelse. Eiendommen grenser mot Ullavegen og har flat adkomst fra denne. Kort vei til barnehage, skole og Nordøyhallen. Idrettsanlegg med grasbane og aktivitetsområde i skoleområdet. Flott turterreng på fjellet like ved, med merkede turstier. Småbåthavn på Austnes med gode muligheter for båtliv. Kort vei til dagligvare og cafè. Offentlig transport rett ved huset.
Eiendommen Solstad 2 km vest for Austnes i område med spredt bebyggelse. Eiendommen grenser mot Ullavegen og har flat adkomst fra denne. Kort vei til barnehage, skole og Nordøyhallen. Idrettsanlegg med grasbane og aktivitetsområde i skoleområdet. Flott turterreng på fjellet like ved, med merkede turstier. Småbåthavn på Austnes med gode muligheter for båtliv. Kort vei til dagligvare og cafè. Offentlig transport rett ved huset.
NB: Knappen for å vise hele beskrivelsen har kun en visuell effekt.
NB: Knappen for å vise hele beskrivelsen har kun en visuell effekt.
Salgsoppgaven beskriver vesentlig og lovpålagt informasjon om eiendommen
Se komplett salgsoppgaveNyttige lenker
Nærområdet
Krogsveen Ålesund
Velkommen til en enklere boligreise.
Annonseinformasjon
| FINN-kode | 413329622 |
|---|---|
| Sist endret | 15. des. 2025 13:50 |
| Referanse | KR76.25145 |
Annonsene kan være mangelfulle i forhold til lovpålagt opplysningsplikt. Før bindende avtale inngås oppfordres interessenter til å innhente komplett informasjon fra meglerforetaket, selger eller utleier.




































