Bildegalleri

EIE eiendomsmegling ved Yasin Unal har gleden av å presentere Udbyes gate 7!
Solgt
Øya
En lys og sjarmerende 3-roms leilighet, beliggende i 3. etasje med heisadkomst, i et populært og sentralt område på Øya.
Prisantydning2 150 000 kr
Nøkkelinfo
- Boligtype
- Leilighet
- Eieform
- Andel
- Soverom
- 2
- Internt bruksareal
- 57 m² (BRA-i)
- Bruksareal
- 64 m²
- Eksternt bruksareal
- 7 m² (BRA-e)
- Etasje
- 3
- Byggeår
- 1916
- Energimerking
- F - Rød
- Rom
- 3
- Tomt
- Eiet
Fasiliteter
Barnevennlig
Kabel-TV
Heis
Offentlig vann/kloakk
Parkett
Turterreng
Sentralt
Bredbåndstilknytning
Rolig
Om boligen
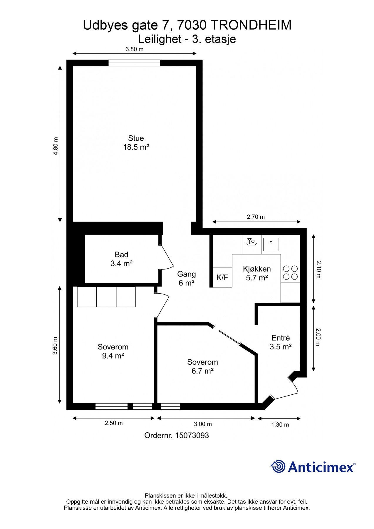
EIE eiendomsmegling ved Yasin Unal har gleden av å presentere Udbyes gate 7 - En lys, gjennomtenkt og sjarmerende 3-roms leilighet i hjertet av Øya.
Leiligheten ligger i 3. etasje i en velholdt bygård med heis og gjesteparkering, og byr på en smart planløsning med god utnyttelse av arealet. Her får du store vindusflater som gir rikelig med lys, en behagelig takhøyde og en lun atmosfære. Boligen inneholder entrè, bad, et romslig soverom og et ekstra rom som fungerer ypperlig som kontor eller gjesterom. Åpne kjøkken- og stueløsningen gir god plass til både spisebord og sofagruppe.
Merk dette ved boligen:
- Lys og sjarmerende 3-roms leilighet i 3. etasje uten innsyn
- Gjennomgående god planløsning og stilrene farger
- Heis i bygget, og tilgang til gjesteparkering
- Kontor/gjesterom i tillegg til hovedsoverom
- Sentral beliggenhet på Øya - nær NTNU, St. Olavs, Midtbyen m.m.
- Svært godt kollektivtilbud med bussholdeplass like ved
Velkommen til visning!
Leiligheten ligger i 3. etasje i en velholdt bygård med heis og gjesteparkering, og byr på en smart planløsning med god utnyttelse av arealet. Her får du store vindusflater som gir rikelig med lys, en behagelig takhøyde og en lun atmosfære. Boligen inneholder entrè, bad, et romslig soverom og et ekstra rom som fungerer ypperlig som kontor eller gjesterom. Åpne kjøkken- og stueløsningen gir god plass til både spisebord og sofagruppe.
Merk dette ved boligen:
- Lys og sjarmerende 3-roms leilighet i 3. etasje uten innsyn
- Gjennomgående god planløsning og stilrene farger
- Heis i bygget, og tilgang til gjesteparkering
- Kontor/gjesterom i tillegg til hovedsoverom
- Sentral beliggenhet på Øya - nær NTNU, St. Olavs, Midtbyen m.m.
- Svært godt kollektivtilbud med bussholdeplass like ved
Velkommen til visning!
NB: Knappen for å vise hele beskrivelsen har kun en visuell effekt.
NB: Knappen for å vise hele beskrivelsen har kun en visuell effekt.
Salgsoppgaven beskriver vesentlig og lovpålagt informasjon om eiendommen
Se komplett salgsoppgaveNyttige lenker
Nærområdet
EIE eiendomsmegling Heimdal
Annonseinformasjon
| FINN-kode | 413206687 |
|---|---|
| Sist endret | 10. aug. 2025 10:04 |
| Referanse | 97251076 |
Annonsene kan være mangelfulle i forhold til lovpålagt opplysningsplikt. Før bindende avtale inngås oppfordres interessenter til å innhente komplett informasjon fra meglerforetaket, selger eller utleier.




















