Bildegalleri

PrivatMegleren Infinita ved Jacob Lothe Carvallo har gleden av å presentere Rødtvetveien 71!
Solgt
Rødtvet
Lys og romslig 3-roms med vestvendt innglasset balkong - Bad fra 2023 - Oppgradert kjøkken - Rolig og sentralt!
Prisantydning4 000 000 kr
Nøkkelinfo
- Boligtype
- Leilighet
- Eieform
- Andel
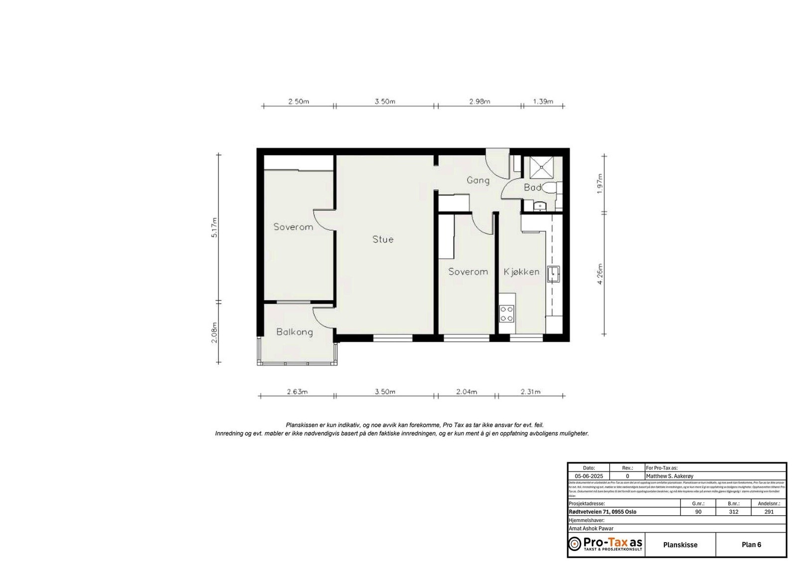
- Soverom
- 2
- Internt bruksareal
- 65 m² (BRA-i)
- Bruksareal
- 76 m²
- Eksternt bruksareal
- 5 m² (BRA-e)
- Innglasset balkong
- 6 m² (BRA-b)
- Etasje
- 6
- Byggeår
- 1962
- Energimerking
- F - Mørkegrønn
- Rom
- 3
- Tomteareal
- 18 030 m² (festet)
- Festeavgift
- 500 000 kr
Fasiliteter
Barnevennlig
Balkong/Terrasse
Kabel-TV
Heis
Offentlig vann/kloakk
Turterreng
Vaktmester-/vektertjeneste
Fellesvaskeri
Sentralt
Bredbåndstilknytning
Moderne
Rolig
Om boligen
Velkommen til Rødtvetveien 71 - en lys og romslig 3-roms leilighet med solrik, innglasset balkong!
Kjøkkenet er oppgradert med ny benkeplate og skap, og har integrerte hvitevarer samt ventilator med plasmafilter. Badet ble pusset opp i 2023 og har fliser, dusjkabinett og vegghengt toalett. Elektrisk anlegg er oppgradert i 2022/2023, og stuen har downlights og utgang til innglasset balkong.
Stuen er romslig og har god plass til både sofagruppe og spisebord, samt direkte utgang til en innglasset balkong på ca. 6 m² - et hyggelig uterom med kveldssol store deler av året.
Leiligheten ligger i et rolig og barnevennlig område med nærhet til butikker, treningssentre, offentlig transport og flere skoler og barnehager.
Velkommen!
Kjøkkenet er oppgradert med ny benkeplate og skap, og har integrerte hvitevarer samt ventilator med plasmafilter. Badet ble pusset opp i 2023 og har fliser, dusjkabinett og vegghengt toalett. Elektrisk anlegg er oppgradert i 2022/2023, og stuen har downlights og utgang til innglasset balkong.
Stuen er romslig og har god plass til både sofagruppe og spisebord, samt direkte utgang til en innglasset balkong på ca. 6 m² - et hyggelig uterom med kveldssol store deler av året.
Leiligheten ligger i et rolig og barnevennlig område med nærhet til butikker, treningssentre, offentlig transport og flere skoler og barnehager.
Velkommen!
NB: Knappen for å vise hele beskrivelsen har kun en visuell effekt.
NB: Knappen for å vise hele beskrivelsen har kun en visuell effekt.
Salgsoppgaven beskriver vesentlig og lovpålagt informasjon om eiendommen
Se komplett salgsoppgaveNyttige lenker
Nærområdet

PrivatMegleren Infinita
Kun det beste på dine vegne
Annonseinformasjon
| FINN-kode | 413062599 |
|---|---|
| Sist endret | 14. aug. 2025 19:39 |
| Referanse | 174251027 |
Annonsene kan være mangelfulle i forhold til lovpålagt opplysningsplikt. Før bindende avtale inngås oppfordres interessenter til å innhente komplett informasjon fra meglerforetaket, selger eller utleier.




































