Bildegalleri

Velkommen til Hamangskogen 82 - Presentert av Mona Zomlot v/EIE Eiendomsmegling avdeling Bærum
HAMANG/SANDVIKA
Romslig utsiktsbolig beliggende i høy 1.etg - Balkong og hageflekk - Garasje - Ingen gjenboere.
Prisantydning5 300 000 kr
Nøkkelinfo
- Boligtype
- Leilighet
- Eieform
- Selveier
- Soverom
- 2
- Internt bruksareal
- 87 m² (BRA-i)
- Bruksareal
- 91 m²
- Eksternt bruksareal
- 4 m² (BRA-e)
- Balkong/Terrasse
- 20 m² (TBA)
- Etasje
- 1
- Byggeår
- 1984
- Energimerking
- F - Rød
- Tomteareal
- 14 300 m² (eiet)
Fasiliteter
Barnevennlig
Balkong/Terrasse
Garasje/P-plass
Kabel-TV
Offentlig vann/kloakk
Ingen gjenboere
Parkett
Turterreng
Utsikt
Vaktmester-/vektertjeneste
Sentralt
Bredbåndstilknytning
Rolig
Lademulighet
Om boligen
Velkommen til Hamangskogen 82 presentert av Mona Zomlot v/EIE eiendomsmegling
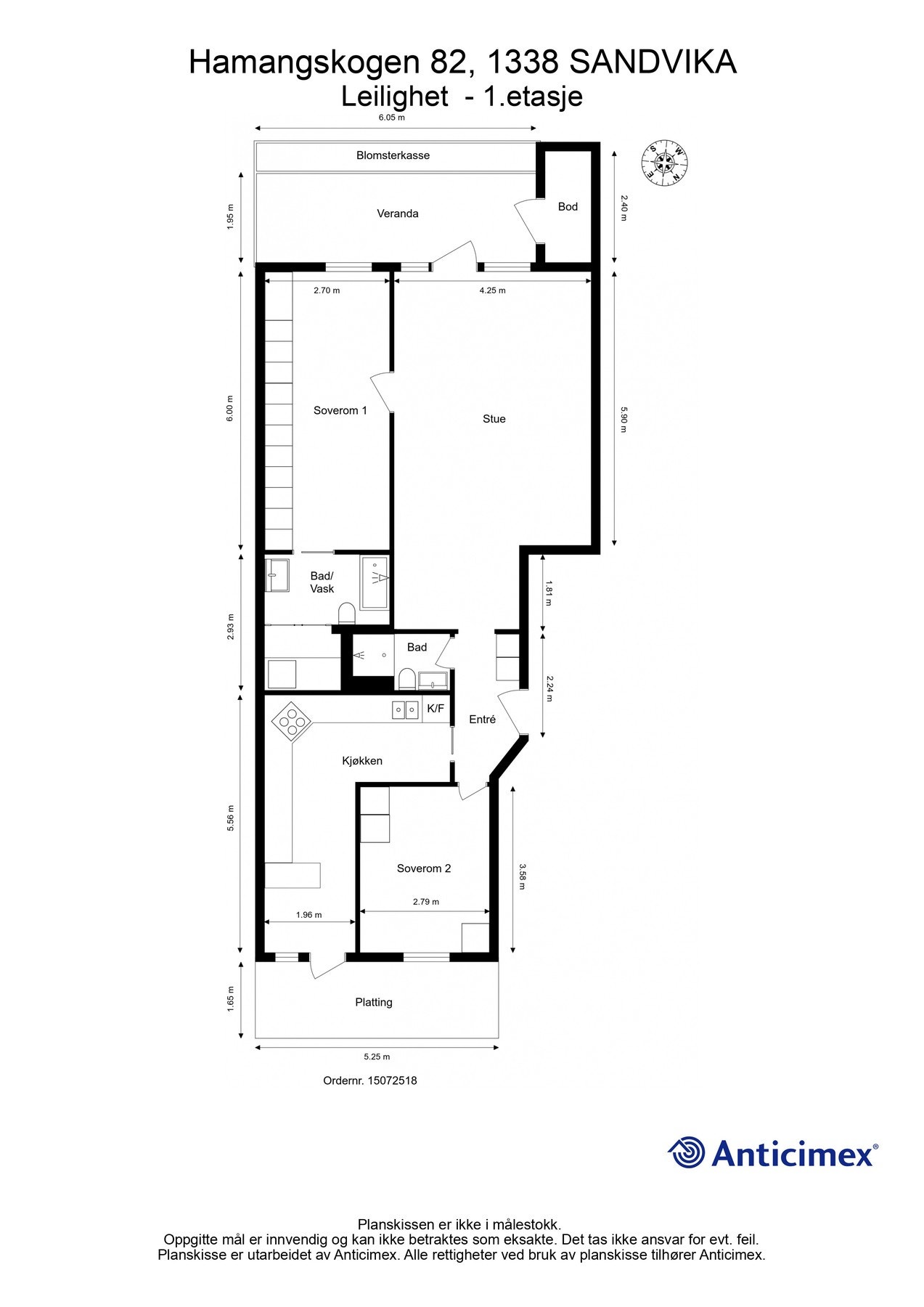
Denne leiligheten uten gjenboere byr på en lys og luftig atmosfære, en effektiv planløsning og gode kvaliteter - perfekt for deg som ønsker et oppussingsprosjekt med stort potensial. Planløsningen er gjennomtenkt og praktisk, med entré, stue, kjøkken, to soverom og to bad. Fra stuen er det utgang til en sørvestvendt balkong med flott utsikt over nærområdet - et solrikt uterom hvor du kan nyte ettermiddagssolen i fred og ro. Kjøkkenet og spisestuen har direkte adkomst til en nordøstvendt, steinlagt og opparbeidet/frodig bakhage - et hyggelig sted for rolige morgenstunder.
I løpet av 2025 vil både vinduer og balkongdører i sameiet bli byttet. Fullstendig betongrehabilitering ble gjennomført i 2024, både på forsiden og baksiden. Terrassen ble da totaloppusset med bl.a. gulvbelegg og plantekasser.
Det medfølger to boder og en garasjeplass i felles, lukket anlegg.
Denne leiligheten uten gjenboere byr på en lys og luftig atmosfære, en effektiv planløsning og gode kvaliteter - perfekt for deg som ønsker et oppussingsprosjekt med stort potensial. Planløsningen er gjennomtenkt og praktisk, med entré, stue, kjøkken, to soverom og to bad. Fra stuen er det utgang til en sørvestvendt balkong med flott utsikt over nærområdet - et solrikt uterom hvor du kan nyte ettermiddagssolen i fred og ro. Kjøkkenet og spisestuen har direkte adkomst til en nordøstvendt, steinlagt og opparbeidet/frodig bakhage - et hyggelig sted for rolige morgenstunder.
I løpet av 2025 vil både vinduer og balkongdører i sameiet bli byttet. Fullstendig betongrehabilitering ble gjennomført i 2024, både på forsiden og baksiden. Terrassen ble da totaloppusset med bl.a. gulvbelegg og plantekasser.
Det medfølger to boder og en garasjeplass i felles, lukket anlegg.
NB: Knappen for å vise hele beskrivelsen har kun en visuell effekt.
NB: Knappen for å vise hele beskrivelsen har kun en visuell effekt.
Salgsoppgaven beskriver vesentlig og lovpålagt informasjon om eiendommen
Se komplett salgsoppgaveNyttige lenker
Nærområdet
EIE eiendomsmegling Bærum
Annonsene kan være mangelfulle i forhold til lovpålagt opplysningsplikt. Før bindende avtale inngås oppfordres interessenter til å innhente komplett informasjon fra meglerforetaket, selger eller utleier.






























