Bildegalleri

Drømmer du om å bo i en grønn oase sentralt i byen i et urbant og rolig boligområde? Da er dette leiligheten for deg. Leiligheten ligger i det populære boligområdet Lilleborg med Akerselva som nærmeste nabo.
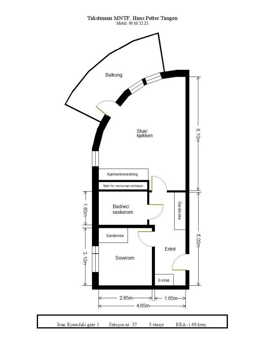
Høyt, usjenert, romslig og frittliggende 2-roms hjørneleilighet m/heis og balkong på 13 kvm. Mulighet for garasjeplass*
Nøkkelinfo
- Boligtype
- Leilighet
- Eieform
- Eier (Selveier)
- Soverom
- 1
- Internt bruksareal
- 48 m² (BRA-i)
- Bruksareal
- 53 m²
- Eksternt bruksareal
- 5 m² (BRA-e)
- Balkong/Terrasse
- 13 m² (TBA)
- Etasje
- 5
- Byggeår
- 2013
- Energimerking
- D - Mørkegrønn
- Rom
- 2
- Tomteareal
- 884 m² (eiet)
Fasiliteter
Om boligen
Lilleborg, en skjermet oase ved Akerselva, tidligere Lilleborg fabrikker, nå et frodig boligområde, rolig og idyllisk, men så urbant. Her finner du elvebadstue, Villa Paradiso, improteater med uteservering, lørdagstorg, og noen av byens beste kardemommeboller rett utenfor døren.
Leiligheten ligger høyt og usjenert plassert på hjørnet i 5. etasje med heis. Fra stuen er det utgang til en stor balkong på 13 kvm, vendt mot et grøntareal med frodige trær, idyll, fuglekvitter og elvesus.
Leiligheten har takhøyde på 2,5 meter, vannbåren gulvvarme, flislagt bad og soverom med garderobe. Stuen har buet vegg, mange vinduer og åpen kjøkkenløsning. Lyse rom, nymalte vegger og nyslipt parkett setter en velholdt ramme rundt hverdagen.
Mulighet for kjøp av garasjeplass for kr 450.000,- *
Salgsoppgaven beskriver vesentlig og lovpålagt informasjon om eiendommen
Se komplett salgsoppgaveNyttige lenker
Nærområdet

PrivatMegleren Dyve & Partnere
Annonseinformasjon
| FINN-kode | 412682613 |
|---|---|
| Sist endret | 28. juli 2025 20:14 |
| Referanse | 159250408 |
Annonsene kan være mangelfulle i forhold til lovpålagt opplysningsplikt. Før bindende avtale inngås oppfordres interessenter til å innhente komplett informasjon fra meglerforetaket, selger eller utleier.

































