Bildegalleri

PrivatMegleren v/ Karoline Olsen har gleden av å presentere Grefsenkollveien 12A!
Lys og romslig 3-roms selveierleilighet med vestvendt terrasse - Parkering i garasje - Heisadkomst - Barnevennlig
Nøkkelinfo
- Boligtype
- Leilighet
- Eieform
- Eier (Selveier)
- Soverom
- 2
- Internt bruksareal
- 80 m² (BRA-i)
- Bruksareal
- 84 m²
- Eksternt bruksareal
- 4 m² (BRA-e)
- Balkong/Terrasse
- 11 m² (TBA)
- Etasje
- 4
- Byggeår
- 1973
- Energimerking
- F - Rød
- Rom
- 3
- Tomteareal
- 37 086 m² (eiet)
- Boligselgerforsikring
- Ja
Fasiliteter
Visning
Om boligen
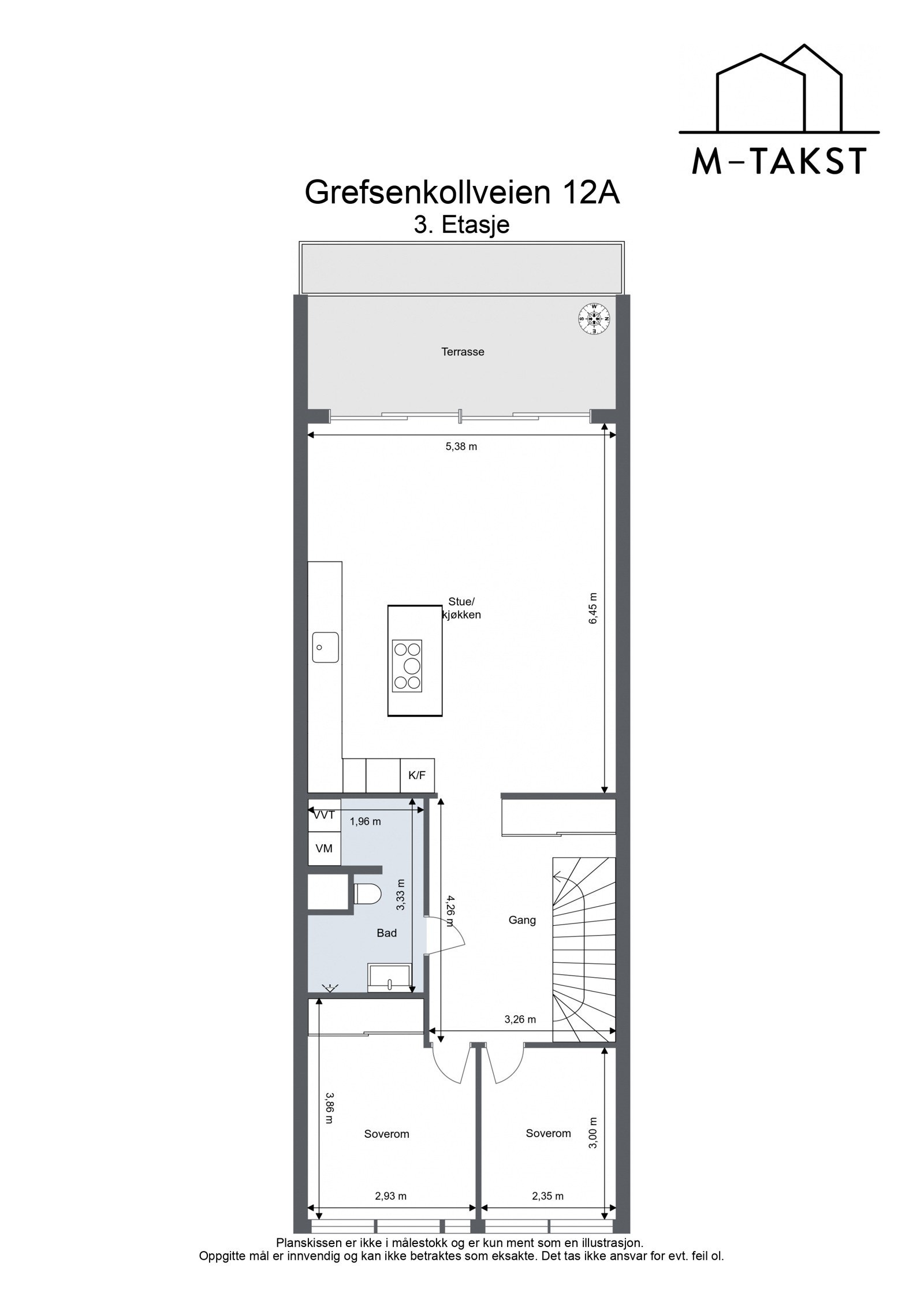
Velkommen til Grefsenkollveien 12A! - Dette er en svært attraktiv og innholdsrik 3-romsleilighet med gjennomgående planløsning. Leiligheten har en innbydende entré med trapp ned til hovedplanet, hvor man finner en romslig og lys stue i åpen løsning mot kjøkkenet. Fra stuen er det utgang til en vestvendt balkong med god plass og flotte solforhold. Videre inneholder boligen to gode soverom og et pent, flislagt bad. Det medfølger parkeringsplass i felles garasjeanlegg. Her bor du i et av Oslos mest populære og naturskjønne områder, med kort vei til både marka og byens mange fasiliteter.
K V A L I T E T E R
- Gulvvarme i flere rom
- KVIK-kjøkken
- Solrik balkong på 10,8kvm
- Soveromsvinduer fra 2020
- Godt utstyrt felles treningsrom
- Felles tennisbane
Salgsoppgaven beskriver vesentlig og lovpålagt informasjon om eiendommen
Se komplett salgsoppgaveNyttige lenker
Nærområdet

PrivatMegleren Aksept
Philip Andreas Bakke
Medhjelper
Annonseinformasjon
| FINN-kode | 412678766 |
|---|---|
| Sist endret | 08. juli 2025 15:59 |
| Referanse | 92250382 |
Annonsene kan være mangelfulle i forhold til lovpålagt opplysningsplikt. Før bindende avtale inngås oppfordres interessenter til å innhente komplett informasjon fra meglerforetaket, selger eller utleier.











































