Bildegalleri

Velkommen til Olav Aukrust vei 8 presentert av Marius Kristoffersen ved Nordvik Bygdøy Allé.
Solgt
Kragskogen/Holmenkollen
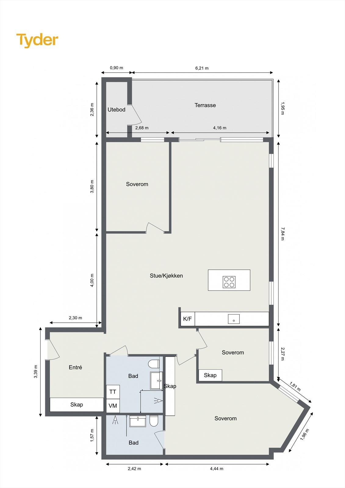
Lekker, gjennomført og moderne 4-roms med solrik terrasse på 12 kvm - Nydelig utsikt - Garasje - 2 bad - Barnevennlig
Prisantydning9 400 000 kr
Nøkkelinfo
- Boligtype
- Leilighet
- Eieform
- Eier (Selveier)
- Soverom
- 3
- Internt bruksareal
- 102 m² (BRA-i)
- Bruksareal
- 104 m²
- Eksternt bruksareal
- 2 m² (BRA-e)
- Balkong/Terrasse
- 12 m² (TBA)
- Etasje
- -1
- Byggeår
- 1980
- Energimerking
- E - Rød
- Rom
- 4
- Tomteareal
- 21 154 m² (eiet)
Fasiliteter
Balkong/Terrasse
Barnevennlig
Bredbåndstilknytning
Garasje/P-plass
Kjæledyr tillatt
Offentlig vann/kloakk
Parkett
Rolig
Sentralt
Utsikt
Turterreng
Om boligen
Velkommen til Olav Aukrust vei 8 - En innbydende endeleilighet med solrik terrasse og garasjeplass. Boligen holder en gjennomgående god standard og fremstår som lys og delikat med tidsriktig fargevalg. Ettertraktet og barnevennlig beliggenhet i populære Kragskogen, her får du fantastiske utsikt, gode solforhold og fine turområder.
Høydepunkter:
- Utsikt og gode solforhold
- 3 soverom og 2 delikate bad
- Sydvendt terrasse på 12 kvm
- Garasjeplass med el-billader
- Varmtvann inkl. i felleskostnadene
- Lys og romslig stue med plass til flere soner
- Store vindusflater gir mye lys og en god atmosfære
- Lekkert kjøkken fra Kvik med Corian benkeplate, nye hvitevarer i 2024
- Fått hjelp av fargerådgiver Ingrid Simensen til å fargesette leiligheten, overflater malt i 2023
Høydepunkter:
- Utsikt og gode solforhold
- 3 soverom og 2 delikate bad
- Sydvendt terrasse på 12 kvm
- Garasjeplass med el-billader
- Varmtvann inkl. i felleskostnadene
- Lys og romslig stue med plass til flere soner
- Store vindusflater gir mye lys og en god atmosfære
- Lekkert kjøkken fra Kvik med Corian benkeplate, nye hvitevarer i 2024
- Fått hjelp av fargerådgiver Ingrid Simensen til å fargesette leiligheten, overflater malt i 2023
NB: Knappen for å vise hele beskrivelsen har kun en visuell effekt.
NB: Knappen for å vise hele beskrivelsen har kun en visuell effekt.
Salgsoppgaven beskriver vesentlig og lovpålagt informasjon om eiendommen
Se komplett salgsoppgaveNyttige lenker
Nærområdet
Nordvik Bygdøy Allé
Annonseinformasjon
| FINN-kode | 412586443 |
|---|---|
| Sist endret | 04. okt. 2025 07:40 |
| Referanse | 13-0309/25 |
Annonsene kan være mangelfulle i forhold til lovpålagt opplysningsplikt. Før bindende avtale inngås oppfordres interessenter til å innhente komplett informasjon fra meglerforetaket, selger eller utleier.












































