Bildegalleri

Mosserød
Familiebolig med plass til alle - og litt til! Et barnevennlig område - Stor, skjermet og solrik hage - 2 bad - Vaskerom
Prisantydning6 290 000 kr
Nøkkelinfo
- Boligtype
- Enebolig
- Eieform
- Eier (Selveier)
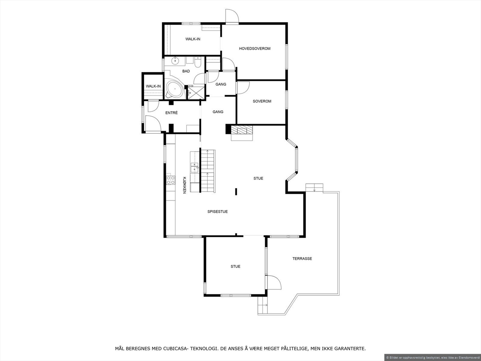
- Soverom
- 5
- Internt bruksareal
- 275 m² (BRA-i)
- Bruksareal
- 323 m²
- Eksternt bruksareal
- 48 m² (BRA-e)
- Balkong/Terrasse
- 49 m² (TBA)
- Etasje
- 3
- Byggeår
- 1983
- Energimerking
- F - Rød
- Rom
- 4
- Tomteareal
- 621 m² (eiet)
Fasiliteter
Takterrasse
Balkong/Terrasse
Barnevennlig
Bredbåndstilknytning
Garasje/P-plass
Hage
Parkett
Peis/Ildsted
Rolig
Utsikt
Turterreng
Visning
For å delta på visning, ber vi om at du melder deg på. Da sikrer vi at du får nødvendig informasjon og at det er satt av tilstrekkelig med tid. Kontakt megler dersom annet tidspunkt ønskes. Husk å lese salgsoppgaven før visningen, så du stiller forberedt. NB. Visning utgår dersom det ikke er noen påmeldte.
Ønsker du kun å bli holdt orientert, kan du fra eiendommens hjemmeside få varsel om solgtpris, eller kontakte megler.
VisningspåmeldingOm boligen
Velkommen til en innholdsrik og innbydende familiebolig på barnevennlige Mosserød!
Her bor du fredelig til i en blindvei men samtidig sentralt og med nærhet til det meste. Eneboligen strekker seg over to plan med tillegg av stor kjeller med egen inngang perfekt for tenåringer, utleie eller hobbyprosjekter. Huset byr på hele 5 soverom, 2 bad, romslige oppholdsrom og fleksible planløsninger som passer familier i alle livsfaser. Solrike uteplasser inkluderer både terrasse og takterrasse vendt mot sørvest ideelt for sene sommermåltider i kveldssolen. Hagen er trygg og lekevennlig for de små, og den pent opparbeidede tomten gir trivsel hele året. I tillegg får du stor garasje, boder og romslig gårdsplass med plass til flere biler.
Et komplett hjem klart for nye minner!
Her bor du fredelig til i en blindvei men samtidig sentralt og med nærhet til det meste. Eneboligen strekker seg over to plan med tillegg av stor kjeller med egen inngang perfekt for tenåringer, utleie eller hobbyprosjekter. Huset byr på hele 5 soverom, 2 bad, romslige oppholdsrom og fleksible planløsninger som passer familier i alle livsfaser. Solrike uteplasser inkluderer både terrasse og takterrasse vendt mot sørvest ideelt for sene sommermåltider i kveldssolen. Hagen er trygg og lekevennlig for de små, og den pent opparbeidede tomten gir trivsel hele året. I tillegg får du stor garasje, boder og romslig gårdsplass med plass til flere biler.
Et komplett hjem klart for nye minner!
NB: Knappen for å vise hele beskrivelsen har kun en visuell effekt.
NB: Knappen for å vise hele beskrivelsen har kun en visuell effekt.
Salgsoppgaven beskriver vesentlig og lovpålagt informasjon om eiendommen
Se komplett salgsoppgaveNyttige lenker
Nærområdet
Krogsveen Sandefjord
Verdien av en god megler.
Annonseinformasjon
| FINN-kode | 412505079 |
|---|---|
| Sist endret | 02. jan. 2026 18:35 |
| Referanse | KR22.25217 |
Annonsene kan være mangelfulle i forhold til lovpålagt opplysningsplikt. Før bindende avtale inngås oppfordres interessenter til å innhente komplett informasjon fra meglerforetaket, selger eller utleier.































































