Bildegalleri

Velkommen til Vandugveien 2! Stor og ærverdig villa med renoveringsbehov
Stor og unik villa rett ved sentrum av Mysen! Skjermet beliggenhet | 4 soverom | Renoveringsobjekt |
Nøkkelinfo
- Boligtype
- Enebolig
- Eieform
- Eier (Selveier)
- Soverom
- 4
- Internt bruksareal
- 234 m² (BRA-i)
- Bruksareal
- 290 m²
- Eksternt bruksareal
- 56 m² (BRA-e)
- Balkong/Terrasse
- 25 m² (TBA)
- Byggeår
- 1966
- Tomteareal
- 1 817 m² (eiet)
- Boligselgerforsikring
- Ja
Fasiliteter
Visning
Om boligen
Velkommen til Vandugveien 2!
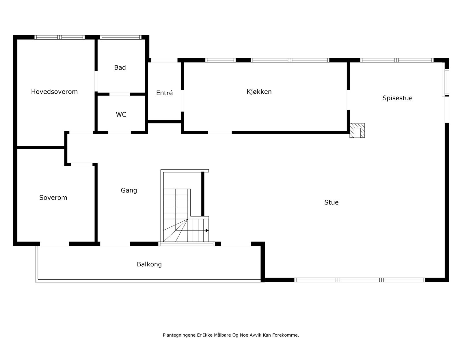
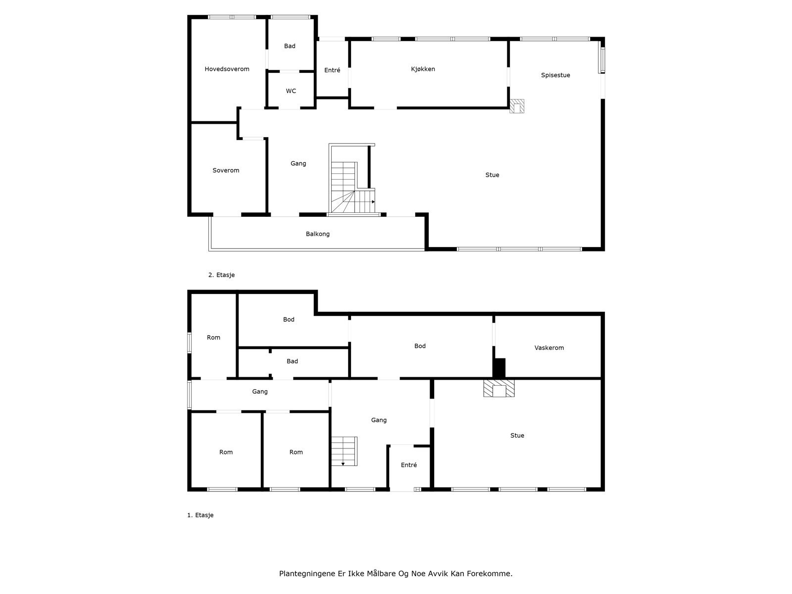
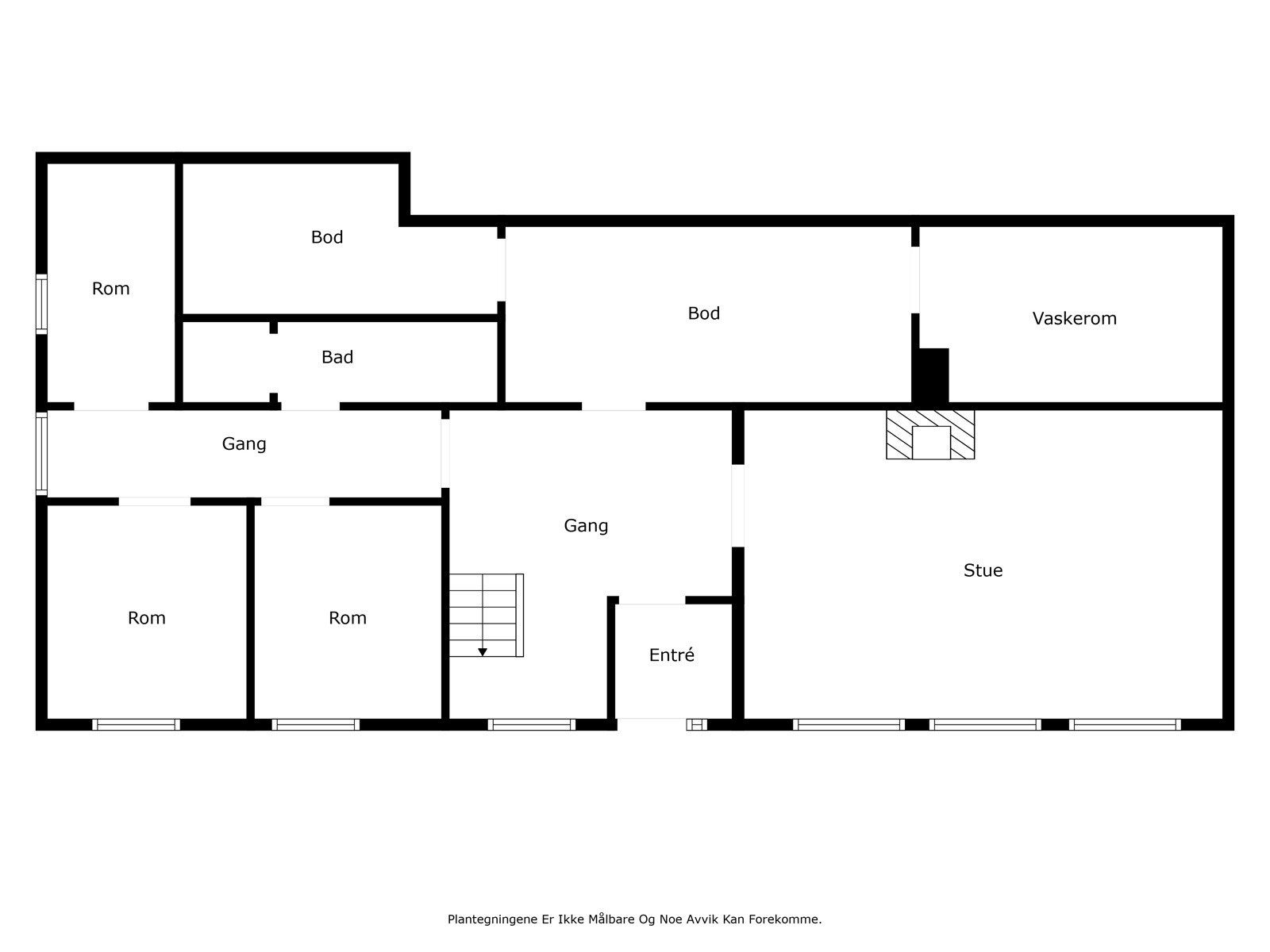
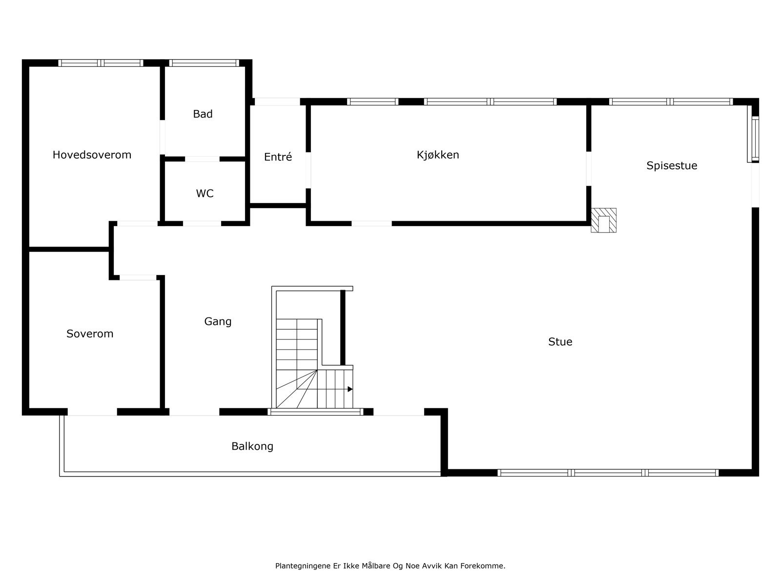
En ærverdig villa rett ved Mysen sentrum!. Boligen har en praktisk planløsning med 4 soverom, 2 bad og stor og åpen stue/spisestueløsning.
Boligen har en stor tomt med skjermet hage, solrik terrasse, garasje og med en skjermet beliggenhet rett ved sentrum. Tomten gir mange muligheter for forskjellig utforming og med en meget sentrumsnær beliggenhet i gangavstand til alle fasiliteter. Boligen er et oppussingobjekt med en meget god planløsning og godt grunnlag.
Denne bør oppleves!
Salgsoppgaven beskriver vesentlig og lovpålagt informasjon om eiendommen
Se komplett salgsoppgaveNyttige lenker
Nærområdet
PrivatMegleren Indre Østfold
Annonseinformasjon
| FINN-kode | 412502904 |
|---|---|
| Sist endret | 08. jan. 2026 03:10 |
| Referanse | 292240099 |
Annonsene kan være mangelfulle i forhold til lovpålagt opplysningsplikt. Før bindende avtale inngås oppfordres interessenter til å innhente komplett informasjon fra meglerforetaket, selger eller utleier.
















































