Bildegalleri

Velkommen til Marmorveien 3, presentert av OBOS eiendomsmeglere v/ Nicholai Nyborg Kristiansen.
Solgt
Lekker 2-roms leilighet med helt nytt bad fra 2025 | Kjøkken fra 2020 | Sydvendt balkong | Ingen gjenboere
Prisantydning3 900 000 kr
Nøkkelinfo
- Boligtype
- Leilighet
- Eieform
- Andel
- Soverom
- 1
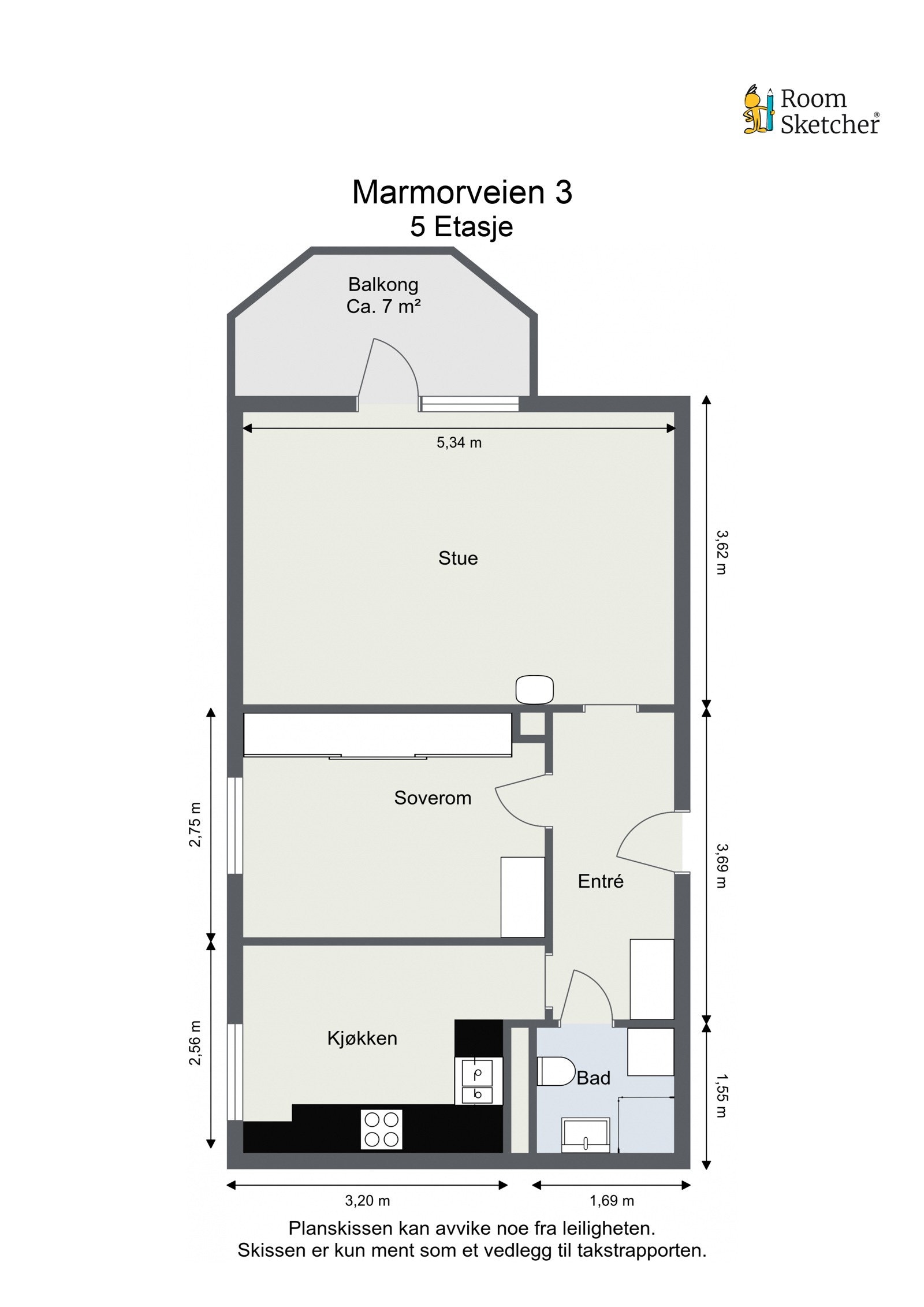
- Internt bruksareal
- 49 m² (BRA-i)
- Bruksareal
- 52 m²
- Eksternt bruksareal
- 3 m² (BRA-e)
- Balkong/Terrasse
- 7 m² (TBA)
- Etasje
- 5
- Byggeår
- 1954
- Energimerking
- E - Rød
- Rom
- 2
- Tomt
- Eiet
Fasiliteter
Balkong/Terrasse
Peis/Ildsted
Ingen gjenboere
Rolig
Kabel-TV
Sentralt
Turterreng
Utsikt
Fellesvaskeri
Bredbåndstilknytning
Om boligen
Velkommen til Marmorveien 3! En lekker to-roms leilighet beliggende i 5.etasje. Sydvendt balkong med hyggelig vidt utsyn mot skogholt. Gode solforhold gjør at sommerdagene kan nytes til det fulle.
Verdt å nevne:
- Nytt og lekkert bad i regi av borettslaget fra 2025.
- IKEA kjøkken fra 2020.
- Godt med lagringsplass i leilighetens 2 boder.
- Veldrevet borettslag.
- Rask avklaring av forkjøpsretten.
- Ingen gjenboere.
- Kort vei til Lambertseter senter, marka og T-bane.
NB: Knappen for å vise hele beskrivelsen har kun en visuell effekt.
NB: Knappen for å vise hele beskrivelsen har kun en visuell effekt.
Salgsoppgaven beskriver vesentlig og lovpålagt informasjon om eiendommen
Se komplett salgsoppgaveNærområdet
OBOS Eiendomsmeglere – Lambertseter/Manglerud
Annonseinformasjon
| FINN-kode | 412501560 |
|---|---|
| Sist endret | 26. juni 2025 10:54 |
| Referanse | 704250104 |
Annonsene kan være mangelfulle i forhold til lovpålagt opplysningsplikt. Før bindende avtale inngås oppfordres interessenter til å innhente komplett informasjon fra meglerforetaket, selger eller utleier.





























