Bildegalleri

Velkommen til Sørkedalsveien 1A, presentert av Malin Natvig og Louise Laheld//Eiendomsmegler 1. Foto: Christian v/Studio Oslo
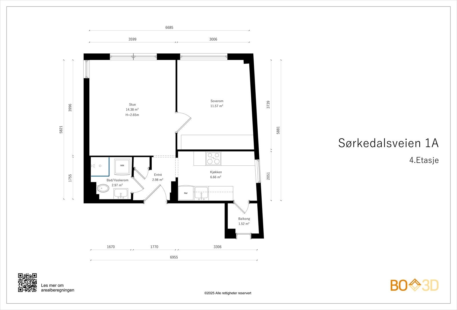
Lys 2-roms selveier m/sørøstvendt balkong | Kjøkken 2017 | Bad 2018 | V.vann & fyring inkl. | Heis | IN-ordning
Nøkkelinfo
- Boligtype
- Leilighet
- Eieform
- Eier (Selveier)
- Soverom
- 1
- Internt bruksareal
- 40 m² (BRA-i)
- Bruksareal
- 46 m²
- Eksternt bruksareal
- 6 m² (BRA-e)
- Balkong/Terrasse
- 2 m² (TBA)
- Etasje
- 4
- Byggeår
- 1938
- Energimerking
- G - Mørkegrønn
- Rom
- 2
- Tomteareal
- 1 279 m² (eiet)
Fasiliteter
Om boligen
- Heis
- Internett inkl.
- Badet er renovert i 2018 i regi av sameiet, med varmekabler og opplegg for vaskemaskin.
- Leiligheten har fjernvarme
- Kjellerbod 6kvm
- Umiddelbar nærhet til Colosseum, T-bane, trikk, buss, og Bogstadveien
- Nye soilrør i 2018
- Tak 2018
Ved nedbetaling av fellesgjeld vil felleskostnadene omtrent bli nedjustert til ca. : 3.513
Salgsoppgaven beskriver vesentlig og lovpålagt informasjon om eiendommen
Se komplett salgsoppgaveNyttige lenker
Nærområdet
EiendomsMegler 1 Økern
Prisstatistikk
Sørkedalsveien 1A
på annonsen
prisantydning per kvadratmeter
Prisfordeling
Pris per m² ligger 16 488 kr over snittet for leiligheter i Vinderen.
Grafen viser antall leiligheter solgt i Vinderen siste året fordelt på pris per m² - totalt 170 leiligheter
Antall boliger
Kvadratmeterpris tilsvarer prisantydning pluss fellesgjeld per kvadratmeter (p-rom eller BRA-i). Prisene i grafen er avrundet til nærmeste 1000 kr.
Annonseinformasjon
| FINN-kode | 412477295 |
|---|---|
| Sist endret | 09. nov. 2025 12:44 |
| Referanse | 3222250116 |
Annonsene kan være mangelfulle i forhold til lovpålagt opplysningsplikt. Før bindende avtale inngås oppfordres interessenter til å innhente komplett informasjon fra meglerforetaket, selger eller utleier.








































