Bildegalleri

Velkommen til Maurstien 7 v/Erik Løvås i PrivatMegleren
Solgt
Korsvoll
Idyllisk kjedet enebolig med innholdsrik planløsning og flott, skjermet hage -Kort gangavstand til skole og bhg.
Prisantydning17 500 000 kr
Nøkkelinfo
- Boligtype
- Enebolig
- Eieform
- Eier (Selveier)
- Soverom
- 3
- Internt bruksareal
- 188 m² (BRA-i)
- Bruksareal
- 218 m²
- Eksternt bruksareal
- 13 m² (BRA-e)
- Innglasset balkong
- 17 m² (BRA-b)
- Byggeår
- 1948
- Energimerking
- G - Oransje
- Tomteareal
- 461 m² (eiet)
Fasiliteter
Barnevennlig
Balkong/Terrasse
Garasje/P-plass
Offentlig vann/kloakk
Parkett
Peis/Ildsted
Turterreng
Sentralt
Bredbåndstilknytning
Moderne
Rolig
Om boligen
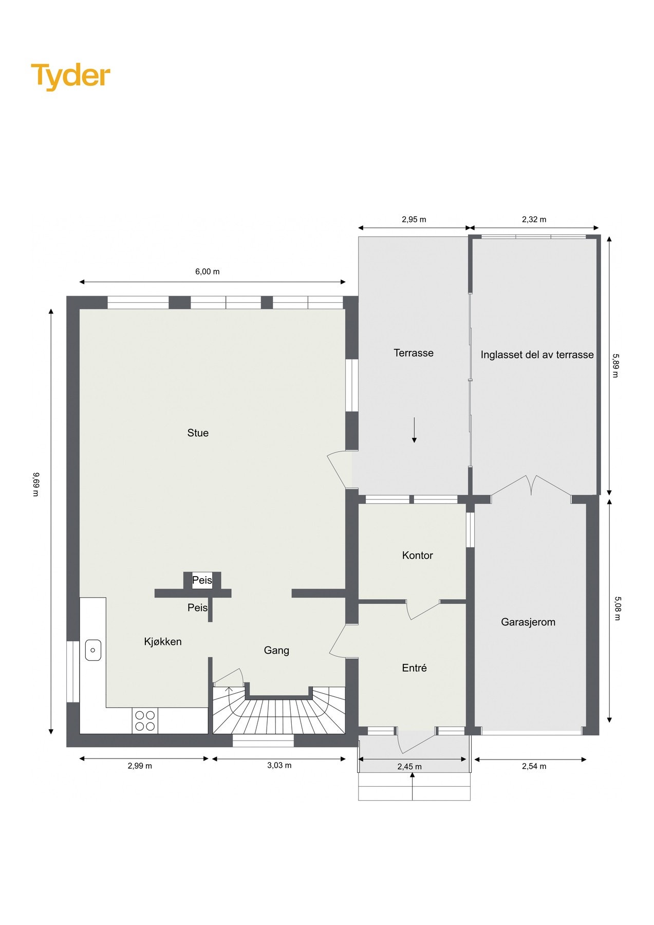
Maurstien 7 - er en meget hyggelig og funksjonell enebolig i kjede, med en praktisk og fleksibel planløsning over tre etasjer, med gode oppholdsrom og mange bruksmuligheter.
I første etasje finner du en generøs entré med god garderobe, kontor, trappehall, kjøkken med peis og innredning fra 2019 i delvis åpen løsning mot stue med utg. til hage med utestue. 2. et etasje består av 2 soverom (opprinnelig 3) og bad fra 2019. Kjelleren inneholder kjellerstue, soverom med omkledningsrom, bad, vaskerom, bod og vinrom. Det foreligger godkjent byggetillatelse fra 1998 for tilbygg og endringer, men ferdigattest er ikke innhentet.
Dette er en bolig som passer perfekt for deg som ønsker en kombinasjon av rolig beliggenhet, nærhet til natur og enkel tilgang til byens fasiliteter. Med gode planløsninger, praktiske løsninger og et hyggelig nabolag, er dette et hjem det er lett å trives i.
Garasje kan omgjøres til bolig.
Flat barnevennlig hage. Kort vei til Korsvoll skole, ny barnehage og T-bane
I første etasje finner du en generøs entré med god garderobe, kontor, trappehall, kjøkken med peis og innredning fra 2019 i delvis åpen løsning mot stue med utg. til hage med utestue. 2. et etasje består av 2 soverom (opprinnelig 3) og bad fra 2019. Kjelleren inneholder kjellerstue, soverom med omkledningsrom, bad, vaskerom, bod og vinrom. Det foreligger godkjent byggetillatelse fra 1998 for tilbygg og endringer, men ferdigattest er ikke innhentet.
Dette er en bolig som passer perfekt for deg som ønsker en kombinasjon av rolig beliggenhet, nærhet til natur og enkel tilgang til byens fasiliteter. Med gode planløsninger, praktiske løsninger og et hyggelig nabolag, er dette et hjem det er lett å trives i.
Garasje kan omgjøres til bolig.
Flat barnevennlig hage. Kort vei til Korsvoll skole, ny barnehage og T-bane
NB: Knappen for å vise hele beskrivelsen har kun en visuell effekt.
NB: Knappen for å vise hele beskrivelsen har kun en visuell effekt.
Salgsoppgaven beskriver vesentlig og lovpålagt informasjon om eiendommen
Se komplett salgsoppgaveNyttige lenker
Nærområdet
PrivatMegleren Bærum
Kun det beste på dine vegne
Annonsene kan være mangelfulle i forhold til lovpålagt opplysningsplikt. Før bindende avtale inngås oppfordres interessenter til å innhente komplett informasjon fra meglerforetaket, selger eller utleier.























































