Bildegalleri

Nordvik Tønsberg v/Jørgen Nyhus har gleden av å ønske velkommen til Munkoddveien 2! Foto: Fotograf Magik.
Vestskogen / Munkodden
Innholdsrik bolig med BRA 135 kvm | 3 soverom, stor stue og innredet loft | flott sjøutsikt og supre solforhold
Prisantydning3 490 000 kr
Nøkkelinfo
- Boligtype
- Tomannsbolig
- Eieform
- Eier (Selveier)
- Soverom
- 3
- Internt bruksareal
- 135 m² (BRA-i)
- Bruksareal
- 139 m²
- Eksternt bruksareal
- 4 m² (BRA-e)
- Balkong/Terrasse
- 19 m² (TBA)
- Etasje
- 2
- Byggeår
- 1923
- Energimerking
- G - Oransje
- Rom
- 5
- Tomteareal
- 831 m² (eiet)
Fasiliteter
Balkong/Terrasse
Barnevennlig
Garasje/P-plass
Hage
Kjæledyr tillatt
Offentlig vann/kloakk
Parkett
Peis/Ildsted
Rolig
Utsikt
Turterreng
Visning
Alle våre visninger har påmelding. På denne måten sikrer vi at megler har god oversikt og tid til å imøtekomme alle interessenter. Meld deg på visning ved å trykke på lenken visningspåmelding.
VisningspåmeldingOm boligen
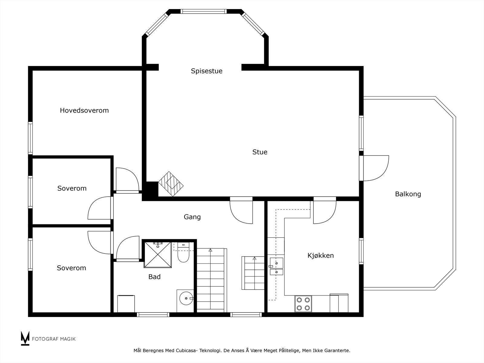
Innholdsrik og romslig halvpart av horisontaldelt tomannsbolig med flott sjøutsikt og supre solforhold! Boligen har egen inngang, strekker seg over to plan og byr på 135 kvm BRA med god planløsning og tre soverom. Stor stue, separat kjøkken og bad i 2. etasje, samt innredet loft med ekstra stue-/kontorplass (ikke godkjent som oppholdsrom). Her bor du luftig og komfortabelt med kort vei til Færders vakre skjærgård, badeplasser og turstier. Praktisk biloppstillingsplass med plass til to biler. En bolig med mange muligheter perfekt for både familier og par!
Kort fortalt:
BRA 135 kvm over to plan
3 soverom + innredet loft
Stor stue og separat kjøkken
Flott sjøutsikt og svært gode solforhold
Biloppstillingsplass for to biler
Naturskjønne omgivelser nær sjø og turterreng
Kort fortalt:
BRA 135 kvm over to plan
3 soverom + innredet loft
Stor stue og separat kjøkken
Flott sjøutsikt og svært gode solforhold
Biloppstillingsplass for to biler
Naturskjønne omgivelser nær sjø og turterreng
NB: Knappen for å vise hele beskrivelsen har kun en visuell effekt.
NB: Knappen for å vise hele beskrivelsen har kun en visuell effekt.
Salgsoppgaven beskriver vesentlig og lovpålagt informasjon om eiendommen
Se komplett salgsoppgaveNyttige lenker
Nærområdet
Nordvik Tønsberg
Annonseinformasjon
| FINN-kode | 412460451 |
|---|---|
| Sist endret | 01. des. 2025 13:52 |
| Referanse | 25-0097/25 |
Annonsene kan være mangelfulle i forhold til lovpålagt opplysningsplikt. Før bindende avtale inngås oppfordres interessenter til å innhente komplett informasjon fra meglerforetaket, selger eller utleier.

















































