Bildegalleri

Velkommen til Lørenveien 64B - Presentert av Joakim Hjelm ved Nordvik Bolig!
Solgt
Løren
Råflott og romslig 4-roms hjørneleilighet med moderne standard - Balkong - Garasje - Bad + wc - Heis - Nydelig bakgård
Prisantydning8 700 000 kr
Nøkkelinfo
- Boligtype
- Leilighet
- Eieform
- Andel
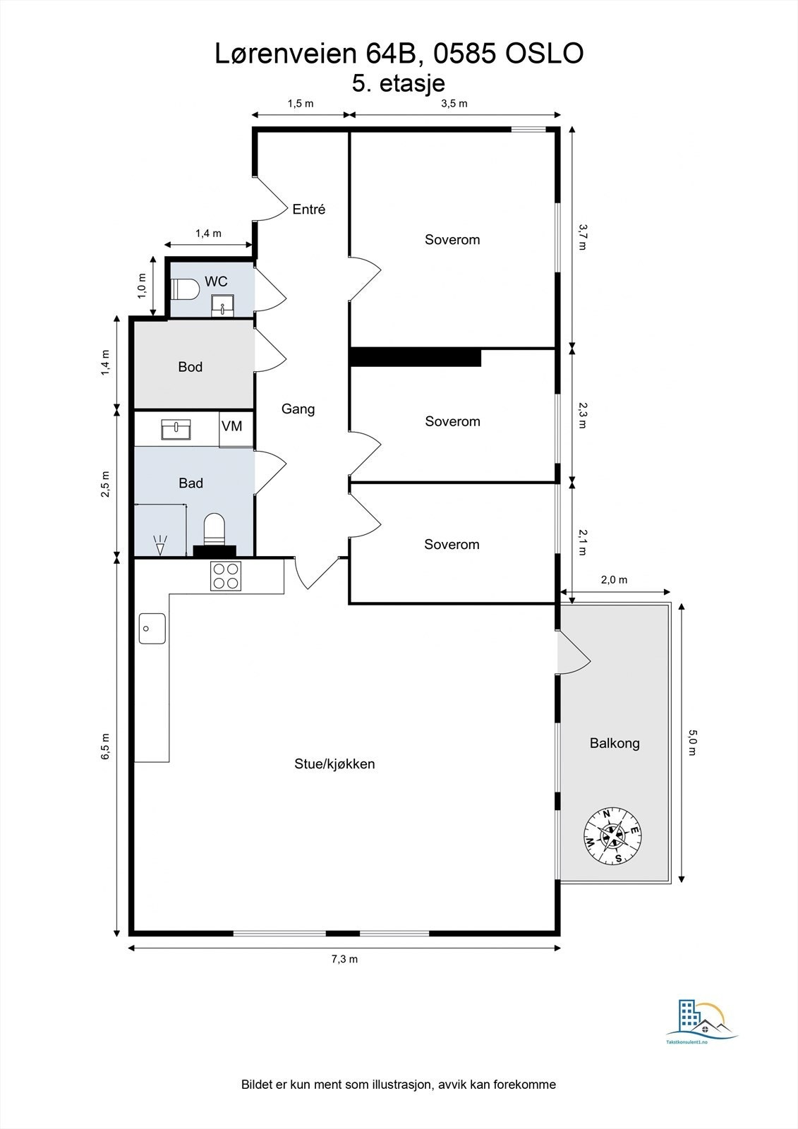
- Soverom
- 3
- Internt bruksareal
- 98 m² (BRA-i)
- Bruksareal
- 103 m²
- Eksternt bruksareal
- 5 m² (BRA-e)
- Balkong/Terrasse
- 10 m² (TBA)
- Etasje
- 5
- Byggeår
- 2018
- Energimerking
- C - Mørkegrønn
- Rom
- 4
- Tomteareal
- 1 042 m² (eiet)
Fasiliteter
Balkong/Terrasse
Barnevennlig
Bredbåndstilknytning
Garasje/P-plass
Heis
Kjæledyr tillatt
Offentlig vann/kloakk
Parkett
Rolig
Sentralt
Utsikt
Vaktmester-/vektertjeneste
Turterreng
Balansert ventilasjon
Om boligen
Nordvik Løren har gleden av å presentere Lørenveien 64B En familievennlig og moderne 4-roms med attraktiv beliggenhet!
Leiligheten holder en gjennomgående god standard fra byggeår, og kjøkkenet er smakfullt oppgradert i nyere tid. Planløsningen er både romslig og funksjonell, med blant annet tre soverom, bad, separat toalett og en åpen stue-/kjøkkenløsning. Fra stuen er det utgang til en balkong på 10 kvm med fin utsikt.
Sentralt på Løren, med kort vei til T-bane (Løren og Økern), bussforbindelser og et rikt utvalg av servicetilbud, kafeer og grønne parker.
Fremtredende kvaliteter:
Leiligheten holder en gjennomgående god standard fra byggeår, og kjøkkenet er smakfullt oppgradert i nyere tid. Planløsningen er både romslig og funksjonell, med blant annet tre soverom, bad, separat toalett og en åpen stue-/kjøkkenløsning. Fra stuen er det utgang til en balkong på 10 kvm med fin utsikt.
Sentralt på Løren, med kort vei til T-bane (Løren og Økern), bussforbindelser og et rikt utvalg av servicetilbud, kafeer og grønne parker.
Fremtredende kvaliteter:
- Balkong med utsikt
- Usjenert og lite innsyn
- Hjørneleilighet med mye lys
- Garasjeplass
- Stor stue/kjøkken
- Bad + separat wc
- Fantastisk fin og felles bakgård
NB: Knappen for å vise hele beskrivelsen har kun en visuell effekt.
NB: Knappen for å vise hele beskrivelsen har kun en visuell effekt.
Salgsoppgaven beskriver vesentlig og lovpålagt informasjon om eiendommen
Se komplett salgsoppgaveNyttige lenker
Nærområdet
Nordvik Løren
Annonseinformasjon
| FINN-kode | 412452820 |
|---|---|
| Sist endret | 10. sep. 2025 08:34 |
| Referanse | 21-0181/25 |
Annonsene kan være mangelfulle i forhold til lovpålagt opplysningsplikt. Før bindende avtale inngås oppfordres interessenter til å innhente komplett informasjon fra meglerforetaket, selger eller utleier.











































