Bildegalleri

Eiendomsmegler Norge v/ Johan R. Elieson har gleden av å ønske velkommen til visning av Marikåpeveien 71!
Justneshalvøya
Nyere (2019) enebolig med i hybel i første rekke. Nydelige sol- og utsiktsforhold! Romslig garasje. Barnevennlig område
Prisantydning10 490 000 kr
Nøkkelinfo
- Boligtype
- Enebolig
- Eieform
- Eier (Selveier)
- Soverom
- 4
- Internt bruksareal
- 208 m² (BRA-i)
- Bruksareal
- 208 m²
- Balkong/Terrasse
- 35 m² (TBA)
- Byggeår
- 2019
- Energimerking
- B - Oransje
- Tomteareal
- 372 m² (eiet)
Fasiliteter
Balkong/Terrasse
Barnevennlig
Garasje/P-plass
Hage
Rolig
Sentralt
Utsikt
Turterreng
Lademulighet
Balansert ventilasjon
Om boligen
Eiendomsmegler Norge v/ Johan Elieson har gleden av å ønske deg velkommen til visning av Marikåpeveien 71!
En romslig enebolig over tre etasjer med solrike uteplasser beliggende hyggelig til i et familiært boligområde på Justneshalvøya.
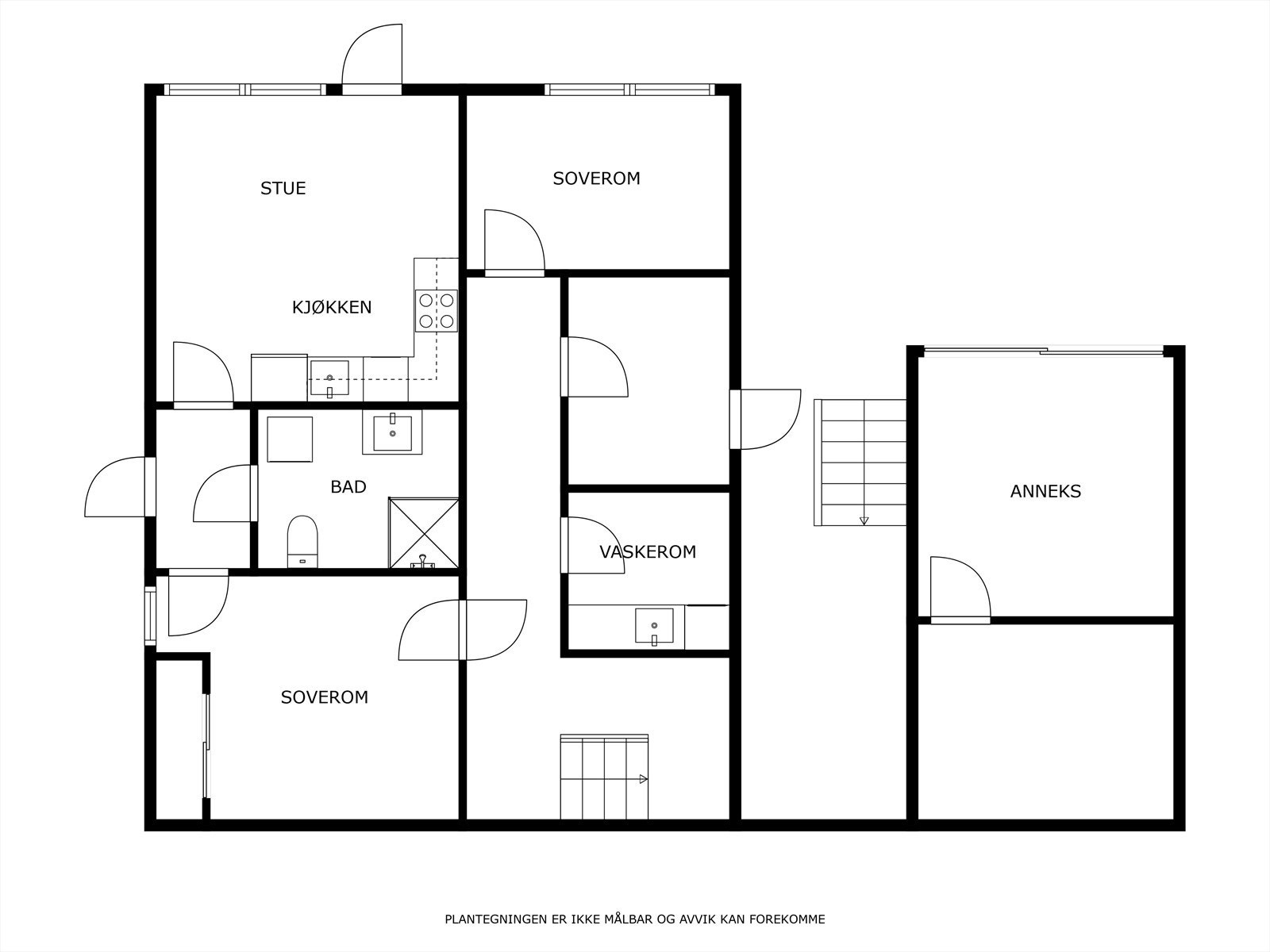
Hoveddelen av boligen inneholder bla. 3 soverom, walk-in garderobe, stor stue/ kjøkken, to baderom samt vaskerom.
Det er utgang til solrike uteplasser samt en fantastisk utsikt.
I boligens underetasje er det hybel med eget inngangsparti. Hybelen inneholder gang, soverom, baderom med opplegg for vaskemaskin samt stue/ kjøkken. Flott utsikt også fra hybelen.
På fremsiden av boligen er det garasje med gode oppbevaringsmuligheter samt flere biloppstillingsplasser. Uteplassen er hyggelig oppabeidet.
Velkommen til visning!
En romslig enebolig over tre etasjer med solrike uteplasser beliggende hyggelig til i et familiært boligområde på Justneshalvøya.
Hoveddelen av boligen inneholder bla. 3 soverom, walk-in garderobe, stor stue/ kjøkken, to baderom samt vaskerom.
Det er utgang til solrike uteplasser samt en fantastisk utsikt.
I boligens underetasje er det hybel med eget inngangsparti. Hybelen inneholder gang, soverom, baderom med opplegg for vaskemaskin samt stue/ kjøkken. Flott utsikt også fra hybelen.
På fremsiden av boligen er det garasje med gode oppbevaringsmuligheter samt flere biloppstillingsplasser. Uteplassen er hyggelig oppabeidet.
Velkommen til visning!
NB: Knappen for å vise hele beskrivelsen har kun en visuell effekt.
NB: Knappen for å vise hele beskrivelsen har kun en visuell effekt.
Salgsoppgaven beskriver vesentlig og lovpålagt informasjon om eiendommen
Se komplett salgsoppgaveNyttige lenker
Nærområdet
Eiendomsmegler Norge Kristiansand
Det viktigste stedet i Norge er der du bor
Annonseinformasjon
| FINN-kode | 412327050 |
|---|---|
| Sist endret | 06. jan. 2026 09:09 |
| Referanse | 50250102 |
Annonsene kan være mangelfulle i forhold til lovpålagt opplysningsplikt. Før bindende avtale inngås oppfordres interessenter til å innhente komplett informasjon fra meglerforetaket, selger eller utleier.


































































