Bildegalleri

Brugata 34, snr. 5.jpg
Brumunddal sentrum
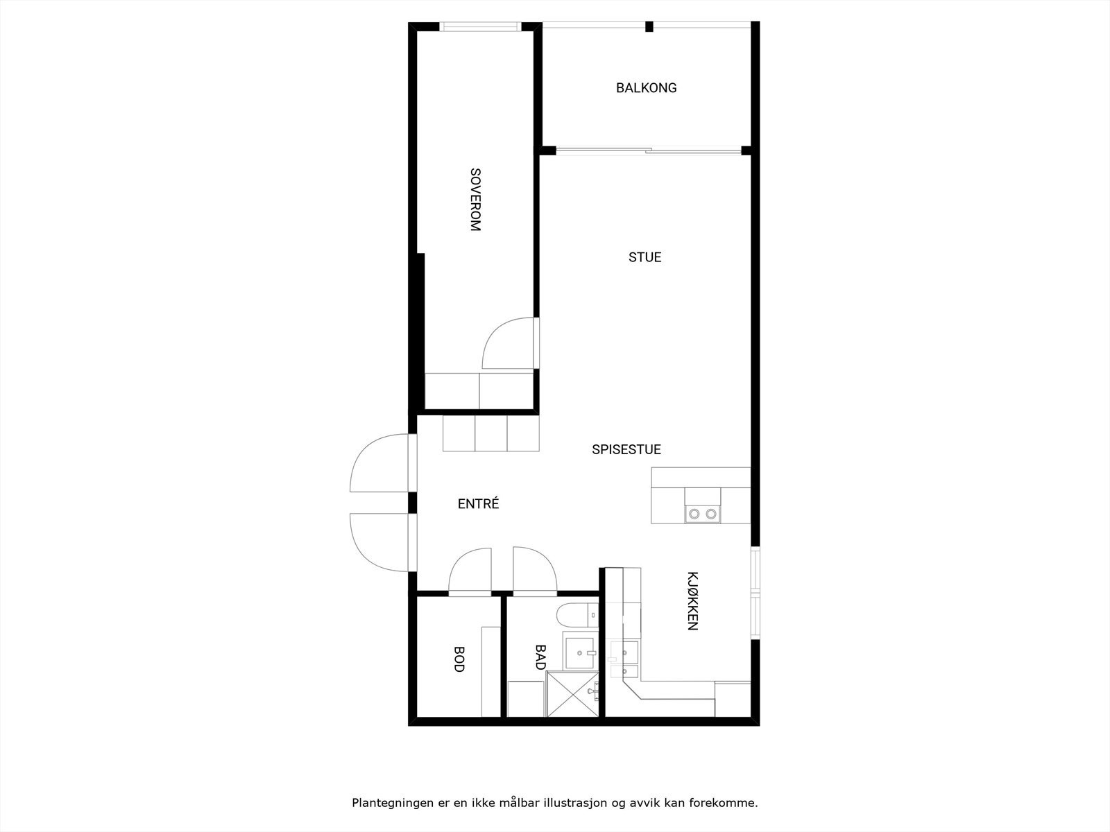
Koselig 2-roms eierleilighet med balkong mot sørvest. Mjøsutsikt. Heis.
Prisantydning2 490 000 kr
Nøkkelinfo
- Boligtype
- Leilighet
- Eieform
- Eier (Selveier)
- Soverom
- 1
- Internt bruksareal
- 66 m² (BRA-i)
- Bruksareal
- 66 m²
- Balkong/Terrasse
- 6 m² (TBA)
- Etasje
- 4
- Byggeår
- 1988
- Energimerking
- D - Rød
- Rom
- 2
- Tomteareal
- 1 184 m² (eiet)
Fasiliteter
Takterrasse
Balkong/Terrasse
Barnevennlig
Bredbåndstilknytning
Heis
Kjæledyr tillatt
Kabel-TV
Offentlig vann/kloakk
Sentralt
Utsikt
Turterreng
Visning
Ved annonsert visning er det viktig at du melder deg på visningen ved å bruke visningspåmeldingsknappen eller kontakter megler. Annonserte visninger hvor det ikke er noen påmeldte innen kl. 15.00 på visningsdagen, vil ikke bli avholdt. For visninger utover dette, ta direkte kontakt med megler.
VisningspåmeldingOm boligen
Flott beliggenhet i M-husets 4. etasje. Med solrik balkong vendt mot sørvest. Utsikt over foranliggende bebyggelse og mot Mjøsa. I tillegg har sameiet tilgang til en felles takterrasse med fantastisk utsikt over sentrum.
Overflater i leiligheten er pusset opp i 2025.
Leiligheten ligger midt i hjertet av Brumunddal med gågata rett utenfor døren. I byggets 1. etasje har du bakeri, og ellers i sentrum finner du flere matbutikker, klesbutikker, apotek, vinmonopol, koselige kafeer og restauranter for å nevne noe. Kort avstand til bussholdeplass med 9 ulike linjer og ikke minst til togstasjonen. E6 med 4 felt går forbi ved Brumunddal og det tar ca. 15 min til Hamar sentrum samt 1 t 30 min til Oslo.
Overflater i leiligheten er pusset opp i 2025.
Leiligheten ligger midt i hjertet av Brumunddal med gågata rett utenfor døren. I byggets 1. etasje har du bakeri, og ellers i sentrum finner du flere matbutikker, klesbutikker, apotek, vinmonopol, koselige kafeer og restauranter for å nevne noe. Kort avstand til bussholdeplass med 9 ulike linjer og ikke minst til togstasjonen. E6 med 4 felt går forbi ved Brumunddal og det tar ca. 15 min til Hamar sentrum samt 1 t 30 min til Oslo.
NB: Knappen for å vise hele beskrivelsen har kun en visuell effekt.
NB: Knappen for å vise hele beskrivelsen har kun en visuell effekt.
Salgsoppgaven beskriver vesentlig og lovpålagt informasjon om eiendommen
Se komplett salgsoppgaveNærområdet
Aktiv Innlandet
Annonseinformasjon
| FINN-kode | 412321039 |
|---|---|
| Sist endret | 25. nov. 2025 13:57 |
| Referanse | 1214250081 |
Annonsene kan være mangelfulle i forhold til lovpålagt opplysningsplikt. Før bindende avtale inngås oppfordres interessenter til å innhente komplett informasjon fra meglerforetaket, selger eller utleier.






























