Bildegalleri

Velkommen til Solheims Tverrgate 28, presentert av Oda Emilie Roa v/ EiendomsMegler 1!
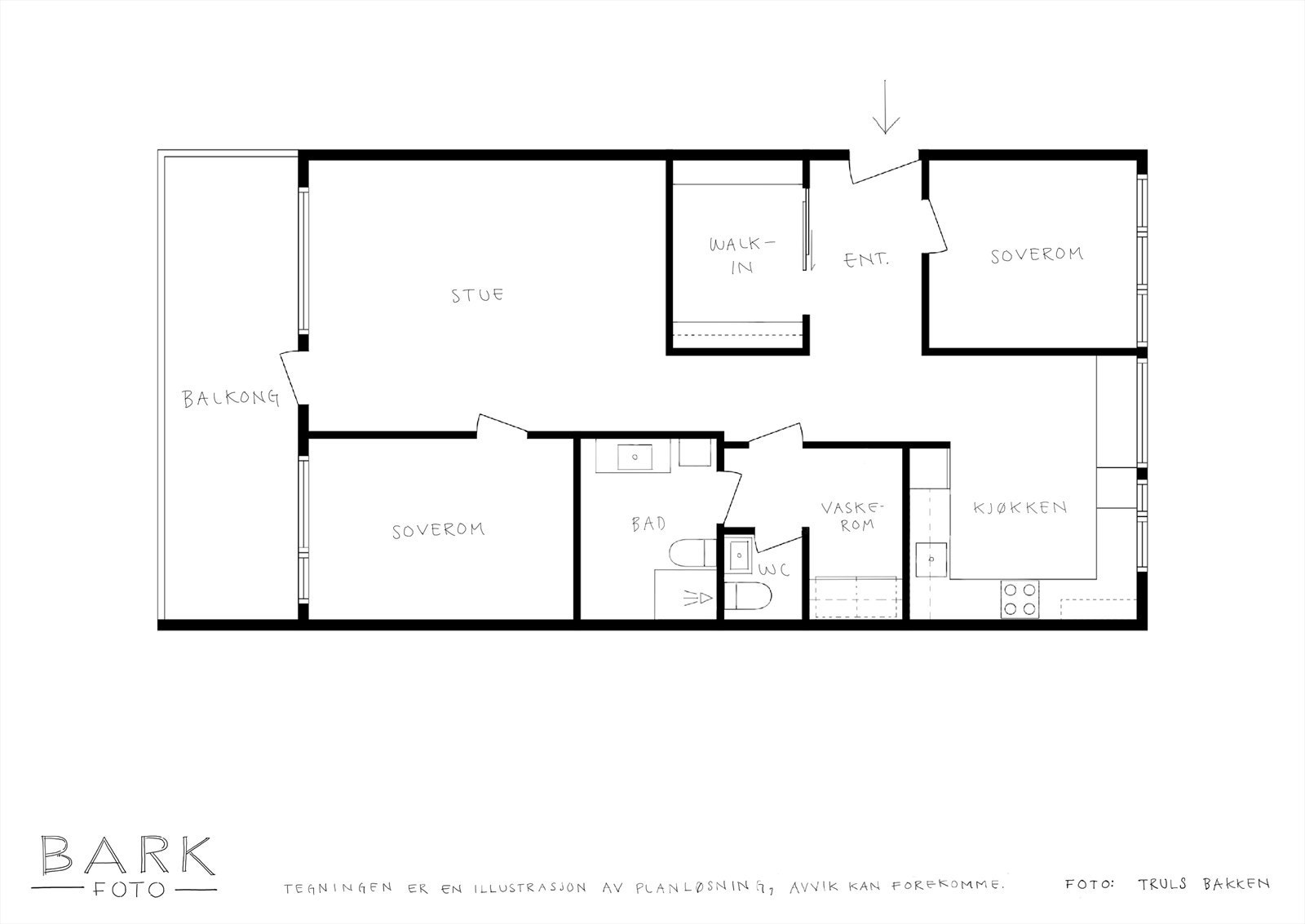
3-roms leilighet med høy standard oppgradert i 2021/2022 - Stor, solrik balkong - Nær Bybanen - Mye inkl. i fellesutg.!
Nøkkelinfo
- Boligtype
- Leilighet
- Eieform
- Andel
- Soverom
- 2
- Internt bruksareal
- 87 m² (BRA-i)
- Bruksareal
- 95 m²
- Eksternt bruksareal
- 8 m² (BRA-e)
- Balkong/Terrasse
- 13 m² (TBA)
- Etasje
- 2
- Byggeår
- 1982
- Energimerking
- E - Rød
- Rom
- 3
- Tomteareal
- 8 078 m² (eiet)
Fasiliteter
Om boligen
- Stor, solrik veranda
- Walk-in garderobe
- 1-stavs laminatgulv
- Påkostet spilevegg i stue
- Varmtvann inkl. i fellesutgifter
- Nye taklamper gjennomgående i hele leiligheten (2025)
- Ny waterfall dusj (2025)
- Ny ventilator på kjøkken (2025)
- Ett soverom i hver ende av leiligheten
Borettslaget er under oppussing hvor det blir skiftet til en moderne fasade, nye rør, nye tak, vinduer blir skiftet og det blir lagt inn balansert ventilasjon.
Velkommen!
Salgsoppgaven beskriver vesentlig og lovpålagt informasjon om eiendommen
Se komplett salgsoppgaveNyttige lenker
Nærområdet
EiendomsMegler 1 Marken
Prisstatistikk
Solheims tverrgate 28
på annonsen
prisantydning per kvadratmeter
Prisfordeling
Pris per m² ligger 22 088 kr under snittet for leiligheter i Bergen Sentrum.
Grafen viser antall leiligheter solgt i Bergen Sentrum siste året fordelt på pris per m² - totalt 2 422 leiligheter
Antall boliger
Kvadratmeterpris tilsvarer prisantydning pluss fellesgjeld per kvadratmeter (p-rom eller BRA-i). Prisene i grafen er avrundet til nærmeste 1000 kr.
Annonseinformasjon
| FINN-kode | 412277902 |
|---|---|
| Sist endret | 03. aug. 2025 11:24 |
| Referanse | 2711240036 |
Annonsene kan være mangelfulle i forhold til lovpålagt opplysningsplikt. Før bindende avtale inngås oppfordres interessenter til å innhente komplett informasjon fra meglerforetaket, selger eller utleier.



































