Bildegalleri

Velkommen til Engelsrud terrasse 23, presentert av Nordvik Asker.
Engelsrud /Asker
Oppgradert og innholdsrik enebolig - Tilbygget 2019 - Hybel - Solrik tomt - Lydisolert kjellerstue - Garasje - Nær marka
Prisantydning14 750 000 kr
Nøkkelinfo
- Boligtype
- Enebolig
- Eieform
- Eier (Selveier)
- Soverom
- 4
- Internt bruksareal
- 363 m² (BRA-i)
- Bruksareal
- 410 m²
- Eksternt bruksareal
- 47 m² (BRA-e)
- Balkong/Terrasse
- 57 m² (TBA)
- Etasje
- 3
- Byggeår
- 1961
- Energimerking
- B - Gul
- Rom
- 8
- Tomteareal
- 1 874 m² (eiet)
Fasiliteter
Balkong/Terrasse
Barnevennlig
Bredbåndstilknytning
Båtplass
Garasje/P-plass
Hage
Ingen gjenboere
Kabel-TV
Offentlig vann/kloakk
Parkett
Peis/Ildsted
Rolig
Turterreng
Balansert ventilasjon
Visning
Alle våre visninger har påmelding. På denne måten sikrer vi at megler har god oversikt og tid til å imøtekomme alle interessenter. Meld deg på visning ved å trykke på lenken visningspåmelding. Ta kontakt med megler dersom det er ønskelig med privat visning.
VisningspåmeldingOm boligen
Nordvik Asker presenterer Engelsrud Terrasse 23.
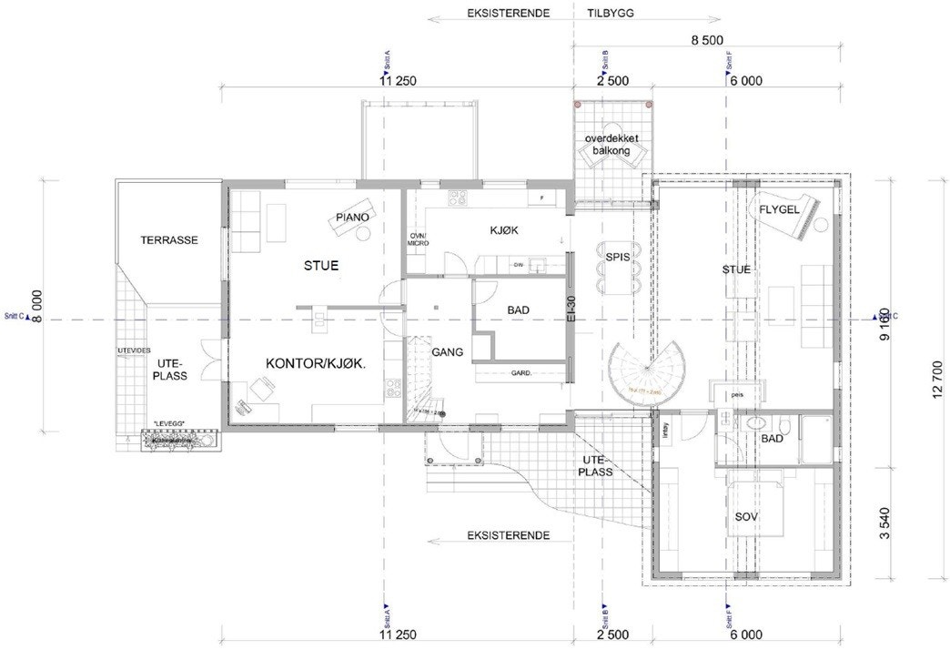
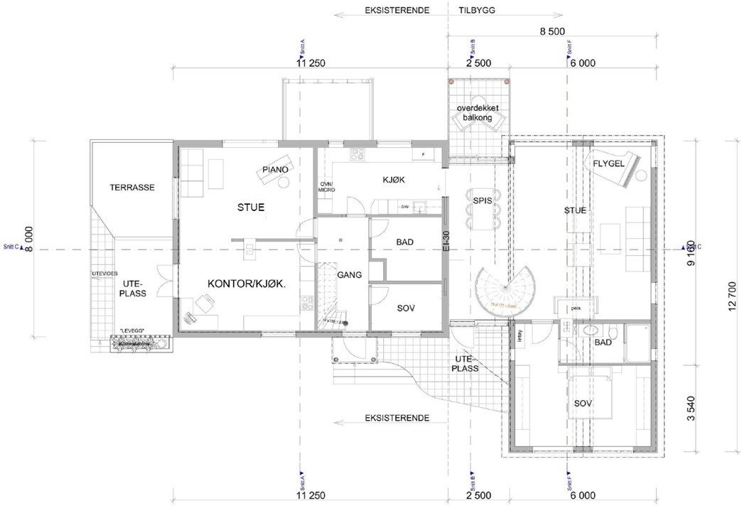
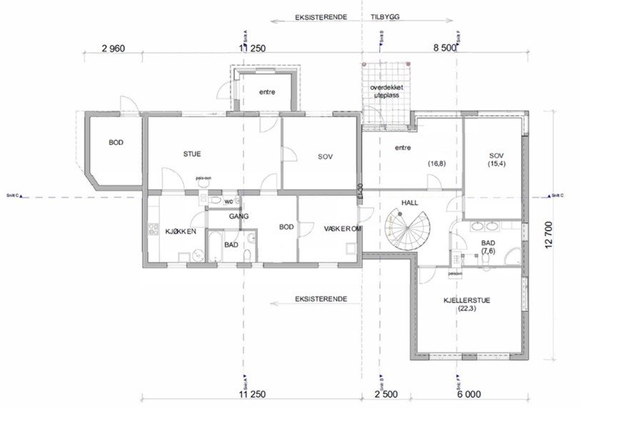
Innholdsrik bolig med hybelleilighet pusset opp og tilbygget i 2019 med en fleksibel planløsning som enkelt kan tilpasses som en generasjonsbolig eller utleie.
Eiendommen er vesentlig oppgradert med bl.a. etterisolering (Energimerke B), nytt el-anlegg, balansert ventilasjon, vannbåren varme, nye vinduer og nytt tak.
Eiendommen ligger i et rolig og attraktivt boligområde, omgitt av grønne omgivelser og med stor, solrik tomt, flott hage og fine uteplasser. Beliggenheten er attraktiv med kort vei til marka, vann, skoler, barnehager og kollektivtransport. Det er tinglyst båtfeste i Nordvannet, og området har turstier, badeplasser og et aktivt nærmiljø. Her er det trygt og barnevennlig, med kort vei til både naturen, Asker, Liertoppen og Oslo.
Innholdsrik bolig med hybelleilighet pusset opp og tilbygget i 2019 med en fleksibel planløsning som enkelt kan tilpasses som en generasjonsbolig eller utleie.
Eiendommen er vesentlig oppgradert med bl.a. etterisolering (Energimerke B), nytt el-anlegg, balansert ventilasjon, vannbåren varme, nye vinduer og nytt tak.
Eiendommen ligger i et rolig og attraktivt boligområde, omgitt av grønne omgivelser og med stor, solrik tomt, flott hage og fine uteplasser. Beliggenheten er attraktiv med kort vei til marka, vann, skoler, barnehager og kollektivtransport. Det er tinglyst båtfeste i Nordvannet, og området har turstier, badeplasser og et aktivt nærmiljø. Her er det trygt og barnevennlig, med kort vei til både naturen, Asker, Liertoppen og Oslo.
NB: Knappen for å vise hele beskrivelsen har kun en visuell effekt.
NB: Knappen for å vise hele beskrivelsen har kun en visuell effekt.
Salgsoppgaven beskriver vesentlig og lovpålagt informasjon om eiendommen
Se komplett salgsoppgaveNyttige lenker
Nærområdet
Nordvik Asker
Vi vet hva det er verdt
Annonseinformasjon
| FINN-kode | 412223134 |
|---|---|
| Sist endret | 22. jan. 2026 12:17 |
| Referanse | 33-0120/25 |
Annonsene kan være mangelfulle i forhold til lovpålagt opplysningsplikt. Før bindende avtale inngås oppfordres interessenter til å innhente komplett informasjon fra meglerforetaket, selger eller utleier.

















































































