Bildegalleri

Velkommen til Hovinveien 37L - Presentert av Krogsveen Hasle v/ Jonas Ekse Hovland
Solgt
Marienfryd / Hasle
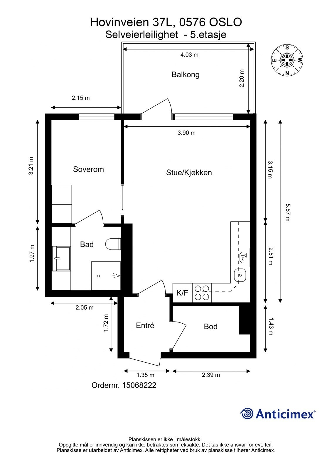
Lys og luftig 2-roms toppleilighet med god planløsning. Herlig balkong på 9 kvm. Populært område. Fyring & VV inkl. Heis
Prisantydning4 750 000 kr
Nøkkelinfo
- Boligtype
- Leilighet
- Eieform
- Selveier
- Soverom
- 1
- Internt bruksareal
- 40 m² (BRA-i)
- Bruksareal
- 45 m²
- Eksternt bruksareal
- 5 m² (BRA-e)
- Balkong/Terrasse
- 9 m² (TBA)
- Etasje
- 5
- Byggeår
- 2015
- Energimerking
- C - Mørkegrønn
- Rom
- 2
- Tomteareal
- 1 665 m² (eiet)
Fasiliteter
Balkong/Terrasse
Barnevennlig
Bredbåndstilknytning
Heis
Kjæledyr tillatt
Kabel-TV
Offentlig vann/kloakk
Parkett
Rolig
Sentralt
Balansert ventilasjon
Om boligen
Jonas Ekse Hovland v/ Krogsveen har gleden av å presentere Hovinveien 37L!
Romslig 2-roms toppleilighet med store vindusflater og flott balkong på hele 9 kvm. Leiligheten ligger høyt og fritt til i byggets toppetasje med heisadkomst. Praktisk planløsning med åpen stue/kjøkkenløsning, romslige soverom og godt med oppbevaringsplass. Bygget ligger i rolige og ettertraktede omgivelser på populære Marienfryd med nærhet til alt en måtte trenge i hverdagen av butikker, servicetilbud og kollektivtrafikk.
Kvaliteter:
Romslig 2-roms toppleilighet med store vindusflater og flott balkong på hele 9 kvm. Leiligheten ligger høyt og fritt til i byggets toppetasje med heisadkomst. Praktisk planløsning med åpen stue/kjøkkenløsning, romslige soverom og godt med oppbevaringsplass. Bygget ligger i rolige og ettertraktede omgivelser på populære Marienfryd med nærhet til alt en måtte trenge i hverdagen av butikker, servicetilbud og kollektivtrafikk.
Kvaliteter:
- God og effektiv planløsning med velholdt standard
- Høyt og fritt i toppetasje med heisadkomst
- Fyring/varmtvann og tv/internett inkl.
- Stor sørvendt balkong på 9 kvm
- Rikelig med oppbevaringsplass
- Balansert ventilasjon
- Bygg fra 2015
Velkommen!
NB: Knappen for å vise hele beskrivelsen har kun en visuell effekt.
NB: Knappen for å vise hele beskrivelsen har kun en visuell effekt.
Salgsoppgaven beskriver vesentlig og lovpålagt informasjon om eiendommen
Se komplett salgsoppgaveNyttige lenker
Nærområdet
Krogsveen Hasle
Verdien av en god megler.
Annonseinformasjon
| FINN-kode | 412062580 |
|---|---|
| Sist endret | 20. juni 2025 11:19 |
| Referanse | KR37.2597 |
Annonsene kan være mangelfulle i forhold til lovpålagt opplysningsplikt. Før bindende avtale inngås oppfordres interessenter til å innhente komplett informasjon fra meglerforetaket, selger eller utleier.




































