Bildegalleri

Fasade
Inaktiv
Velholdt og oppgradert enebolig med solrik beliggenhet | Fine uteområder og utsikt | Vesentlig oppusset i 2012-2013
Prisantydning2 100 000 kr
Nøkkelinfo
- Boligtype
- Enebolig
- Eieform
- Selveier
- Soverom
- 3
- Internt bruksareal
- 173 m² (BRA-i)
- Bruksareal
- 173 m²
- Balkong/Terrasse
- 29 m² (TBA)
- Etasje
- 3
- Byggeår
- 1952
- Rom
- 6
- Tomteareal
- 915 m² (eiet)
Fasiliteter
Balkong/Terrasse
Barnevennlig
Offentlig vann/kloakk
Peis/Ildsted
Sentralt
Utsikt
Bademulighet
Turterreng
Lademulighet
Om boligen
Velkommen til Skogliveien 21. Boligen har vært gjenstand for stor oppussing siden 2012 og fremstår i god stand. Eiendommen har kort gangavstand til skole, barnehage butikker,turområder og idrettsanlegg. Stor og pent opparbeidet tomt.
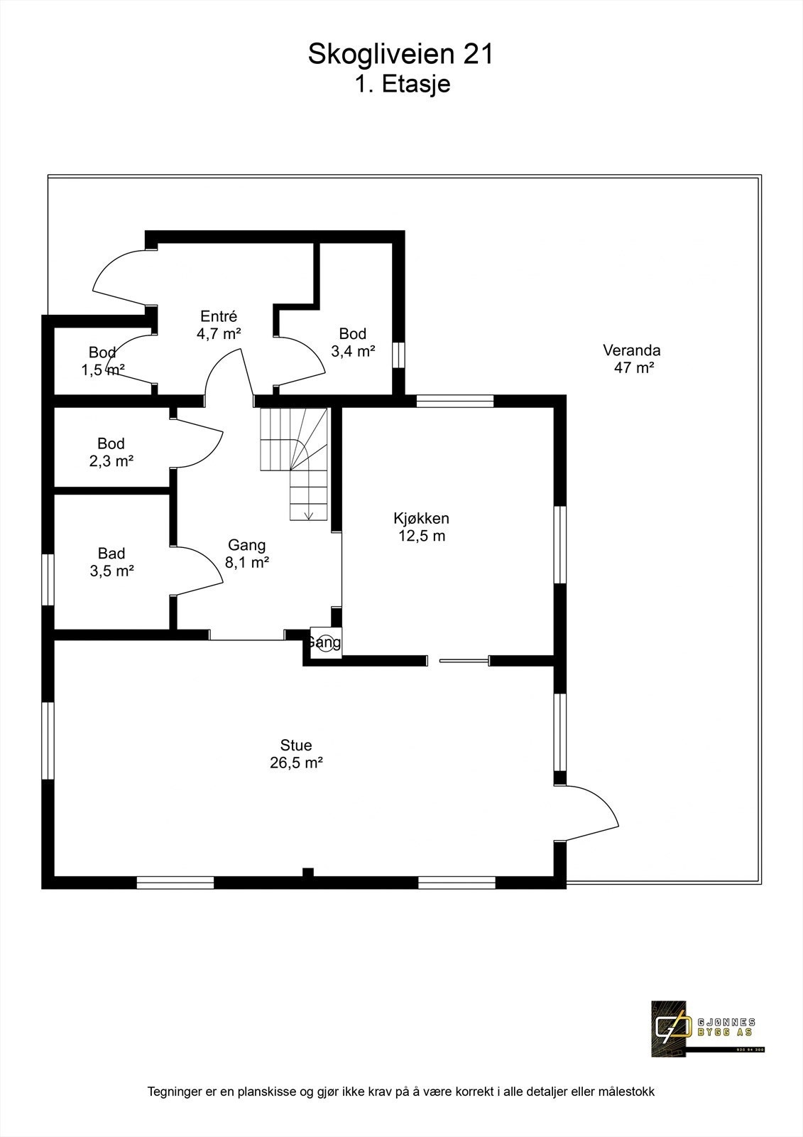
Innhold:
Kjeller:
4 Boder
1.Etasje
Entré, Gang, Stue, Kjøkken, Bad og 3 boder
2. Etasje
Gang, Bad og 3 Soverom
Velkommen!
Innhold:
Kjeller:
4 Boder
1.Etasje
Entré, Gang, Stue, Kjøkken, Bad og 3 boder
2. Etasje
Gang, Bad og 3 Soverom
Velkommen!
NB: Knappen for å vise hele beskrivelsen har kun en visuell effekt.
NB: Knappen for å vise hele beskrivelsen har kun en visuell effekt.
Salgsoppgaven beskriver vesentlig og lovpålagt informasjon om eiendommen
Se komplett salgsoppgaveNærområdet
Aktiv Orkla
Annonseinformasjon
| FINN-kode | 412017181 |
|---|---|
| Sist endret | 25. feb. 2026 14:29 |
| Referanse | 1702250086 |
Annonsene kan være mangelfulle i forhold til lovpålagt opplysningsplikt. Før bindende avtale inngås oppfordres interessenter til å innhente komplett informasjon fra meglerforetaket, selger eller utleier.



































