Bildegalleri

Sjarmerende eiendom i naturskjønne omgivelser med stor, solrik og usjenert tomt. 2 bolighus. Perfekt for storfamilien.
Heradsbygd. Usjenert, solrikt tidl. småbruk. 2 velholdte eneboliger og 53 mål tomt. Utleiemuligheter!
Prisantydning5 990 000 kr
Nøkkelinfo
- Boligtype
- Enebolig
- Eieform
- Eier (Selveier)
- Soverom
- 5
- Internt bruksareal
- 362 m² (BRA-i)
- Bruksareal
- 380 m²
- Innglasset balkong
- 18 m² (BRA-b)
- Balkong/Terrasse
- 57 m² (TBA)
- Etasje
- 2
- Byggeår
- 1936
- Energimerking
- E - Oransje
- Rom
- 7
- Tomteareal
- 53 076 m² (eiet)
Fasiliteter
Balkong/Terrasse
Barnevennlig
Bredbåndstilknytning
Garasje/P-plass
Hage
Kjæledyr tillatt
Ingen gjenboere
Kabel-TV
Peis/Ildsted
Rolig
Utvidelsesmuligheter
Bademulighet
Fiskemulighet
Turterreng
Lademulighet
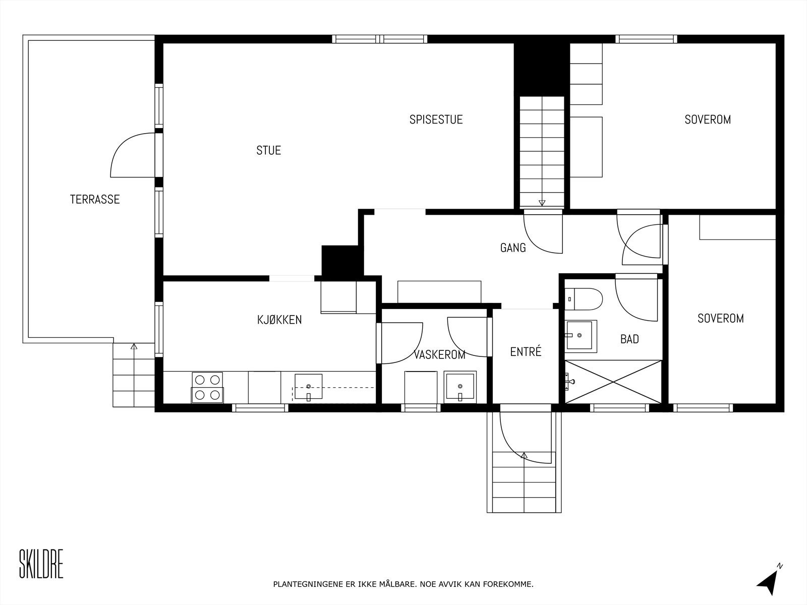
Om boligen
Solrikt og velholdt småbruk. Lettstelt "generasjonseiendom" med to moderne eneboliger. Idyllisk og stille beliggende. Kun 12 km fra Elverum.
- Utleie med gode inntektsmuligheter
- Delvis ferdig utbygget del av loft i hovedhus
- Begge fasadene er malt i 2025
- Ideelt for storfamilien.
- Midt i naturen. Usjenert og stille, men kort vei til sentrum.
- Fint for utstrakt hunde- eller hestehold mm.
- Ikke odel eller konsesjon.
- Solrikt og lettstelt tun + 24 da dyrket mark og 25 da skog.
- Hovedhus med bla. 3 soverom. Kan utvides med innr. av loftsetasje.
- Tilleggsbolig med bla. 2 soverom. Evt. fint for Airbnb/utleie.
- Kort vei til Glomma for fiske, bading eller båtkjøring.
- Var tidligere en låve på eiendommen.
For visning: ta kontakt med Mona Bjerke, eiendomsmegler MNEF på tlf. 926 39061
- Utleie med gode inntektsmuligheter
- Delvis ferdig utbygget del av loft i hovedhus
- Begge fasadene er malt i 2025
- Ideelt for storfamilien.
- Midt i naturen. Usjenert og stille, men kort vei til sentrum.
- Fint for utstrakt hunde- eller hestehold mm.
- Ikke odel eller konsesjon.
- Solrikt og lettstelt tun + 24 da dyrket mark og 25 da skog.
- Hovedhus med bla. 3 soverom. Kan utvides med innr. av loftsetasje.
- Tilleggsbolig med bla. 2 soverom. Evt. fint for Airbnb/utleie.
- Kort vei til Glomma for fiske, bading eller båtkjøring.
- Var tidligere en låve på eiendommen.
For visning: ta kontakt med Mona Bjerke, eiendomsmegler MNEF på tlf. 926 39061
NB: Knappen for å vise hele beskrivelsen har kun en visuell effekt.
NB: Knappen for å vise hele beskrivelsen har kun en visuell effekt.
Salgsoppgaven beskriver vesentlig og lovpålagt informasjon om eiendommen
Se komplett salgsoppgaveNyttige lenker
Nærområdet
Meglerhuset Østlandet AS
Annonseinformasjon
| FINN-kode | 411984431 |
|---|---|
| Sist endret | 19. jan. 2026 11:38 |
| Referanse | GAR14.2476 |
Annonsene kan være mangelfulle i forhold til lovpålagt opplysningsplikt. Før bindende avtale inngås oppfordres interessenter til å innhente komplett informasjon fra meglerforetaket, selger eller utleier.




































































