Bildegalleri

Velkommen til Pilestredet 59 - Presentert av Ulrik Bøe V/Privatmegleren Dyve & Partnere
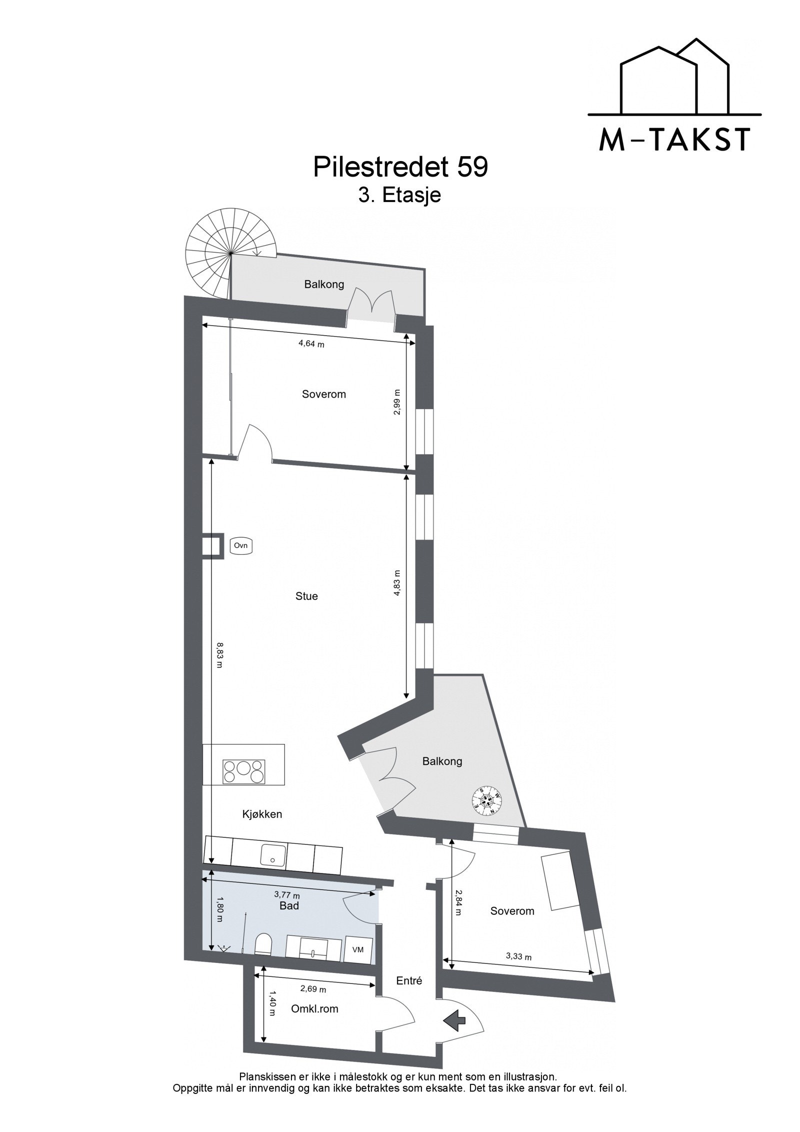
Lys og tiltalende 3-roms I Vestvendt balkong I Takterrasse I Kjøkken fra 2019 I Peis I Tilbaketrukket I Parkering*
Nøkkelinfo
- Boligtype
- Leilighet
- Eieform
- Selveier
- Soverom
- 2
- Internt bruksareal
- 79 m² (BRA-i)
- Bruksareal
- 79 m²
- Balkong/Terrasse
- 11 m² (TBA)
- Etasje
- 3
- Byggeår
- 1886
- Energimerking
- G - Oransje
- Rom
- 3
- Tomteareal
- 393 m² (eiet)
- Boligselgerforsikring
- Ja
Fasiliteter
Om boligen
Velkommen til Pilestredet 59. En lys og innholdsrik 3-roms med vestvendt balkong og takterrasse, midt i hjertet av Bislett. Leiligheten ligger skjermet til i byggets tredje etasje, og vender mot rolig bakgård. Beliggenheten kombinerer det urbane og det grønne, med kort vei til både sentrum, parker og kollektivtransport. Boligen fremstår som tiltalende med oppgraderte overflater og en god planløsning. Velkommen til en hyggelig visning!
Høydepunkter:
- Vestvendt balkong med ettermiddagssol
- Stor, solrik takterrasse (deles med én nabo)
- Ingen innsyn
- Vender i sin helhet mot rolig bakgård
- Kjøkken fra 2019 med kvalitetshvitevarer
- Flislagt bad fra 2014
- Peis i stue
- God takhøyde på 2,74 m
- Parkering*
- Ekstern bod
- Umiddelbar nærhet til servicetilbud, kollektivtransport og parker
Salgsoppgaven beskriver vesentlig og lovpålagt informasjon om eiendommen
Se komplett salgsoppgaveNyttige lenker
Nærområdet

PrivatMegleren Dyve & Partnere
Annonseinformasjon
| FINN-kode | 411872611 |
|---|---|
| Sist endret | 24. nov. 2025 09:54 |
| Referanse | 159250251 |
Annonsene kan være mangelfulle i forhold til lovpålagt opplysningsplikt. Før bindende avtale inngås oppfordres interessenter til å innhente komplett informasjon fra meglerforetaket, selger eller utleier.





























