


Velkommen til Sagene og Arendalsgata 14!
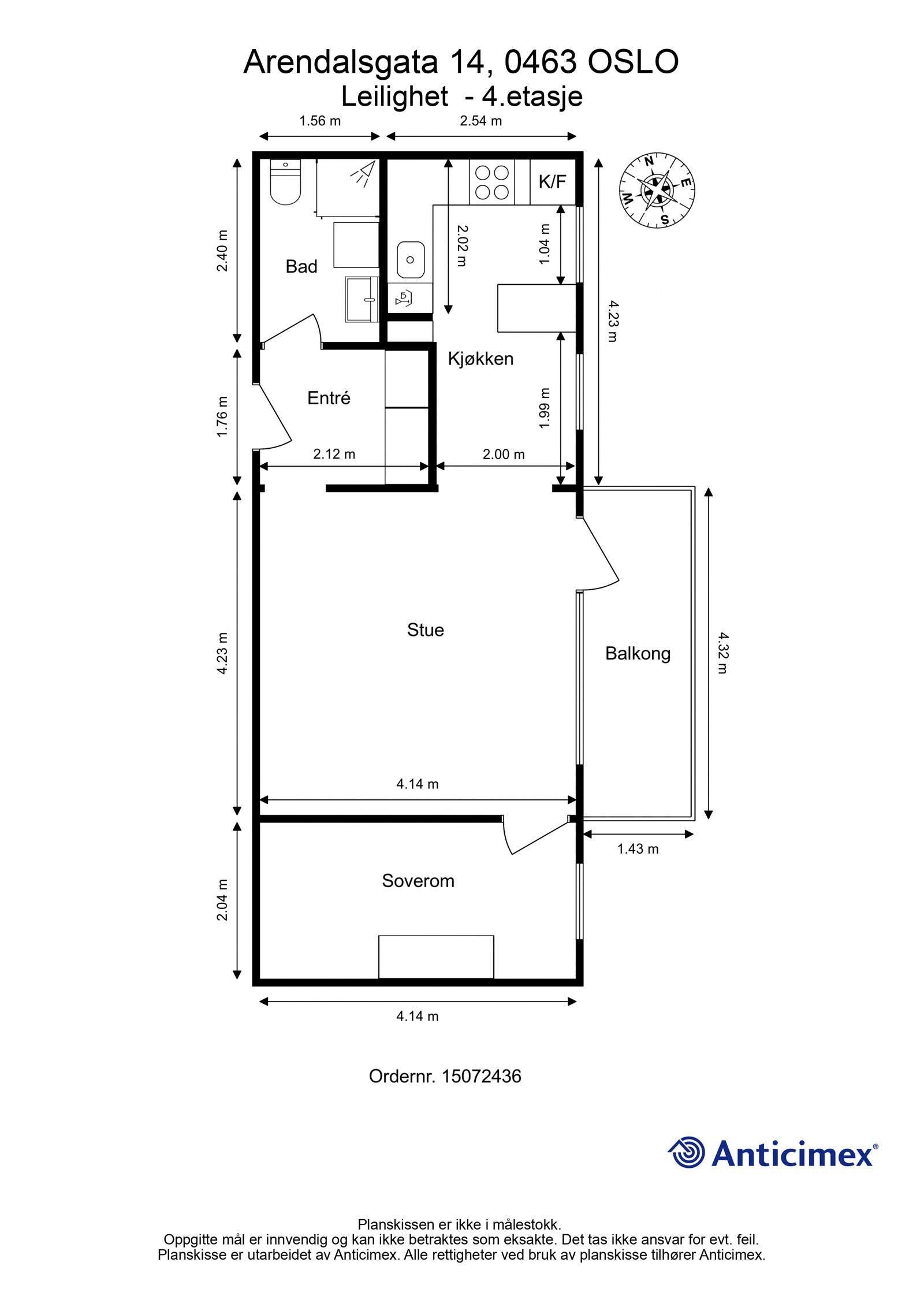
Det er noe med stemningen idet du kommer inn, luften, lyset, roen. Denne selveierleiligheten er en sånn bolig: Full av dagslys, luft og lunhet. Her får du et hjem som kjennes større enn kvadratmeterne skulle tilsi. Planløsningen er smart og åpen, og lyset flyter fritt gjennom de store vindusflatene.
Fra stuen er det utgang til en hyggelig, solrik, sydøstvendt balkong, perfekt for morgenkaffen, rolige kvelder eller små sammenkomster med venner.
Beliggenheten er helt topp: Du bor midt på Sagene med kort vei til alt av butikker og kafeer, restauranter og treningsentre. Bra kollektivtilbud med buss nummer 20, 34, 37 og 54, som raskt tar deg til andre deler av byen.
Salgsoppgaven beskriver vesentlig og lovpålagt informasjon om eiendommen
Se komplett salgsoppgaveArendalsgata 14
på annonsen
prisantydning per kvadratmeter
Pris per m² ligger 2 045 kr under snittet for leiligheter i Sagene - Torshov.
Grafen viser antall leiligheter solgt i Sagene - Torshov siste året fordelt på pris per m² - totalt 2 382 leiligheter
Antall boliger
Kvadratmeterpris tilsvarer prisantydning pluss fellesgjeld per kvadratmeter (p-rom eller BRA-i). Prisene i grafen er avrundet til nærmeste 1000 kr.












| FINN-kode | 411673595 |
|---|---|
| Sist endret | 21. juni 2025 13:19 |
| Referanse | 19250285 |
Annonsene kan være mangelfulle i forhold til lovpålagt opplysningsplikt. Før bindende avtale inngås oppfordres interessenter til å innhente komplett informasjon fra meglerforetaket, selger eller utleier.