Bildegalleri

EIE Eiendomsmegling v/ Inger Johanne Mauland Frivold har gleden av å presentere Nyevegen 11
Rosseland / Bryne
En arkitekttegnet perle i høyden - lys, luft og frodighet i skjønn forening
Prisantydning17 000 000 kr
Nøkkelinfo
- Boligtype
- Enebolig
- Eieform
- Eier (Selveier)
- Soverom
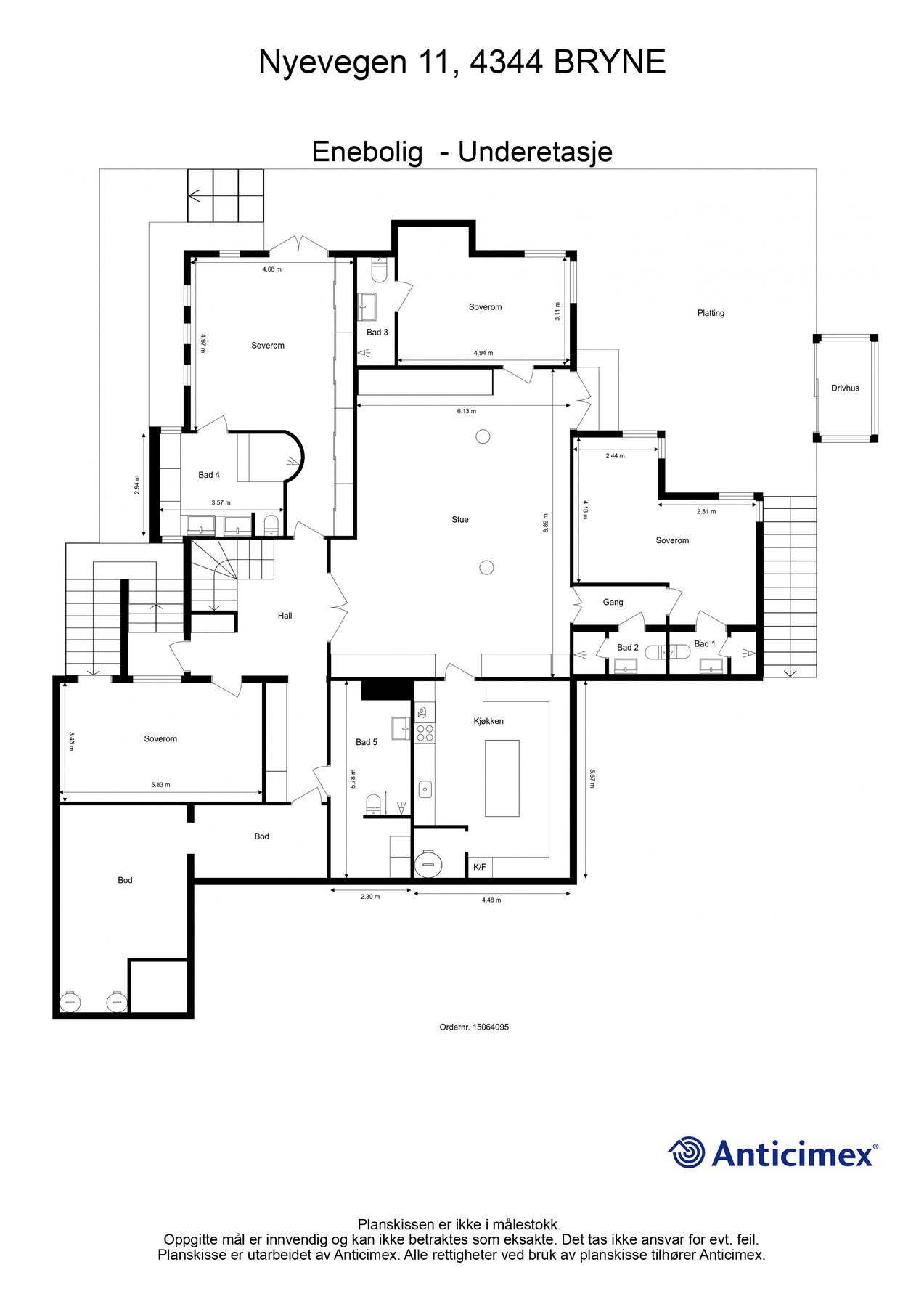
- 5
- Internt bruksareal
- 570 m² (BRA-i)
- Bruksareal
- 614 m²
- Eksternt bruksareal
- 44 m² (BRA-e)
- Balkong/Terrasse
- 174 m² (TBA)
- Byggeår
- 1988
- Energimerking
- C - Gul
- Rom
- 9
- Tomteareal
- 843 m² (eiet)
Fasiliteter
Barnevennlig
Balkong/Terrasse
Garasje/P-plass
Alarm
Peis/Ildsted
Turterreng
Utsikt
Sentralt
Rolig
Lademulighet
Om boligen
EIE eiendomsmegling v/ Inger Johanne M. Frivold presenterer Nyevegen 11.
Velkommen til en bolig uten sidestykke - skapt som egen bolig for arkitektparet Sjo Fasting. Med et totalt bruksareal på hele 614 kvm, opp til 7,5 meters takhøyde og store vindusflater, oppleves huset som som både luftig og lyst - et hjem som virkelig lar lyset og utsikten få spille hovedrollen.
Eiendommen ligger usjenert og tilbaketrukket i høyden over Bryne, kun noen minutters gange fra sentrum. Her venter en frodig og opparbeidet hage som nærmest er en botanisk oppdagelsesreise: ulike typer rhododendron i et hav av farger, klarende drueranker, duftende roser og fruktbærende trær som valnøtt og ekte kastanje.
Boligen byr på 5 soverom - alle med egne bad - og sonedelte rom som kombinerer åpenhet med lun atmosfære. Uteområdene er belagt med skifer, og huset har flere utganger til terrasser som inviterer til avslapning og samvær. Hver detalj i hjemmet er nøye gjennomtenkt og tilpasset både funksjon og estetikk.
Velkommen til en bolig uten sidestykke - skapt som egen bolig for arkitektparet Sjo Fasting. Med et totalt bruksareal på hele 614 kvm, opp til 7,5 meters takhøyde og store vindusflater, oppleves huset som som både luftig og lyst - et hjem som virkelig lar lyset og utsikten få spille hovedrollen.
Eiendommen ligger usjenert og tilbaketrukket i høyden over Bryne, kun noen minutters gange fra sentrum. Her venter en frodig og opparbeidet hage som nærmest er en botanisk oppdagelsesreise: ulike typer rhododendron i et hav av farger, klarende drueranker, duftende roser og fruktbærende trær som valnøtt og ekte kastanje.
Boligen byr på 5 soverom - alle med egne bad - og sonedelte rom som kombinerer åpenhet med lun atmosfære. Uteområdene er belagt med skifer, og huset har flere utganger til terrasser som inviterer til avslapning og samvær. Hver detalj i hjemmet er nøye gjennomtenkt og tilpasset både funksjon og estetikk.
NB: Knappen for å vise hele beskrivelsen har kun en visuell effekt.
NB: Knappen for å vise hele beskrivelsen har kun en visuell effekt.
Salgsoppgaven beskriver vesentlig og lovpålagt informasjon om eiendommen
Se komplett salgsoppgaveNyttige lenker
Nærområdet
EIE eiendomsmegling - Rogaland Eiendomsmegling AS
Annonseinformasjon
| FINN-kode | 411397980 |
|---|---|
| Sist endret | 17. jan. 2026 16:11 |
| Referanse | 54251093 |
Annonsene kan være mangelfulle i forhold til lovpålagt opplysningsplikt. Før bindende avtale inngås oppfordres interessenter til å innhente komplett informasjon fra meglerforetaket, selger eller utleier.



















































