Bildegalleri

Ida Schjølberg v/ EIE eiendomsmegling ønsker velkommen!
Solgt
Strømsø
Lekker 2-roms leilighet i 2. etg | Varmtvann/fyring inkl. | Kjøkken fra 2021 | Innglasset balkong | 5 min til togstasjon
Prisantydning2 990 000 kr
Nøkkelinfo
- Boligtype
- Leilighet
- Eieform
- Andel
- Soverom
- 1
- Internt bruksareal
- 48 m² (BRA-i)
- Bruksareal
- 70 m²
- Eksternt bruksareal
- 6 m² (BRA-e)
- Innglasset balkong
- 16 m² (BRA-b)
- Etasje
- 2
- Byggeår
- 1968
- Energimerking
- F - Mørkegrønn
- Rom
- 2
- Tomteareal
- 1 765 m² (eiet)
Fasiliteter
Balkong/Terrasse
Kabel-TV
Heis
Offentlig vann/kloakk
Turterreng
Vaktmester-/vektertjeneste
Sentralt
Bredbåndstilknytning
Moderne
Om boligen
Svært sentralt beliggende med gangavstand til alt en trenger i hverdagen. Her bor du med nærhet til jernbane, buss og Strømsø Torg med dagligvare, frisører, café og restauranter. For den aktive er det kun noen minutters gange til Drammensbadet, skøytebane, Marienlyst stadion og Drammenshallen, samt kort vei til flotte turløyper.
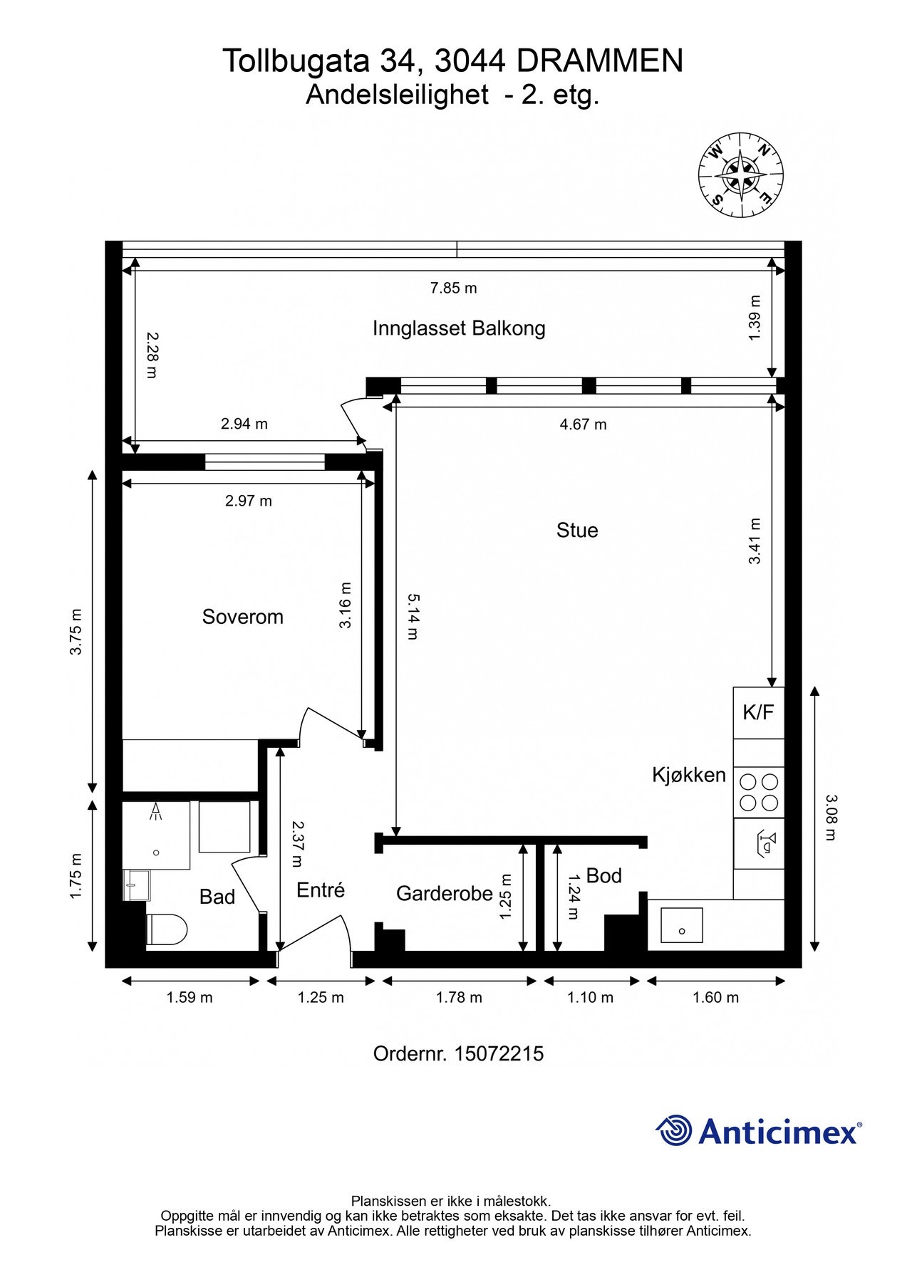
Leiligheten ligger i 2. etasje med heisadkomst og inneholder: Entré, stue, kjøkken, bad, soverom, garderoberom og bod.
I tillegg medfølger det én kjellerbod på ca. 6 kvm.
Høydepunkter:
-Tiltalende 2-roms andelsleilighet
-Varmtvann og sentralfyr inkludert i felleskostnadene
-Kjøkken fra 2021 med integrerte hvitevarer
-Helfliset bad med opplegg for vaskemaskin
-Innglasset balkong på 16 kvm
-Romslig soverom
-Bod i kjeller
-Ingen TG3
-Kort gangavstand til Strømsø torg med servicetilbud, tog- og busstasjon
Mangler du egenkapital? Boligen kan kjøpes med Finit Deleie.
Velkommen!
Leiligheten ligger i 2. etasje med heisadkomst og inneholder: Entré, stue, kjøkken, bad, soverom, garderoberom og bod.
I tillegg medfølger det én kjellerbod på ca. 6 kvm.
Høydepunkter:
-Tiltalende 2-roms andelsleilighet
-Varmtvann og sentralfyr inkludert i felleskostnadene
-Kjøkken fra 2021 med integrerte hvitevarer
-Helfliset bad med opplegg for vaskemaskin
-Innglasset balkong på 16 kvm
-Romslig soverom
-Bod i kjeller
-Ingen TG3
-Kort gangavstand til Strømsø torg med servicetilbud, tog- og busstasjon
Mangler du egenkapital? Boligen kan kjøpes med Finit Deleie.
Velkommen!
NB: Knappen for å vise hele beskrivelsen har kun en visuell effekt.
NB: Knappen for å vise hele beskrivelsen har kun en visuell effekt.
Salgsoppgaven beskriver vesentlig og lovpålagt informasjon om eiendommen
Se komplett salgsoppgaveNyttige lenker
Nærområdet
EIE eiendomsmegling Drammen
Annonseinformasjon
| FINN-kode | 411389547 |
|---|---|
| Sist endret | 25. aug. 2025 10:56 |
| Referanse | 46250119 |
Annonsene kan være mangelfulle i forhold til lovpålagt opplysningsplikt. Før bindende avtale inngås oppfordres interessenter til å innhente komplett informasjon fra meglerforetaket, selger eller utleier.






















