Bildegalleri

Velkommen til Borggata 12A, presentert av Kjetil Ustad v/EIE Valkyrien.
Solgt
Tiltalende, lys & solrik 4R | Solrik balkong & moderne standard fra 2019 | 5. etg m/heis | Parkering*
Prisantydning7 500 000 kr
Nøkkelinfo
- Boligtype
- Leilighet
- Eieform
- Eier (Selveier)
- Soverom
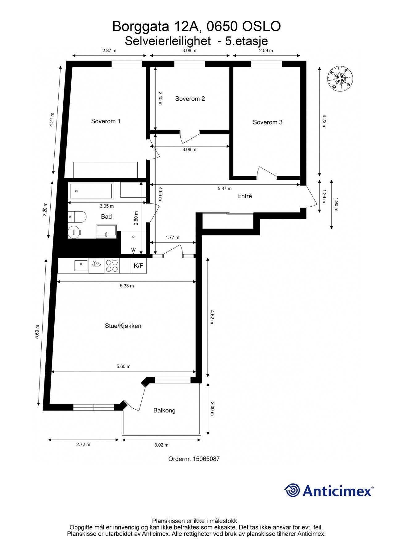
- 3
- Internt bruksareal
- 90 m² (BRA-i)
- Bruksareal
- 94 m²
- Eksternt bruksareal
- 4 m² (BRA-e)
- Balkong/Terrasse
- 5 m² (TBA)
- Etasje
- 5
- Byggeår
- 1988
- Energimerking
- E - Rød
- Rom
- 4
- Tomteareal
- 3 862 m² (eiet)
Fasiliteter
Barnevennlig
Balkong/Terrasse
Garasje/P-plass
Heis
Offentlig vann/kloakk
Ingen gjenboere
Parkett
Turterreng
Utsikt
Vaktmester-/vektertjeneste
Sentralt
Bredbåndstilknytning
Moderne
Rolig
Om boligen
Velkommen til en lys og luftig 4-roms selveierleilighet med god romfølelse og gjennomgående planløsning, beliggende i et grønt og populært område på Tøyen!
Boligen ble pusset opp i 2019 med moderne og tidløse materialvalg. Den åpne stue- og kjøkkenløsningen er både sosial og funksjonell, med god soneinndeling og ikke minst: stuen flommer i naturlig sollys fra en hel vindusvegg. Fra stuen er det også utgang til en solrik balkong. Her får du tre gode soverom, et lekkert samt stort bad fra 2019, og mange gode fasiliteter som gjør hverdagen komfortabel.
Her bor du med kort vei til Tøyen Torg, kaféer, restauranter, butikker og kollektivtransport. Bjørvika og Oslofjorden når du til fots på ca. 15 minutter.
Høydepunkter:
- Lekker 4-roms leilighet pusset opp i 2019
- Solrik balkong på 5m² mot sørvest
- Mulighet for kjøp/leie av parkplass ved ledighet
- Grønne fellesarealer
- Sentral beliggenhet på Tøyen
- Romslig bod i 1.etasje.
Mangler du egenkapital? Boligen kan kjøpes med Finit Deleie.
Boligen ble pusset opp i 2019 med moderne og tidløse materialvalg. Den åpne stue- og kjøkkenløsningen er både sosial og funksjonell, med god soneinndeling og ikke minst: stuen flommer i naturlig sollys fra en hel vindusvegg. Fra stuen er det også utgang til en solrik balkong. Her får du tre gode soverom, et lekkert samt stort bad fra 2019, og mange gode fasiliteter som gjør hverdagen komfortabel.
Her bor du med kort vei til Tøyen Torg, kaféer, restauranter, butikker og kollektivtransport. Bjørvika og Oslofjorden når du til fots på ca. 15 minutter.
Høydepunkter:
- Lekker 4-roms leilighet pusset opp i 2019
- Solrik balkong på 5m² mot sørvest
- Mulighet for kjøp/leie av parkplass ved ledighet
- Grønne fellesarealer
- Sentral beliggenhet på Tøyen
- Romslig bod i 1.etasje.
Mangler du egenkapital? Boligen kan kjøpes med Finit Deleie.
NB: Knappen for å vise hele beskrivelsen har kun en visuell effekt.
NB: Knappen for å vise hele beskrivelsen har kun en visuell effekt.
Salgsoppgaven beskriver vesentlig og lovpålagt informasjon om eiendommen
Se komplett salgsoppgaveNærområdet
EIE eiendomsmegling Valkyrien
Annonsene kan være mangelfulle i forhold til lovpålagt opplysningsplikt. Før bindende avtale inngås oppfordres interessenter til å innhente komplett informasjon fra meglerforetaket, selger eller utleier.



































