Bildegalleri

Velkommen til Vesteråsveien 14D! Presentert av Morten Lindberg v/Eiendomsmeglerne.
Strøken 4-roms leilighet oppusset i 23/24 - Vestvendt balkong - Populær beliggenhet - Garasjeplass m/ el-lader
Prisantydning9 200 000 kr
Nøkkelinfo
- Boligtype
- Leilighet
- Eieform
- Eier (Selveier)
- Soverom
- 3
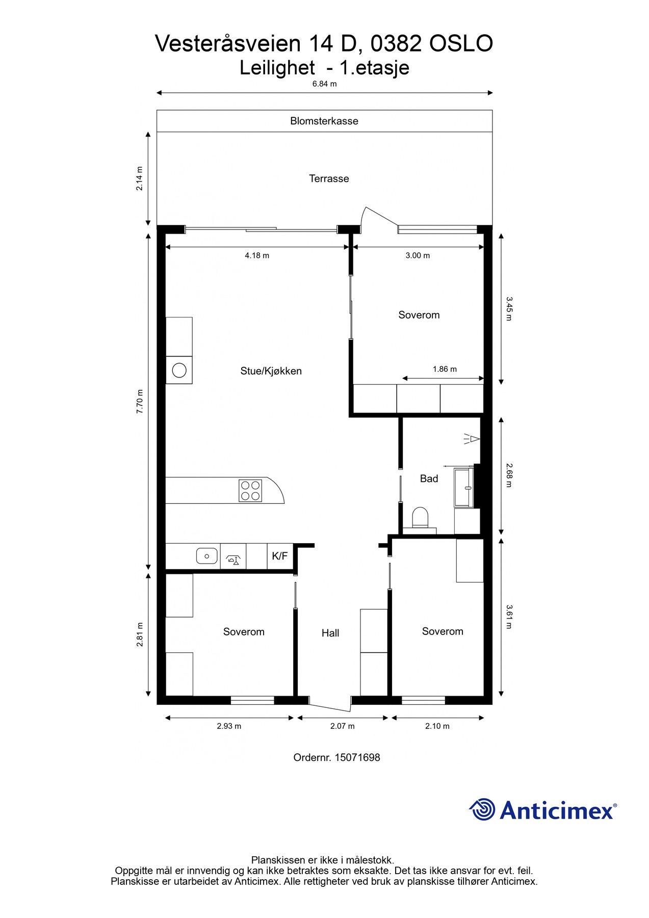
- Internt bruksareal
- 77 m² (BRA-i)
- Bruksareal
- 82 m²
- Eksternt bruksareal
- 5 m² (BRA-e)
- Balkong/Terrasse
- 15 m² (TBA)
- Etasje
- 1
- Byggeår
- 1982
- Energimerking
- G - Rød
- Rom
- 4
- Tomteareal
- 5 628 m² (eiet)
Fasiliteter
Barnevennlig
Balkong/Terrasse
Garasje/P-plass
Kabel-TV
Heis
Offentlig vann/kloakk
Turterreng
Utsikt
Vaktmester-/vektertjeneste
Bredbåndstilknytning
Moderne
Rolig
Lademulighet
Om boligen
Velkommen til Vesteråsveien 14D! Presentert av Morten Lindberg i Eiendomsmeglerne!
Pen og strøken 4-roms leilighet med attraktiv beliggenhet på Ullern. Leiligheten ble totaloppusset i 23/24 og opprettholder en høy standard med gode vindusflater og moderniserte tiltak. Leiligheten har egen inngang på bakkeplan og har en innbydende planløsning bestående av entré, stue, kjøkken, bad og 3 soverom. Fra stuen og ene soverommet har man tilgang til en vestvendt balkong på 15m2 med hyggelig utsyn mot idylliske grøntarealer. For øvrig disponerer boligen to kjellerboder på totalt 5m2 og parkeringsplass i felles garasjeanlegg.
Kort fortalt:
* Attraktiv beliggenhet
* Stilren leilighet totaloppusset i 2023/2024
* Vestvendt balkong på 15m2
* VV inkl i felleskost
* 3 soverom
* 2 boder
* Garasjeplass med el-lader
Velkommen til visning! Denne må sees!
Pen og strøken 4-roms leilighet med attraktiv beliggenhet på Ullern. Leiligheten ble totaloppusset i 23/24 og opprettholder en høy standard med gode vindusflater og moderniserte tiltak. Leiligheten har egen inngang på bakkeplan og har en innbydende planløsning bestående av entré, stue, kjøkken, bad og 3 soverom. Fra stuen og ene soverommet har man tilgang til en vestvendt balkong på 15m2 med hyggelig utsyn mot idylliske grøntarealer. For øvrig disponerer boligen to kjellerboder på totalt 5m2 og parkeringsplass i felles garasjeanlegg.
Kort fortalt:
* Attraktiv beliggenhet
* Stilren leilighet totaloppusset i 2023/2024
* Vestvendt balkong på 15m2
* VV inkl i felleskost
* 3 soverom
* 2 boder
* Garasjeplass med el-lader
Velkommen til visning! Denne må sees!
NB: Knappen for å vise hele beskrivelsen har kun en visuell effekt.
NB: Knappen for å vise hele beskrivelsen har kun en visuell effekt.
Salgsoppgaven beskriver vesentlig og lovpålagt informasjon om eiendommen
Se komplett salgsoppgaveNærområdet
Eiendomsmeglerne AS
Erfaring og lokalkunnskap
Annonseinformasjon
| FINN-kode | 411371643 |
|---|---|
| Sist endret | 16. jan. 2026 05:01 |
| Referanse | 202250087 |
Annonsene kan være mangelfulle i forhold til lovpålagt opplysningsplikt. Før bindende avtale inngås oppfordres interessenter til å innhente komplett informasjon fra meglerforetaket, selger eller utleier.






































