Bildegalleri

Krogsveen ved Remi Bangsund har gleden av å presentere Traverveien 32!
Solgt
DISEN/ÅRVOLL
Pen 3-roms med vestvendt balkong - Vinduer fra 2025 - Bad fra 09 - Fyring/v. vann inkl. i fk.- Barnevennlig - Markanært!
Prisantydning5 290 000 kr
Nøkkelinfo
- Boligtype
- Leilighet
- Eieform
- Andel
- Soverom
- 2
- Internt bruksareal
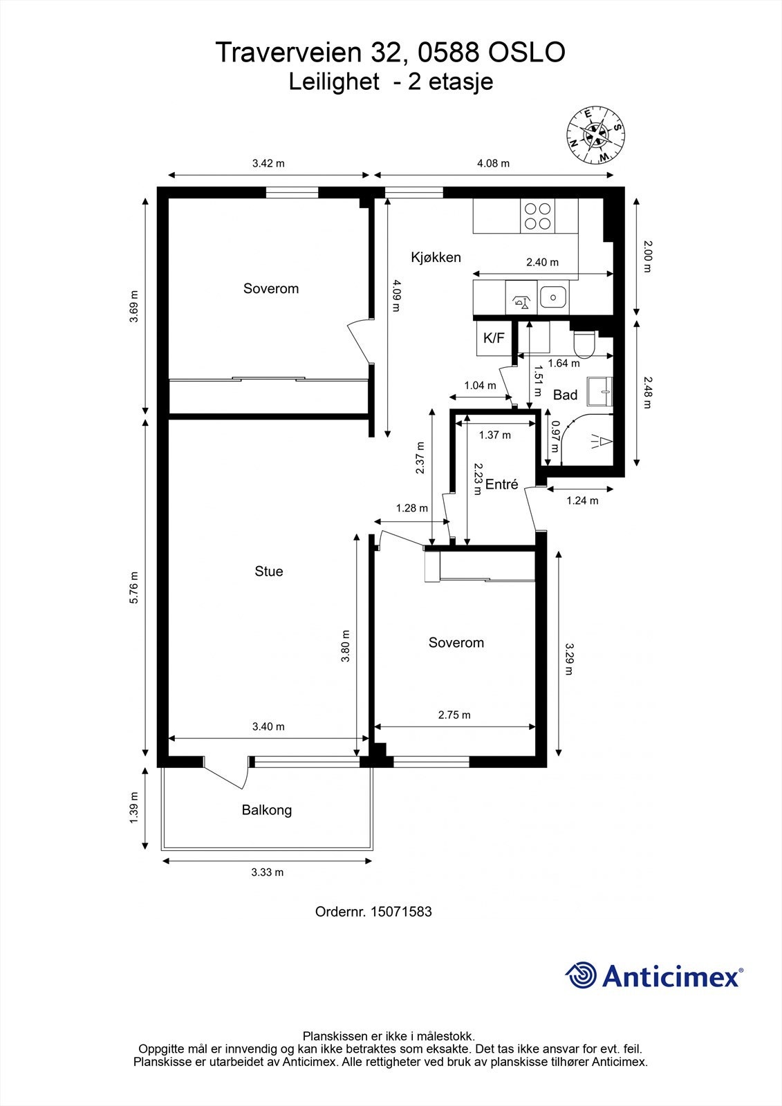
- 67 m² (BRA-i)
- Bruksareal
- 70 m²
- Eksternt bruksareal
- 3 m² (BRA-e)
- Balkong/Terrasse
- 5 m² (TBA)
- Etasje
- 1
- Byggeår
- 1955
- Energimerking
- F - Mørkegrønn
- Rom
- 3
- Tomteareal
- 33 116 m² (eiet)
Fasiliteter
Balkong/Terrasse
Barnevennlig
Bredbåndstilknytning
Fellesvaskeri
Garasje/P-plass
Kjæledyr tillatt
Ingen gjenboere
Kabel-TV
Offentlig vann/kloakk
Parkett
Rolig
Sentralt
Vaktmester-/vektertjeneste
Bademulighet
Turterreng
Om boligen
Krogsveen ved Remi Bangsund har gleden av å presentere Traverveien 32 - en gjennomgående 3-roms med vestvendt balkong. Boliger ligger plassert i høy 1. etg i et meget populært og barnevennlig borettslag. Her får man en innbydende entré, romslig stue med balkong, kjøkken fra 2013, bad pusset opp i regi av borettslaget i 2009 og to gode soverom. I tillegg får man raust med bodplass, felles sykkelrom, hobbyrom og god plass til plassering av barnevogn.
- Gjennomgående 3-roms med vestvendt balkong
- Høy 1. etg
- Vinduer/balkongdør fra 2025
- Fyring og v. vann inkl. i felleskost.
- Kort vei til buss, butikk, skole, barnehage og Lillomarka!
- God bodplass
- Meget barnevennlig
- Lave kjøpsomkostninger, ingen dokumentavgift
- Forkjøpsretten avklart!
- Gjennomgående 3-roms med vestvendt balkong
- Høy 1. etg
- Vinduer/balkongdør fra 2025
- Fyring og v. vann inkl. i felleskost.
- Kort vei til buss, butikk, skole, barnehage og Lillomarka!
- God bodplass
- Meget barnevennlig
- Lave kjøpsomkostninger, ingen dokumentavgift
- Forkjøpsretten avklart!
NB: Knappen for å vise hele beskrivelsen har kun en visuell effekt.
NB: Knappen for å vise hele beskrivelsen har kun en visuell effekt.
Salgsoppgaven beskriver vesentlig og lovpålagt informasjon om eiendommen
Se komplett salgsoppgaveNyttige lenker
Nærområdet
Krogsveen Årvoll
Verdien av en god megler.
Annonseinformasjon
| FINN-kode | 411272653 |
|---|---|
| Sist endret | 16. sep. 2025 06:07 |
| Referanse | KR39.25109 |
Annonsene kan være mangelfulle i forhold til lovpålagt opplysningsplikt. Før bindende avtale inngås oppfordres interessenter til å innhente komplett informasjon fra meglerforetaket, selger eller utleier.






































