Bildegalleri

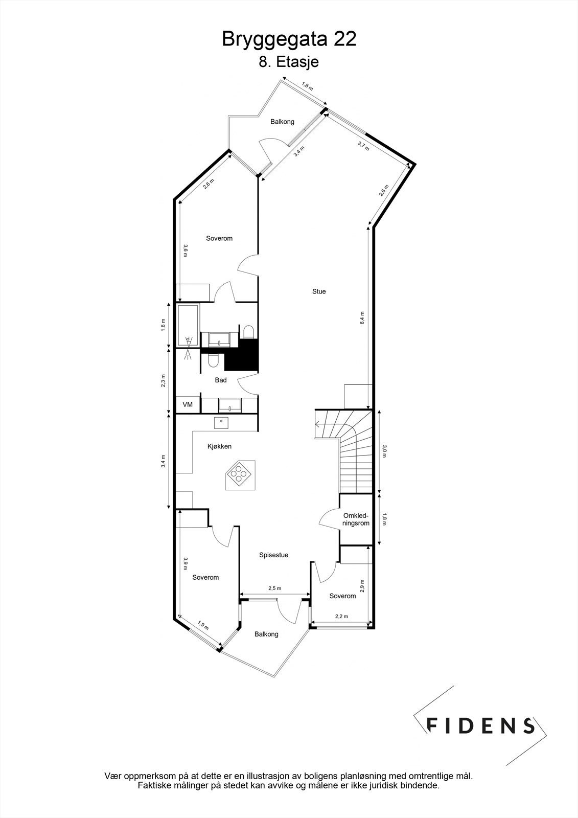
Leiligheten ligger i 8. etasje og inneholder entré, stue/kjøkken, tre soverom, to bad og omkledningsrom.
Inaktiv
AKER BRYGGE
Lys og romslig 4-roms med mye potensiale - 2 balkonger - 2 bad - Peis - Heis - Basseng - Takterrasse - Mulig parkering*
Prisantydning15 500 000 kr
Nøkkelinfo
- Boligtype
- Leilighet
- Eieform
- Selveier
- Soverom
- 3
- Internt bruksareal
- 130 m² (BRA-i)
- Bruksareal
- 135 m²
- Eksternt bruksareal
- 5 m² (BRA-e)
- Balkong/Terrasse
- 12 m² (TBA)
- Etasje
- 7
- Byggeår
- 1994
- Energimerking
- F - Mørkegrønn
- Rom
- 4
- Tomteareal
- 3 310 m² (eiet)
Fasiliteter
Takterrasse
Balkong/Terrasse
Barnevennlig
Bredbåndstilknytning
Garasje/P-plass
Heis
Ingen gjenboere
Kabel-TV
Offentlig vann/kloakk
Parkett
Peis/Ildsted
Rolig
Sentralt
Utsikt
Vaktmester-/vektertjeneste
Bademulighet
Turterreng
Om boligen
Lys og romslig leilighet med sjønær beliggenhet!
Her får du en unik mulighet til å skape din drømmebolig i en attraktiv og fredelig del av byen. Leiligheten byr på god planløsning, store vindusflater og herlig gjennomlys. To solrike balkonger gir deg utsikt og uteplass hele dagen. Heis i bygget gir enkel adkomst, og peis i stuen. Her bor du i kort avstand til sjøen, med flotte turmuligheter og et rikt servicetilbud i nærheten. En bolig med stort potensial må oppleves!
- Oppvarmet helårsbasseng til bruk for sameiet
- Takterrasse
- Mulig å leie eller kjøpe parkering i garasjeanlegg i kjeller*
- Premium beliggenhet meget sentralt på Aker Brygge
- Bod i kjeller på ca 5 kvm
- Felleskostnader inkluderer varmtvann og oppvarming
- Lokale i bygget kan leies for selskaper og arrangementer
Her får du en unik mulighet til å skape din drømmebolig i en attraktiv og fredelig del av byen. Leiligheten byr på god planløsning, store vindusflater og herlig gjennomlys. To solrike balkonger gir deg utsikt og uteplass hele dagen. Heis i bygget gir enkel adkomst, og peis i stuen. Her bor du i kort avstand til sjøen, med flotte turmuligheter og et rikt servicetilbud i nærheten. En bolig med stort potensial må oppleves!
- Oppvarmet helårsbasseng til bruk for sameiet
- Takterrasse
- Mulig å leie eller kjøpe parkering i garasjeanlegg i kjeller*
- Premium beliggenhet meget sentralt på Aker Brygge
- Bod i kjeller på ca 5 kvm
- Felleskostnader inkluderer varmtvann og oppvarming
- Lokale i bygget kan leies for selskaper og arrangementer
NB: Knappen for å vise hele beskrivelsen har kun en visuell effekt.
NB: Knappen for å vise hele beskrivelsen har kun en visuell effekt.
Salgsoppgaven beskriver vesentlig og lovpålagt informasjon om eiendommen
Se komplett salgsoppgaveNyttige lenker
Nærområdet
Nordvik St.Hanshaugen
Annonseinformasjon
| FINN-kode | 411252995 |
|---|---|
| Sist endret | 27. mars 2026 14:25 |
| Referanse | 5-0246/25 |
Annonsene kan være mangelfulle i forhold til lovpålagt opplysningsplikt. Før bindende avtale inngås oppfordres interessenter til å innhente komplett informasjon fra meglerforetaket, selger eller utleier.




















































