Bildegalleri

EIE eiendomsmegling ved Daniel Bruce presenterer Frostaveien 12!
Solgt
BURAN/LADEMOEN
Må sees! Lekker 2-roms selveierleilighet i 2.etasje med særpreg | Nyoppusset i 2016 | Sentrumsnær beliggenhet
Prisantydning2 790 000 kr
Nøkkelinfo
- Boligtype
- Leilighet
- Eieform
- Selveier
- Soverom
- 1
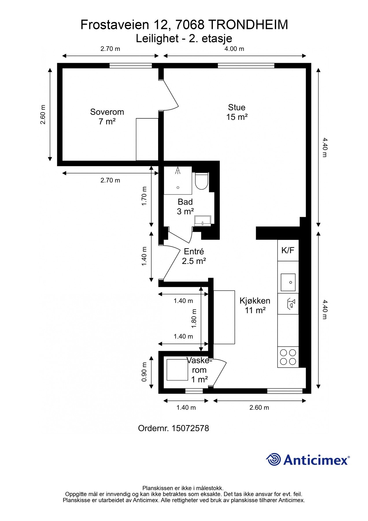
- Internt bruksareal
- 42 m² (BRA-i)
- Bruksareal
- 47 m²
- Eksternt bruksareal
- 5 m² (BRA-e)
- Etasje
- 2
- Byggeår
- 1911
- Energimerking
- F - Rød
- Rom
- 2
- Tomteareal
- 822 m² (eiet)
Fasiliteter
Barnevennlig
Offentlig vann/kloakk
Ingen gjenboere
Turterreng
Sentralt
Bredbåndstilknytning
Moderne
Rolig
Om boligen
EIE eiendomsmegling ved Daniel Bruce presenterer Frostaveien 12! Denne innbydende selveierleiligheten ligger i 2.etasje i en klassisk og velholdt bygård fra 1911. Boligen har en svært attraktiv beliggenhet med kortgangavstand til Solsiden og Midtbyen, samt svært gode kollektivforbindelser.
Høydepunkter:
- Total oppusset i 2016 - perfekt for førstegangskjøpere, studenter og den urbane livsstilen.
- Stilig og gjennomtenkt materialvalg: rustikk teglstein kombinert med moderne fargetoner og slitesterkt laminatgulv.
- Praktisk planløsning med separat soverom.
- Tidløst IKEA-kjøkken av meget god størrelse fullt utstyrt med integrerte hvitevarer.
- Separat vaskerom.
- Beliggende i 2. etasje.
- Sameiet har gjennomført en total rehabilitering av taket.
- Romslig bod i kjeller.
- Kun 10 minutters gange til Solsiden.
- Busstopp med hyppige avganger rett i nærheten.
Velkommen til visning!
Høydepunkter:
- Total oppusset i 2016 - perfekt for førstegangskjøpere, studenter og den urbane livsstilen.
- Stilig og gjennomtenkt materialvalg: rustikk teglstein kombinert med moderne fargetoner og slitesterkt laminatgulv.
- Praktisk planløsning med separat soverom.
- Tidløst IKEA-kjøkken av meget god størrelse fullt utstyrt med integrerte hvitevarer.
- Separat vaskerom.
- Beliggende i 2. etasje.
- Sameiet har gjennomført en total rehabilitering av taket.
- Romslig bod i kjeller.
- Kun 10 minutters gange til Solsiden.
- Busstopp med hyppige avganger rett i nærheten.
Velkommen til visning!
NB: Knappen for å vise hele beskrivelsen har kun en visuell effekt.
NB: Knappen for å vise hele beskrivelsen har kun en visuell effekt.
Salgsoppgaven beskriver vesentlig og lovpålagt informasjon om eiendommen
Se komplett salgsoppgaveNyttige lenker
Nærområdet
EIE eiendomsmegling Trondheim sentrum
Annonseinformasjon
| FINN-kode | 411079773 |
|---|---|
| Sist endret | 07. juli 2025 14:55 |
| Referanse | 33251097 |
Annonsene kan være mangelfulle i forhold til lovpålagt opplysningsplikt. Før bindende avtale inngås oppfordres interessenter til å innhente komplett informasjon fra meglerforetaket, selger eller utleier.



























