Bildegalleri

TOPPÅSEN -Frittliggende enebolig o/to plan -garasje - hage - terrasse - gode solforhold - to innganger - sjelden muligh.
Prisantydning6 990 000 kr
Nøkkelinfo
- Boligtype
- Enebolig
- Eieform
- Eier (Selveier)
- Soverom
- 3
- Internt bruksareal
- 173 m² (BRA-i)
- Bruksareal
- 173 m²
- Etasje
- 2
- Byggeår
- 1987
- Energimerking
- F - Rød
- Rom
- 5
- Tomteareal
- 480 m² (eiet)
Fasiliteter
Alpinanlegg
Balkong/Terrasse
Barnevennlig
Bredbåndstilknytning
Garasje/P-plass
Hage
Kjæledyr tillatt
Ingen gjenboere
Kabel-TV
Offentlig vann/kloakk
Parkett
Peis/Ildsted
Rolig
Sentralt
Bademulighet
Fiskemulighet
Turterreng
Visning
Dersom oppsatt tidspunkt ikke passer, ta kontakt med megler for en hyggelig privatvisning.
VisningspåmeldingOm boligen
Nordvik eiendomsmegling har igjen gleden av å presentere en spennende enebolig over to plan med stort potentsial.
Boligen inneholder følgende:
U.etg.
- vindfang
- hall
- tv-stue
- bad/WC
- vaskerom
- soverom I
- tre stk inneboder
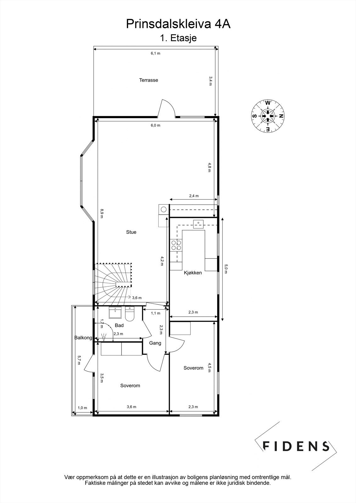
1.etg.:
- gang
- stue
- kjøkken
- bad/WC
- soverom I
- soverom II
- balkong på ca.6 kvm.
- vestvendt terrasse på ca. 21 kvm.
- tilgang til kaldtloft via stige
I tillegg følger det med:
- en garasjeplass med automatisk portåpner
- en utebod i hage
Høydepunkter:
- noe opppgraderingsbehov
- malt utvendig i 2021
- peis
- gode solforhold
- en garaseplass
- ingen avvik mellom byggemeldte tegninger og slik boligen fremstår i dag
- p-plasser på egen tomt
- barnevennlig
-kort vei til bl.a.: Barnehager, skoler, butikker, idrettsanlegg, bussholdeplass, svømmehall m.m.
Boligen inneholder følgende:
U.etg.
- vindfang
- hall
- tv-stue
- bad/WC
- vaskerom
- soverom I
- tre stk inneboder
1.etg.:
- gang
- stue
- kjøkken
- bad/WC
- soverom I
- soverom II
- balkong på ca.6 kvm.
- vestvendt terrasse på ca. 21 kvm.
- tilgang til kaldtloft via stige
I tillegg følger det med:
- en garasjeplass med automatisk portåpner
- en utebod i hage
Høydepunkter:
- noe opppgraderingsbehov
- malt utvendig i 2021
- peis
- gode solforhold
- en garaseplass
- ingen avvik mellom byggemeldte tegninger og slik boligen fremstår i dag
- p-plasser på egen tomt
- barnevennlig
-kort vei til bl.a.: Barnehager, skoler, butikker, idrettsanlegg, bussholdeplass, svømmehall m.m.
NB: Knappen for å vise hele beskrivelsen har kun en visuell effekt.
NB: Knappen for å vise hele beskrivelsen har kun en visuell effekt.
Salgsoppgaven beskriver vesentlig og lovpålagt informasjon om eiendommen
Se komplett salgsoppgaveNyttige lenker
Nærområdet
Nordvik St.Hanshaugen
Annonseinformasjon
| FINN-kode | 410961135 |
|---|---|
| Sist endret | 01. des. 2025 11:26 |
| Referanse | 5-0228/25 |
Annonsene kan være mangelfulle i forhold til lovpålagt opplysningsplikt. Før bindende avtale inngås oppfordres interessenter til å innhente komplett informasjon fra meglerforetaket, selger eller utleier.








































