Bildegalleri

DNB Eiendom ved Malin Bruer har gleden av og presentere Opsalvegen 13!
Hektneråsen
Innholdsrik og herskapelig enebolig fra 2013 mulighet for etablering av utleiedel | Barnevennlig | Dobbelgarasje |
Prisantydning11 490 000 kr
Nøkkelinfo
- Boligtype
- Enebolig
- Eieform
- Eier (Selveier)
- Soverom
- 5
- Internt bruksareal
- 221 m² (BRA-i)
- Bruksareal
- 251 m²
- Eksternt bruksareal
- 30 m² (BRA-e)
- Balkong/Terrasse
- 67 m² (TBA)
- Byggeår
- 2013
- Energimerking
- B - Oransje
- Rom
- 6
- Tomteareal
- 611 m² (eiet)
Fasiliteter
Balkong/Terrasse
Barnevennlig
Garasje/P-plass
Hage
Offentlig vann/kloakk
Parkett
Peis/Ildsted
Rolig
Sentralt
Turterreng
Balansert ventilasjon
Visning
mandag, 23. februar
18:30 – 19:30
Velkommen til visning! Meld deg på ved å trykke "visningspåmelding" i våre boligannonser. Ta gjerne kontakt med megler i forkant av visningen om du har spørsmål.
VisningspåmeldingOm boligen
Moderne familiebolig på Hektneråsen i et svært barnevennlig område med kort vei til skole, barnehage, bussholdeplass og dagligvarebutikk. Området er perfekt tilrettelagt for barn og unge, og er ypperlig for barnefamilier!
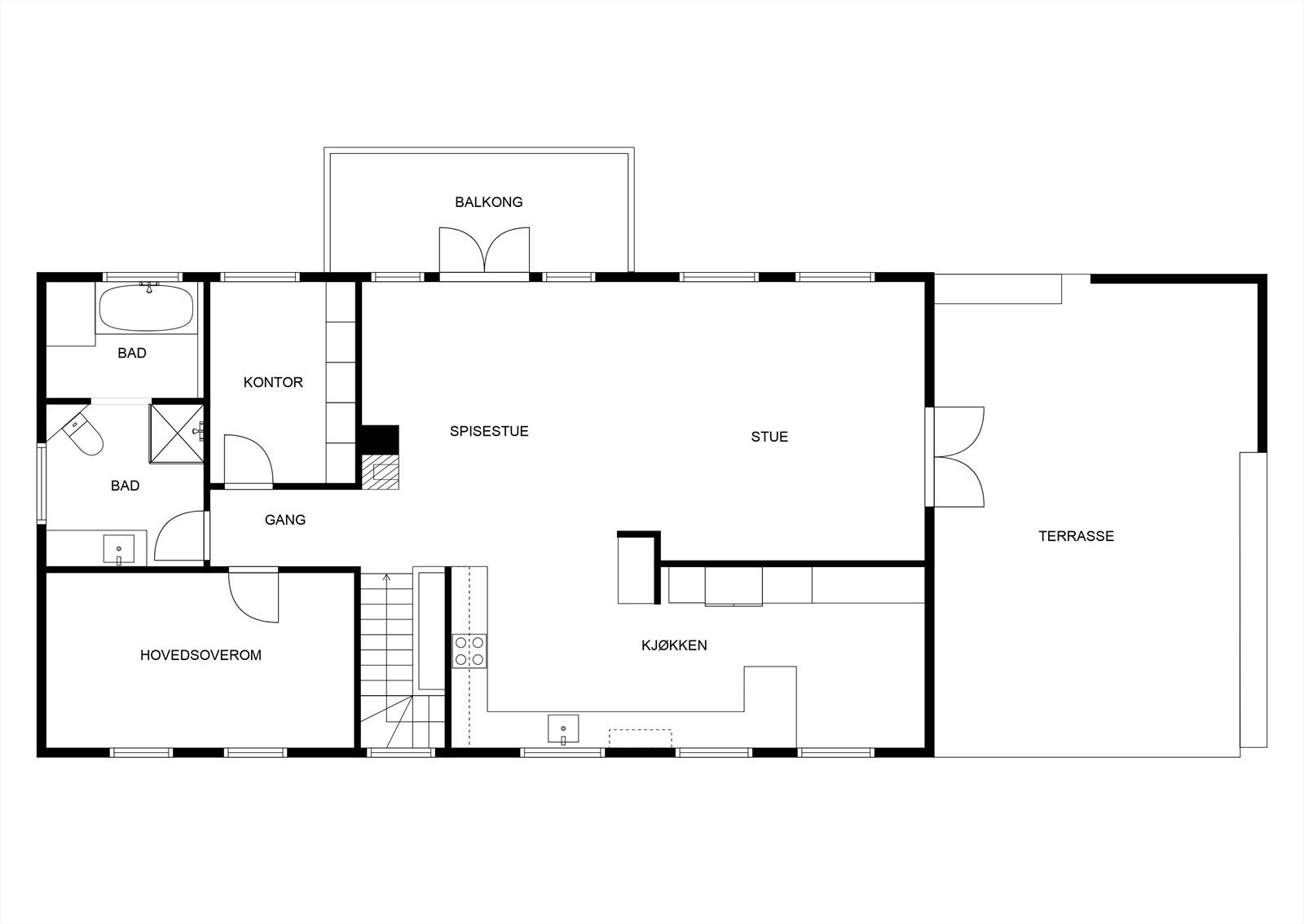
Boligen har en pent opparbeidet hage, dobbelgarasje (2016) og et fantastisk terrasseområde inndelt i flere soner. Innvendig holder boligen en moderne standard. Her er to stuer med peis, fire soverom og et funksjonelt kjøkken fra Kvik. Den gjennomtenkte planløsningen inkluderer også to lekre og moderne baderom og praktisk vaskerom. Stuen i første etasje kan benyttes som barne- og ungdomsavdeling. Loft med rikelig oppbevaringsplass. Boligen har et areal i 1. etasje som er godkjent for etablering av utleie som vil kunne gi utleieinntekter på ca. 10-12.000 per mnd.
Boligen har en pent opparbeidet hage, dobbelgarasje (2016) og et fantastisk terrasseområde inndelt i flere soner. Innvendig holder boligen en moderne standard. Her er to stuer med peis, fire soverom og et funksjonelt kjøkken fra Kvik. Den gjennomtenkte planløsningen inkluderer også to lekre og moderne baderom og praktisk vaskerom. Stuen i første etasje kan benyttes som barne- og ungdomsavdeling. Loft med rikelig oppbevaringsplass. Boligen har et areal i 1. etasje som er godkjent for etablering av utleie som vil kunne gi utleieinntekter på ca. 10-12.000 per mnd.
NB: Knappen for å vise hele beskrivelsen har kun en visuell effekt.
NB: Knappen for å vise hele beskrivelsen har kun en visuell effekt.
Salgsoppgaven beskriver vesentlig og lovpålagt informasjon om eiendommen
Se komplett salgsoppgaveNyttige lenker
Nærområdet
DNB Eiendom AS
Verdifulle salg
Annonseinformasjon
| FINN-kode | 410959210 |
|---|---|
| Sist endret | 14. feb. 2026 10:43 |
| Referanse | 303250232 |
Annonsene kan være mangelfulle i forhold til lovpålagt opplysningsplikt. Før bindende avtale inngås oppfordres interessenter til å innhente komplett informasjon fra meglerforetaket, selger eller utleier.






















































































