Bildegalleri

Fasade
REDUSERT PRIS! 2-roms andelsleilighet - Heis - Oppvarmet garasjekjeller - Sentrum
Prisantydning1 700 000 kr
Nøkkelinfo
- Boligtype
- Leilighet
- Eieform
- Andel
- Soverom
- 1
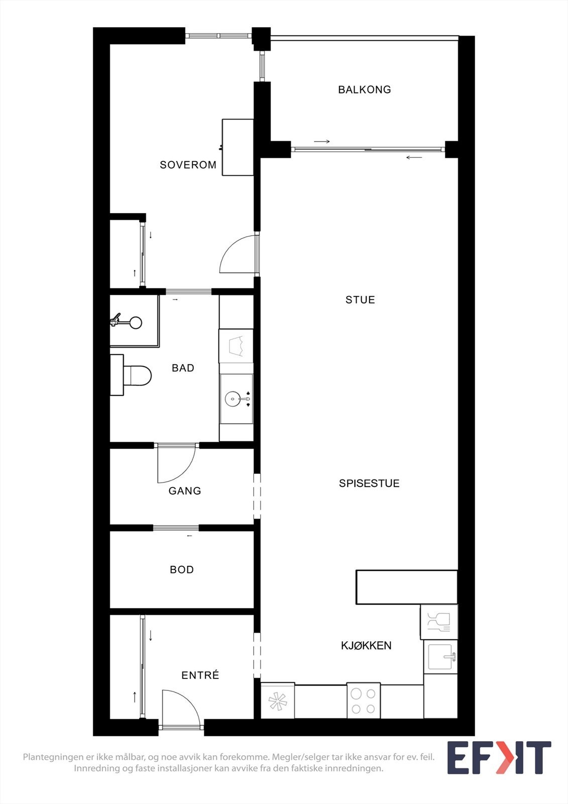
- Internt bruksareal
- 68 m² (BRA-i)
- Bruksareal
- 73 m ²
- Eksternt bruksareal
- 5 m² (BRA-e)
- Balkong/Terrasse
- 6 m² (TBA)
- Etasje
- 2
- Byggeår
- 2007
- Energimerking
- D - Mørkegrønn
- Rom
- 2
- Tomteareal
- 1 634 m² (eiet)
Om boligen
Velkommen til en attraktiv 2-roms andelsleilighet i 2. etasje, med både heis og tilgang til oppvarmet garasjekjeller med tilhørende bod. Leiligheten har en meget sentral beliggenhet rett ved kjøpesenteret og med gangavstand til alt du trenger.
Innmontert dørtelefonanlegg med muligheter for åpning av hovedinngangsdøren i 1.etasje.
Dette er en flott mulighet for deg som ønsker en lettstelt og praktisk bolig midt i hjertet av Mosjøen sentrum.
Innmontert dørtelefonanlegg med muligheter for åpning av hovedinngangsdøren i 1.etasje.
Dette er en flott mulighet for deg som ønsker en lettstelt og praktisk bolig midt i hjertet av Mosjøen sentrum.
NB: Knappen for å vise hele beskrivelsen har kun en visuell effekt.
NB: Knappen for å vise hele beskrivelsen har kun en visuell effekt.
Salgsoppgaven beskriver vesentlig og lovpålagt informasjon om eiendommen
Se komplett salgsoppgaveNærområdet
Aktiv Helgeland
Annonseinformasjon
| FINN-kode | 410956370 |
|---|---|
| Sist endret | 21. jan. 2026 10:56 |
| Referanse | 1801250058 |
Annonsene kan være mangelfulle i forhold til lovpålagt opplysningsplikt. Før bindende avtale inngås oppfordres interessenter til å innhente komplett informasjon fra meglerforetaket, selger eller utleier.


















