Bildegalleri

Velkommen til Vardåsveien 16!
Enebolig med god beliggenhet| tre soverom |Fin tomt m/terrasser på totalt 59 m² | Hyggelig nabolag | Innerst i blindvei
Prisantydning5 790 000 kr
Nøkkelinfo
- Boligtype
- Enebolig
- Eieform
- Eier (Selveier)
- Soverom
- 3
- Internt bruksareal
- 112 m² (BRA-i)
- Bruksareal
- 117 m²
- Eksternt bruksareal
- 5 m² (BRA-e)
- Balkong/Terrasse
- 64 m² (TBA)
- Byggeår
- 1977
- Energimerking
- F - Oransje
- Rom
- 5
- Tomteareal
- 397 m² (eiet)
Fasiliteter
Balkong/Terrasse
Barnevennlig
Garasje/P-plass
Hage
Peis/Ildsted
Rolig
Turterreng
Visning
søndag, 22. februar
13:45 – 14:30
Ønsker du å delta på visningen ber vi deg melde deg på slik at vi vet at du kommer. Da kan vi bistå alle best mulig og gi deg tiden du trenger på visningen. Ta gjerne kontakt med megler før visning hvis du har noen spørsmål. Velkommen!
VisningspåmeldingOm boligen
Velkommen til Vardåsveien 16
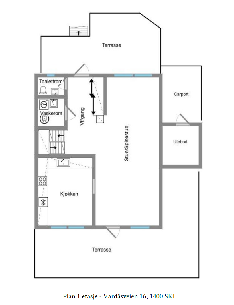
Dette er en hyggelig eiendom med beliggenhet i et tilbaketrukket og familievennlig boligområde på nær sentrum i Ski. Kort vei til skole og barnehager.
Boligen ligger innerst i blindvei og har en pent opparbeidet tomt med terrasse og hage. Innvendig består huset av 3 soverom, flislagt bad/wc, eget toalettrom, vaskerom, stue og romslig kjøkken. Medfølger en utvendig bod, carport og biloppstillingsplass.
Kort fortalt |
- Kjedet enebolig med 3 soverom
- Terrasser på totalt 59 m²
- Balkong på 5 m²
- Utvendig bod på 5 m²
Det er ca. 12-15 minutters gange til Ski sentrum med et stort utvalg av servicetilbud og til Ski stasjon, Follobanen med 11 min. med tog til Oslo S. Nærhet til marka med fantastiske tur- og friluftsområder.
Velkommen til visning!
Dette er en hyggelig eiendom med beliggenhet i et tilbaketrukket og familievennlig boligområde på nær sentrum i Ski. Kort vei til skole og barnehager.
Boligen ligger innerst i blindvei og har en pent opparbeidet tomt med terrasse og hage. Innvendig består huset av 3 soverom, flislagt bad/wc, eget toalettrom, vaskerom, stue og romslig kjøkken. Medfølger en utvendig bod, carport og biloppstillingsplass.
Kort fortalt |
- Kjedet enebolig med 3 soverom
- Terrasser på totalt 59 m²
- Balkong på 5 m²
- Utvendig bod på 5 m²
Det er ca. 12-15 minutters gange til Ski sentrum med et stort utvalg av servicetilbud og til Ski stasjon, Follobanen med 11 min. med tog til Oslo S. Nærhet til marka med fantastiske tur- og friluftsområder.
Velkommen til visning!
NB: Knappen for å vise hele beskrivelsen har kun en visuell effekt.
NB: Knappen for å vise hele beskrivelsen har kun en visuell effekt.
Salgsoppgaven beskriver vesentlig og lovpålagt informasjon om eiendommen
Se komplett salgsoppgaveNyttige lenker
Nærområdet
EiendomsMegler 1 Ski
Vi loser deg trygt gjennom hele boligsalget
Annonseinformasjon
| FINN-kode | 410953821 |
|---|---|
| Sist endret | 14. feb. 2026 10:08 |
| Referanse | 6038260053 |
Annonsene kan være mangelfulle i forhold til lovpålagt opplysningsplikt. Før bindende avtale inngås oppfordres interessenter til å innhente komplett informasjon fra meglerforetaket, selger eller utleier.


































